東京都中野区東中野5丁目(東中野駅)の賃貸:物件詳細
交通 所在地 |
駅徒歩 |
賃料 管理費等 |
敷金/保証金 礼金 |
間取り 面積 |
物件種目 築年月 |
|
JR総武線/東中野
東京都中野区東中野5丁目
|
3分
|
14万円
なし
|
1ヶ月 / なし
1ヶ月
|
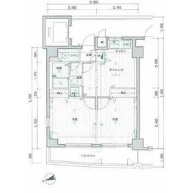
2DK
40.32m²
|
賃貸マンション
1999年7月(築26年5ヶ月)
|
デザイナーズ、分譲タイプ、角部屋、二人入居可、2面採光、保証人不要
|
|
間取図
|
外観
|
<
その他の画像
>
|
| 交通 | JR総武線 東中野駅 徒歩3分 |
|---|
| その他の交通 | 東京メトロ東西線 落合駅 徒歩6分 西武新宿線 中井駅 徒歩13分 |
| 所在地 |
東京都中野区東中野5丁目
|
| 物件種目 |
賃貸マンション |
| 賃料 |
14万円 |
管理費等 |
なし |
| 敷金 / 保証金 |
1ヶ月 / なし |
礼金 |
1ヶ月 |
| 敷引 |
- |
保証金償却 |
- |
| その他一時金 |
契約事務手数料:11,000円、ホームマイスター:16,500円、鍵交換代等:24,200円~ |
保険等 |
要 |
| 維持費等 |
- |
| 間取り |
2DK(DK5、洋6.5、洋5.6) |
専有面積 |
40.32m² |
| 築年月 |
1999年7月(築26年5ヶ月)
|
階建 / 階 |
8階建 / 7階 |
| 建物構造 |
SRC |
総戸数 |
- |
| 主要採光面 |
西 |
駐車場 |
- |
| バイク置き場 |
- |
駐輪場 |
- |
| 建物名・部屋番号 |
パークウェル東中野 701 |
ペット |
-
|
| リフォーム履歴 |
- |
| リノベーション履歴 |
- |
| 備考 |
賃貸保証等:加入要(初回保証委託料:50%)
管理形態/管理員の勤務形態:-/-
◆初期費用・web内見・入居日交渉等なんでもご相談ください◆
【お部屋探しはクレアスレント】★空室の確認は即時返答★LINEで簡単にお部屋探し★営業時間外でもご対応可能★インターネットで紹介していない類似物件も多数ご用意、ご案内!お客様のご要望にお応えいたします!仕様・図面・写真等に相違があった場合は現況を優先します。事務手数料13,200円退去時にエアコンクリーニング費用13,200円(税込)、ルームクリーニング費用38,500円
|
| エネルギー消費性能 |
- |
| 断熱性能 |
- |
| 目安光熱費 |
- |
| バス・トイレ |
バス・トイレ別、シャワー付洗面化粧台、洗面所独立、洗面所、洗面台、シャワー、トイレ |
| キッチン |
システムキッチン、2口コンロ、ガスコンロ可、グリル |
| セキュリティー |
モニター付オートロック、オートロック、モニター付インターホン |
| 収納 |
収納スペース、クローゼット、シューズボックス |
| 設備・サービス |
室内洗濯機置場、洗濯機置場、都市ガス給湯、給湯、フローリング、都市ガス、エアコン、照明器具 |
| TV・通信 |
インターネット対応 |
| その他 |
宅配BOX、バルコニー、エレベーター |
| 契約期間 |
2年 |
現況 |
居住中 |
| 条件等 |
- |
入居可能時期 |
2026年1月中旬予定 |
| 更新料 |
新賃料 1ヶ月 |
物件番号 |
1163170816 |
| 情報公開日 |
2025年11月4日 |
次回更新予定日 |
2025年11月18日 |
| ケータイ用バーコード |
- スマートフォンでこの物件を見る
- スマートフォンからもこの物件をご覧になれます。
|
※「-」と表示されている項目については、情報提供会社にご確認ください。
| 周辺施設 |
アトレヴィ東中野 |
| 距離 |
437m |
写真を見る |
| 周辺施設 |
ライフ 東中野店 |
| 距離 |
579m |
写真を見る |
| 周辺施設 |
ユニゾンモール東中野 |
| 距離 |
225m |
写真を見る |
| 周辺施設 |
ファミリーマート 東中野駅東口店 |
| 距離 |
267m |
写真を見る |
| 周辺施設 |
サンドラッグ 小滝橋店 |
| 距離 |
813m |
写真を見る |
| 周辺施設 |
セブンイレブン 新宿中井駅前店 |
| 距離 |
1082m |
写真を見る |
ここから簡単にお問い合わせをすることができます。
(SSLでの暗号化での送信を希望されるお客さまは
こちら
よりお問い合わせください)
お問い合わせを行う前に
「個人情報の取り扱いについて」を必ずお読みください。
「個人情報の取り扱いについて」に同意いただいた場合は「上記にご同意の上 確認画面へ進む」のボタンをクリックしてください。
個人情報の取り扱いについて
皆さまが送付された個人情報はアットホーム(株)のサーバを経由し、お問い合わせ先の不動産会社にメールまたはFAXにて転送されるためアットホーム(株)にも保管されます。アットホーム(株)で保管された個人情報の取り扱いについては、【こちら】をご覧ください。
また、本画面でご記入いただいた個人情報は、お問い合わせ先の不動産会社でも保管します。 お問い合わせ先の不動産会社が保管する個人情報の取り扱いについては、不動産会社に直接お問い合わせください。
国土交通大臣免許(1)第10473号 |
|---|
- 交通:
- JR山手線/新宿駅 徒歩3分
- 東京都新宿区西新宿1丁目22-1 スタンダードビル4F
- TEL:
- 03-6824-9402
- FAX:
- 03-3342-3400
取引態様:仲介  - 00100471
|
- スマートフォンで
この不動産会社を見る

|
- 提携サイト等より掲載されている物件情報につきましては、不動産会社詳細情報にリンクされていないものがあります。
- 物件に関するお問合せは、物件詳細ページの「情報提供会社」に表示されている不動産会社へ直接お願いいたします。
- 間取図は、現況を優先させていただきます。
- 映像は物件の一部を撮影したものです。物件の契約にあたっての最終判断はご自身の判断に基づいて行ってください。
- 仲介手数料について

アットホームは物件情報の適正化に努めております。
内容に誤りがある場合にはこちらへご連絡ください。