東京都中野区東中野5丁目(東中野駅)の賃貸:物件詳細
交通 所在地 |
駅徒歩 |
賃料 管理費等 |
敷金/保証金 礼金 |
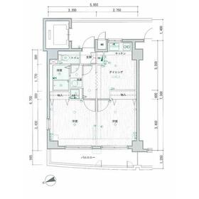
間取り 面積 |
物件種目 築年月 |
|
JR総武線/東中野
東京都中野区東中野5丁目
|
3分
|
14万円
なし
|
1ヶ月 / なし
1ヶ月
|
2DK
40.32m²
|
賃貸マンション
1999年7月(築26年5ヶ月)
|
分譲タイプ、角部屋、高齢者相談、二人入居可、2面採光、24時間換気システム、外観タイル張り、IT重説対応物件
|
|
間取図
|
外観
|
<
その他の画像
>
|
| 交通 | JR総武線 東中野駅 徒歩3分 |
|---|
| その他の交通 | 東京メトロ東西線 落合駅 徒歩5分 西武新宿線 中井駅 徒歩13分 |
| 所在地 |
東京都中野区東中野5丁目
|
| 物件種目 |
賃貸マンション |
| 賃料 |
14万円 |
管理費等 |
なし |
| 敷金 / 保証金 |
1ヶ月 / なし |
礼金 |
1ヶ月 |
| 敷引 |
- |
保証金償却 |
- |
| その他一時金 |
ホームマイスター24:16,500円、事務手数料:11,000円、鍵交換代等:24,200円~ |
保険等 |
要 2年 20,500円 |
| 維持費等 |
- |
| 間取り |
2DK(DK5、洋6.5、洋5.6) |
専有面積 |
40.32m² |
| 築年月 |
1999年7月(築26年5ヶ月)
|
階建 / 階 |
8階建 / 7階 |
| 建物構造 |
RC |
総戸数 |
- |
| 主要採光面 |
西 |
駐車場 |
近有 40,000円/月 |
| バイク置き場 |
- |
駐輪場 |
有 |
| 建物名・部屋番号 |
|
ペット |
-
|
| アピールポイント |
化粧品やスタイリング剤などをまとめて出して、サッと身支度を整えられる独立洗面台を採用しています。部屋着のときでも宅配ボックスを使ってもらえばわざわざ着替えることなく荷物を配達してもらえて便利です。セキュリティ面は、オートロック・TVインターホンなど充実しているので安心して生活できます。収納はクロゼット・全居室収納など豊富なので、広々と空間を利用することも可能です。家族内での会話は大事です。この物件は間取り2DKなのでたっぷり楽しめます。二口コンロが付いたマンションです。清掃しやすくニーズの高い全居室フローリングのお住まいです。CATV対応なので、契約のみで様々なチャンネルが閲覧できます。エアコン付きなので暑い日も寒い日も安心して過ごせます。マンションにはシステムキッチンが備え付けてあります。室内での飽きない快適な生活をしたい方はBS・CSをご覧になるのも良いですよ。 |
| リフォーム履歴 |
- |
| リノベーション履歴 |
- |
| 備考 |
賃貸保証等:加入要(初回 賃料等総額の50%~)
管理形態/管理員の勤務形態:-/-
バルコニー:7.65m²
IT重説対応物件
セキュリティ面は、TVインターホン・オートロックなど充実しているので、防犯対策もばっちりです。収納はクロゼット・全居室収納など豊富なので、広々と空間を利用することも可能です。部屋着のときでも宅配ボックスを使ってもらえばわざわざ着替えることなく荷物を配達してもらえて便利です。入浴後でも温度や湿度に悩まされずに化粧やヘアメイクができる独立洗面台を採用しています。7.65㎡のバルコニーがある物件です。賃料14万円の物件です。天板が一体となっているためコンロとシンクの間に隙間がなく、掃除がしやすいシステムキッチンがあります。ニーズが高いからこその令和8年1月の入居期日指定。通風良好でさわやかな暮らしを送れるマンションとなっております。こちらのお部屋で新しい生活を始めてみませんか。共用設備の充実している、楽しく生活できるマンションです。
|
| エネルギー消費性能 |
- |
| 断熱性能 |
- |
| 目安光熱費 |
- |
| バス・トイレ |
バス・トイレ別、シャワー付洗面化粧台、洗面所独立、洗面所、トイレ |
| キッチン |
オープンキッチン、システムキッチン、2口コンロ、ガスコンロ可、グリル |
| セキュリティー |
モニター付オートロック、オートロック、モニター付インターホン、防犯カメラ |
| 収納 |
全居室収納、収納スペース、クローゼット |
| 設備・サービス |
室内洗濯機置場、洗濯機置場、全居室フローリング、フローリング、都市ガス、エアコン、冷房 |
| TV・通信 |
ケーブルTV、CS、BS端子 |
| その他 |
宅配BOX、バルコニー、駐輪場、エレベーター |
| 契約期間 |
2年 |
現況 |
居住中 |
| 条件等 |
- |
入居可能時期 |
2026年1月中旬予定 |
| 更新料 |
新賃料 1ヶ月 |
物件番号 |
1163174416 |
| 情報公開日 |
2025年11月4日 |
次回更新予定日 |
2025年11月18日 |
| ケータイ用バーコード |
- スマートフォンでこの物件を見る
- スマートフォンからもこの物件をご覧になれます。
|
※「-」と表示されている項目については、情報提供会社にご確認ください。
| 周辺施設 |
ウィズブック保育園中落合 |
| 距離 |
1816m |
写真を見る |
| 周辺施設 |
west53rd(ウェストフィフティーサード) 日本閣 |
| 距離 |
148m |
写真を見る |
| 周辺施設 |
キッチンコート 東中野店 |
| 距離 |
225m |
写真を見る |
| 周辺施設 |
ファミリーマート 東中野五丁目店 |
| 距離 |
257m |
写真を見る |
| 周辺施設 |
ミネドラッグ ユニゾンモール東中野店 |
| 距離 |
225m |
写真を見る |
| 周辺施設 |
西新宿八郵便局 |
| 距離 |
1737m |
写真を見る |
ここから簡単にお問い合わせをすることができます。
(SSLでの暗号化での送信を希望されるお客さまは
こちら
よりお問い合わせください)
お問い合わせを行う前に
「個人情報の取り扱いについて」を必ずお読みください。
「個人情報の取り扱いについて」に同意いただいた場合は「上記にご同意の上 確認画面へ進む」のボタンをクリックしてください。
個人情報の取り扱いについて
皆さまが送付された個人情報はアットホーム(株)のサーバを経由し、お問い合わせ先の不動産会社にメールまたはFAXにて転送されるためアットホーム(株)にも保管されます。アットホーム(株)で保管された個人情報の取り扱いについては、【こちら】をご覧ください。
また、本画面でご記入いただいた個人情報は、お問い合わせ先の不動産会社でも保管します。 お問い合わせ先の不動産会社が保管する個人情報の取り扱いについては、不動産会社に直接お問い合わせください。
東京都知事免許(1)第107337号 |
|---|
- 交通:
- JR山手線/新橋駅 徒歩5分
- 東京都中央区銀座8丁目11-1 GINZA GS BLD.2 7階
- TEL:
- 03-6281-4770
- FAX:
- 03-6281-4771
- 所属団体:
- (公社)東京都宅地建物取引業協会会員(公社)首都圏不動産公正取引協議会加盟
取引態様:仲介  - 00271811
|
- スマートフォンで
この不動産会社を見る

|
- 提携サイト等より掲載されている物件情報につきましては、不動産会社詳細情報にリンクされていないものがあります。
- 物件に関するお問合せは、物件詳細ページの「情報提供会社」に表示されている不動産会社へ直接お願いいたします。
- 間取図は、現況を優先させていただきます。
- 映像は物件の一部を撮影したものです。物件の契約にあたっての最終判断はご自身の判断に基づいて行ってください。
- 仲介手数料について

アットホームは物件情報の適正化に努めております。
内容に誤りがある場合にはこちらへご連絡ください。