東京都文京区本郷5丁目(東大前駅)の賃貸:物件詳細
交通 所在地 |
駅徒歩 |
賃料 管理費等 |
敷金/保証金 礼金 |
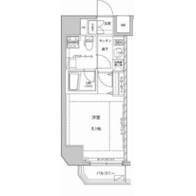
間取り 面積 |
物件種目 築年月 |
|
東京メトロ南北線/東大前
東京都文京区本郷5丁目
|
8分
|
15万円
15,000円
|
1ヶ月 / なし
1ヶ月
|
1K
25.56m²
|
賃貸マンション
2016年9月(築9年7ヶ月)
|
ペット相談、デザイナーズ、分譲タイプ、常時ゴミ出し可能、24時間換気システム、外観タイル張り
|
|
間取図
|
外観
外観は落ち着いています
|
<
その他の画像
>
|
| 交通 | 東京メトロ南北線 東大前駅 徒歩8分 |
|---|
| その他の交通 | 都営大江戸線 本郷三丁目駅 徒歩7分 都営三田線 春日駅 徒歩11分 |
| 所在地 |
東京都文京区本郷5丁目
|
| 物件種目 |
賃貸マンション |
| 賃料 |
15万円 |
管理費等 |
15,000円 |
| 敷金 / 保証金 |
1ヶ月 / なし |
礼金 |
1ヶ月 |
| 敷引 |
- |
保証金償却 |
解約時1ヶ月 |
| その他一時金 |
契約事務手数料:11,000円、入居中サポート:21,450円、鍵交換代等:22,000円~ |
保険等 |
要 2年 23,000円 |
| 維持費等 |
- |
| 間取り |
1K(洋8.1) |
専有面積 |
25.56m² |
| 築年月 |
2016年9月(築9年7ヶ月)
|
階建 / 階 |
14階建 / 2階 |
| 建物構造 |
RC |
総戸数 |
- |
| 主要採光面 |
西 |
駐車場 |
近有 40,000円/月 |
| バイク置き場 |
有 |
駐輪場 |
有 |
| 建物名・部屋番号 |
ジェノヴィア東大前グリーンヴェール |
ペット |
相談 |
| アピールポイント |
収納はクロゼット・全居室収納など豊富なので、衣類や履き物の整理がしやすく便利です。共用部にはゴミ出し24時間OK・宅配ボックスなどが揃っており、とても充実しています。室内設備は浴室乾燥機・洗面化粧台などが揃っているので、快適に過ごしやすいお部屋になります。セキュリティ面は、オートロック・TVインターホンなどを設置しているので安全面でも優れております。築9年のマンション。駅徒歩8分に駅が立地する物件なので、電車を多く利用する方にとって便利です。光回線を繋げましたのでパソコン作業がスムーズです。初の一人暮らしをきっかけにお料理も楽しめる1Kです。スイッチ一つで温度管理できるエアコン付きのマンション。2口コンロが付いているので、おかずや汁物など複数の工程を同時にこなせます。様々な番組が視聴できるBS・CSへの加入で、娯楽も充実します。 |
| リフォーム履歴 |
- |
| リノベーション履歴 |
- |
| 備考 |
賃貸保証等:加入要(初回 賃料等総額の50%~)
管理形態/管理員の勤務形態:-/-
収納はクロゼット・全居室収納などが備え付けられているので、衣類や日用品の収納に重宝します。室内設備は浴室乾燥機・洗面化粧台などが揃っているので、快適に過ごしやすいお部屋になります。セキュリティ面は、TVインターホン・オートロックなどを備え付けているので安心して暮らせます。共用部には宅配ボックス・ゴミ出し24時間OKなどが揃っており、とても充実しています。こちらはマンションタイプになります。バルコニー付きのマンションで、用途に合わせて活用できおすすめです。エレベーター付きの物件です。ご相談次第でペットと暮らせる、ペット相談可の物件です。利便性の高い徒歩8分の物件です。近くの駐車場を利用すると暗い夜道を歩かなくても大丈夫です。14階建てで快適な物件。
|
| エネルギー消費性能 |
- |
| 断熱性能 |
- |
| 目安光熱費 |
- |
| バス・トイレ |
バス・トイレ別、浴室乾燥機、オートバス、追焚機能、温水洗浄便座、トイレ |
| キッチン |
システムキッチン、独立型キッチン、2口コンロ、ガスコンロ可 |
| セキュリティー |
モニター付オートロック、オートロック、モニター付インターホン、ディンプルキー、ダブルロックドア、防犯カメラ |
| 収納 |
全居室収納、収納スペース、クローゼット |
| 設備・サービス |
室内洗濯機置場、洗濯機置場、全居室フローリング、フローリング、都市ガス、エアコン、冷房、照明器具 |
| TV・通信 |
インターネット対応、光ファイバー、CS、BS端子 |
| その他 |
宅配BOX、バイク置き場、バルコニー、駐輪場、エレベーター |
| 契約期間 |
2年 |
現況 |
居住中 |
| 条件等 |
- |
入居可能時期 |
2026年5月上旬予定 |
| 更新料 |
新賃料 1.5ヶ月 |
物件番号 |
1163355122 |
| 情報公開日 |
2026年3月7日 |
次回更新予定日 |
2026年3月21日 |
| ケータイ用バーコード |
- スマートフォンでこの物件を見る
- スマートフォンからもこの物件をご覧になれます。
|
※「-」と表示されている項目については、情報提供会社にご確認ください。
| 周辺施設 |
miniピアゴ本郷5丁目店 |
| 距離 |
433m |
写真を見る |
| 周辺施設 |
ローソン H東大正門前店 |
| 距離 |
64m |
写真を見る |
| 周辺施設 |
くすりの福太郎 本郷店 |
| 距離 |
667m |
写真を見る |
| 周辺施設 |
スターバックスコーヒー 本郷東大前店 |
| 距離 |
498m |
写真を見る |
| 周辺施設 |
マクドナルド 春日駅前店 |
| 距離 |
635m |
写真を見る |
| 周辺施設 |
東京大学内郵便局 |
| 距離 |
1372m |
写真を見る |
ここから簡単にお問い合わせをすることができます。
(SSLでの暗号化での送信を希望されるお客さまは
こちら
よりお問い合わせください)
お問い合わせを行う前に
「個人情報の取り扱いについて」を必ずお読みください。
「個人情報の取り扱いについて」に同意いただいた場合は「上記にご同意の上 確認画面へ進む」のボタンをクリックしてください。
個人情報の取り扱いについて
皆さまが送付された個人情報はアットホーム(株)のサーバを経由し、お問い合わせ先の不動産会社にメールまたはFAXにて転送されるためアットホーム(株)にも保管されます。アットホーム(株)で保管された個人情報の取り扱いについては、【こちら】をご覧ください。
また、本画面でご記入いただいた個人情報は、お問い合わせ先の不動産会社でも保管します。 お問い合わせ先の不動産会社が保管する個人情報の取り扱いについては、不動産会社に直接お問い合わせください。
東京都知事免許(1)第107337号 |
|---|
- 交通:
- JR山手線/新橋駅 徒歩5分
- 東京都中央区銀座8丁目11-1 GINZA GS BLD.2 7階
- TEL:
- 03-6281-4770
- FAX:
- 03-6281-4771
- 所属団体:
- (公社)東京都宅地建物取引業協会会員(公社)首都圏不動産公正取引協議会加盟
取引態様:仲介  - 00271811
|
- スマートフォンで
この不動産会社を見る

|
- 提携サイト等より掲載されている物件情報につきましては、不動産会社詳細情報にリンクされていないものがあります。
- 物件に関するお問合せは、物件詳細ページの「情報提供会社」に表示されている不動産会社へ直接お願いいたします。
- 間取図は、現況を優先させていただきます。
- 映像は物件の一部を撮影したものです。物件の契約にあたっての最終判断はご自身の判断に基づいて行ってください。
- 仲介手数料について

アットホームは物件情報の適正化に努めております。
内容に誤りがある場合にはこちらへご連絡ください。