東京都中野区東中野5丁目(東中野駅)の賃貸:物件詳細
交通 所在地 |
駅徒歩 |
賃料 管理費等 |
敷金/保証金 礼金 |
間取り 面積 |
物件種目 築年月 |
|
JR総武線/東中野
東京都中野区東中野5丁目
|
3分
|
14万円
なし
|
1ヶ月 / なし
1ヶ月
|
2DK
40.32m²
|
賃貸マンション
1999年7月(築26年5ヶ月)
|
分譲タイプ、常時ゴミ出し可能、角部屋、2面採光、24時間換気システム、外観タイル張り、IT重説対応物件、保証人不要
|
|
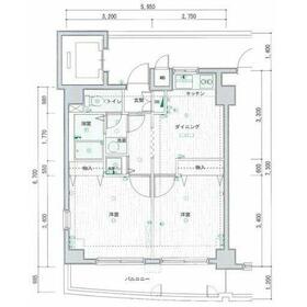
間取図
間取りです。
|
外観
外観です。
|
<
その他の画像
>
|
| 交通 | JR総武線 東中野駅 徒歩3分 |
|---|
| その他の交通 | 東京メトロ東西線 落合駅 徒歩5分 西武新宿線 中井駅 徒歩13分 |
| 所在地 |
東京都中野区東中野5丁目
|
| 物件種目 |
賃貸マンション |
| 賃料 |
14万円 |
管理費等 |
なし |
| 敷金 / 保証金 |
1ヶ月 / なし |
礼金 |
1ヶ月 |
| 敷引 |
- |
保証金償却 |
解約時1ヶ月 |
| その他一時金 |
24時間サポート:16,500円、事務手数料:11,000円、鍵交換代等:24,200円~ |
保険等 |
要 2年 20,500円 |
| 維持費等 |
- |
クレジットカード決済 |
初期費用可 |
| 間取り |
2DK(洋6.5、洋5.6) |
専有面積 |
40.32m² |
| 築年月 |
1999年7月(築26年5ヶ月)
|
階建 / 階 |
8階建 / 7階 |
| 建物構造 |
RC |
総戸数 |
- |
| 主要採光面 |
西 |
駐車場 |
- |
| バイク置き場 |
- |
駐輪場 |
- |
| 建物名・部屋番号 |
パークウェル東中野 |
ペット |
-
|
| アピールポイント |
【仲介手数料賃料の0.55ヶ月対象物件】初期費用の分割・クレジットカード決済可能です。お気軽にご相談下さい。 |
| リフォーム履歴 |
- |
| リノベーション履歴 |
- |
| 備考 |
賃貸保証等:加入要(賃料・管理費総額の50パーセント 2年目以降利用料10,000円)
管理形態/管理員の勤務形態:-/-
バルコニー:7.65m²
IT重説対応物件
契約金のお見積もりや室内写真のご希望など、ご質問・ご要望はお気軽にお問い合わせください。【初期費用の分割・クレジットカード決済可能です】
契約金のお見積もりや室内写真のご希望など、ご質問・ご要望はお気軽にお問い合わせください。【初期費用の分割・クレジットカード決済可能です】
|
| エネルギー消費性能 |
- |
| 断熱性能 |
- |
| 目安光熱費 |
- |
| バス・トイレ |
バス・トイレ別、シャワー付洗面化粧台、洗面所独立、洗面所、洗面台、シャワー、トイレ |
| キッチン |
システムキッチン、2口コンロ、ガスコンロ付、ガスコンロ可、グリル |
| セキュリティー |
モニター付オートロック、オートロック、モニター付インターホン、防犯カメラ |
| 収納 |
収納スペース、クローゼット、シューズボックス |
| 設備・サービス |
室内洗濯機置場、洗濯機置場、都市ガス給湯、給湯、全居室フローリング、フローリング、都市ガス、エアコン、冷房、照明器具 |
| TV・通信 |
インターネット対応、光ファイバー、CATVインターネット、ケーブルTV、CS、BS端子 |
| その他 |
宅配BOX、バルコニー、エレベーター |
| 契約期間 |
2年 |
現況 |
居住中 |
| 条件等 |
- |
入居可能時期 |
2026年1月中旬予定 |
| 更新料 |
新賃料 1ヶ月 |
物件番号 |
1163470916 |
| 情報公開日 |
2025年11月4日 |
次回更新予定日 |
2025年11月19日 |
| ケータイ用バーコード |
- スマートフォンでこの物件を見る
- スマートフォンからもこの物件をご覧になれます。
|
※「-」と表示されている項目については、情報提供会社にご確認ください。
| 周辺施設 |
中野坂上駅 |
| 距離 |
1485m |
写真を見る |
ここから簡単にお問い合わせをすることができます。
(SSLでの暗号化での送信を希望されるお客さまは
こちら
よりお問い合わせください)
お問い合わせを行う前に
「個人情報の取り扱いについて」を必ずお読みください。
「個人情報の取り扱いについて」に同意いただいた場合は「上記にご同意の上 確認画面へ進む」のボタンをクリックしてください。
個人情報の取り扱いについて
皆さまが送付された個人情報はアットホーム(株)のサーバを経由し、お問い合わせ先の不動産会社にメールまたはFAXにて転送されるためアットホーム(株)にも保管されます。アットホーム(株)で保管された個人情報の取り扱いについては、【こちら】をご覧ください。
また、本画面でご記入いただいた個人情報は、お問い合わせ先の不動産会社でも保管します。 お問い合わせ先の不動産会社が保管する個人情報の取り扱いについては、不動産会社に直接お問い合わせください。
東京都知事免許(1)第106608号 |
|---|
- 交通:
- JR山手線/高田馬場駅 徒歩1分
- 東京都新宿区高田馬場3丁目3-1 キカワダビル4階
- TEL:
- 03-5348-3666
- FAX:
- 03-5348-3667
- 所属団体:
- (公社)全日本不動産協会会員(公社)首都圏不動産公正取引協議会加盟
取引態様:仲介  - 00272385
|
- スマートフォンで
この不動産会社を見る

|
- 提携サイト等より掲載されている物件情報につきましては、不動産会社詳細情報にリンクされていないものがあります。
- 物件に関するお問合せは、物件詳細ページの「情報提供会社」に表示されている不動産会社へ直接お願いいたします。
- 間取図は、現況を優先させていただきます。
- 映像は物件の一部を撮影したものです。物件の契約にあたっての最終判断はご自身の判断に基づいて行ってください。
- 仲介手数料について

アットホームは物件情報の適正化に努めております。
内容に誤りがある場合にはこちらへご連絡ください。