東京都板橋区板橋2丁目(板橋区役所前駅)の賃貸:物件詳細
交通 所在地 |
駅徒歩 |
賃料 管理費等 |
敷金/保証金 礼金 |
間取り 面積 |
物件種目 築年月 |
|
都営三田線/板橋区役所前
東京都板橋区板橋2丁目
|
3分
|
7.1万円
4,000円
|
1ヶ月 / なし
1ヶ月
|
1K
25.68m²
|
賃貸アパート
2003年6月(築22年7ヶ月)
|
南向き、IT重説対応物件
|
|
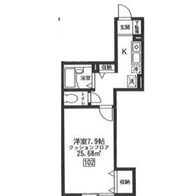
間取図
|
外観
|
その他の画像
|
| 交通 | 都営三田線 板橋区役所前駅 徒歩3分 |
|---|
| その他の交通 | 東武東上線 大山駅 徒歩9分 東武東上線 下板橋駅 徒歩9分 |
| 所在地 |
東京都板橋区板橋2丁目
|
| 物件種目 |
賃貸アパート |
| 賃料 |
7.1万円 |
管理費等 |
4,000円 |
| 敷金 / 保証金 |
1ヶ月 / なし |
礼金 |
1ヶ月 |
| 敷引 |
- |
保証金償却 |
- |
| その他一時金 |
スマートロック初期設定費:13,200円 |
保険等 |
要 1年 10,000円 |
| 維持費等 |
安心入居サポート料:1,100円/月、町会費:200円/月、スマートロック月額利用料:1,100円/月 |
| 間取り |
1K(洋室7.9畳) |
専有面積 |
25.68m² |
| 築年月 |
2003年6月(築22年7ヶ月)
|
階建 / 階 |
3階建 / 1階 |
| 建物構造 |
軽量鉄骨造 |
総戸数 |
- |
| 主要採光面 |
南 |
駐車場 |
無 |
| バイク置き場 |
- |
駐輪場 |
有 |
| 建物名・部屋番号 |
フルールウエハラ 102 |
ペット |
-
|
| リフォーム履歴 |
- |
| リノベーション履歴 |
- |
| 備考 |
賃貸保証等:加入要(初回保証委託料50%、事務手数料毎月賃料の2%)
管理形態/管理員の勤務形態:-/-
IT重説対応物件
更新事務手数料11,000円
○J-com○フレッツ光マンションタイプ○セコムあり○ガスコンロ1口付き○自転車各戸1台迄駐輪可※オートバイ(50cc原付含)駐輪不可
|
| エネルギー消費性能 |
- |
| 断熱性能 |
- |
| 目安光熱費 |
- |
| バス・トイレ |
バス・トイレ別 |
| キッチン |
ガスコンロ付 |
| セキュリティー |
モニター付インターホン、シャッター雨戸 |
| 収納 |
収納スペース、シューズボックス |
| 設備・サービス |
室内洗濯機置場、給湯、都市ガス、エアコン |
| TV・通信 |
ケーブルTV |
| その他 |
駐輪場 |
| 契約期間 |
2年 |
現況 |
空家 |
| 条件等 |
- |
入居可能時期 |
即時 |
| 更新料 |
新賃料 1ヶ月 |
物件番号 |
1163513611 |
| 情報公開日 |
2025年8月4日 |
次回更新予定日 |
2025年12月24日 |
| ケータイ用バーコード |
- スマートフォンでこの物件を見る
- スマートフォンからもこの物件をご覧になれます。
|
※「-」と表示されている項目については、情報提供会社にご確認ください。
ここから簡単にお問い合わせをすることができます。
(SSLでの暗号化での送信を希望されるお客さまは
こちら
よりお問い合わせください)
お問い合わせを行う前に
「個人情報の取り扱いについて」を必ずお読みください。
「個人情報の取り扱いについて」に同意いただいた場合は「上記にご同意の上 確認画面へ進む」のボタンをクリックしてください。
個人情報の取り扱いについて
皆さまが送付された個人情報はアットホーム(株)のサーバを経由し、お問い合わせ先の不動産会社にメールまたはFAXにて転送されるためアットホーム(株)にも保管されます。アットホーム(株)で保管された個人情報の取り扱いについては、【こちら】をご覧ください。
また、本画面でご記入いただいた個人情報は、お問い合わせ先の不動産会社でも保管します。 お問い合わせ先の不動産会社が保管する個人情報の取り扱いについては、不動産会社に直接お問い合わせください。
東京都知事免許(9)第54992号 |
|---|
- 交通:
- JR山手線/高田馬場駅 徒歩8分
- 東京都新宿区下落合2丁目5-10 SRSビル
- TEL:
- 03-6908-0133
- FAX:
- 03-6908-0356
- 所属団体:
- (公社)東京都宅地建物取引業協会会員(公社)首都圏不動産公正取引協議会加盟
取引態様:仲介  - 00830008
|
- スマートフォンで
この不動産会社を見る

|
- 提携サイト等より掲載されている物件情報につきましては、不動産会社詳細情報にリンクされていないものがあります。
- 物件に関するお問合せは、物件詳細ページの「情報提供会社」に表示されている不動産会社へ直接お願いいたします。
- 間取図は、現況を優先させていただきます。
- 映像は物件の一部を撮影したものです。物件の契約にあたっての最終判断はご自身の判断に基づいて行ってください。
- 仲介手数料について

アットホームは物件情報の適正化に努めております。
内容に誤りがある場合にはこちらへご連絡ください。