東京都港区芝大門2丁目(浜松町駅)の賃貸:物件詳細
交通 所在地 |
駅徒歩 |
賃料 管理費等 |
敷金/保証金 礼金 |
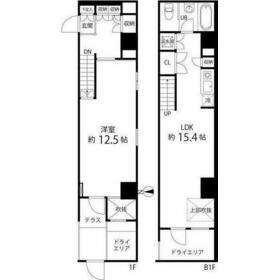
間取り 面積 |
物件種目 築年月 |
|
JR京浜東北線/浜松町
東京都港区芝大門2丁目
|
7分
|
30.8万円
12,000円
|
なし / なし
なし
|
1LDK
66.72m²
|
賃貸マンション
2002年11月(築23年)
|
ペット相談、常時ゴミ出し可能、角部屋、二人入居可、2面採光、24時間換気システム、吹抜、閑静な住宅街、オール電化、外観タイル張り、メゾネット、IT重説対応物件、保証人不要
|
|
間取図
|
外観
|
<
その他の画像
>
|
| 交通 | JR京浜東北線 浜松町駅 徒歩7分 |
|---|
| その他の交通 | 都営大江戸線 大門駅 徒歩3分 都営三田線 芝公園駅 徒歩5分 |
| 所在地 |
東京都港区芝大門2丁目
|
| 物件種目 |
賃貸マンション |
| 賃料 |
30.8万円 |
管理費等 |
12,000円 |
| 敷金 / 保証金 |
なし / なし |
礼金 |
なし |
| 敷引 |
- |
保証金償却 |
- |
| その他一時金 |
なし |
保険等 |
要 2年 24,000円 |
| 維持費等 |
- |
| 間取り |
1LDK(LDK15.4帖 洋室12.5帖) |
専有面積 |
66.72m² |
| 築年月 |
2002年11月(築23年)
|
階建 / 階 |
地上10階地下1階建 / メゾネット地下1階~1階部分 |
| 建物構造 |
RC |
総戸数 |
63戸 |
| 主要採光面 |
東 |
駐車場 |
有 33,000円/月 |
| バイク置き場 |
- |
駐輪場 |
有 330円/月 |
| 建物名・部屋番号 |
ハイリーフ芝大門 |
ペット |
相談 |
| アピールポイント |
★ご見学可能です!★礼金0・フリーレント付き★初期費用がお得なマンション★現地でのお待ち合わせ・オンラインでのご対応など気軽にご相談ください★ |
| リフォーム履歴 |
- |
| リノベーション履歴 |
- |
| 備考 |
賃貸保証等:加入要(加入料:総賃料(賃料+共益費+駐輪料)の50% 更新料:1年ごとに総賃料の25%利用設備(駐車場・バ)
管理形態/管理員の勤務形態:-/巡回
駐車場敷金:1.00ヶ月
IT重説対応物件、管理人巡回
★最適な物件に出会える様、全力でサポート致します★WEB相談・WEB内見・IT重説に対応。初期費用(一部)クレジット決済対応。詳細は【03-3436-1537】までお問い合わせください。
|
| エネルギー消費性能 |
- |
| 断熱性能 |
- |
| 目安光熱費 |
- |
| バス・トイレ |
浴室乾燥機、洗面台、バス・トイレ同室、シャワー、温水洗浄便座、トイレ |
| キッチン |
システムキッチン、IHクッキングヒーター |
| セキュリティー |
オートロック、ダブルロックドア、防犯カメラ、火災警報器(報知機) |
| 収納 |
収納スペース、クローゼット、シューズボックス |
| 設備・サービス |
給湯、全居室フローリング、フローリング、エアコン、暖房、冷房 |
| TV・通信 |
インターネット対応、インターネット使用料無料、光ファイバー、ケーブルTV、CS、BS端子 |
| その他 |
宅配BOX、駐輪場、テラス、エレベーター |
| 契約期間 |
2年 |
現況 |
空家 |
| 条件等 |
定期借家 |
入居可能時期 |
即時 |
| 仲介手数料 |
1.1ヶ月 |
|
|
| 更新料 |
新賃料 1ヶ月 |
物件番号 |
1163901412 |
| 情報公開日 |
2025年8月18日 |
次回更新予定日 |
2025年11月2日 |
| ケータイ用バーコード |
- スマートフォンでこの物件を見る
- スマートフォンからもこの物件をご覧になれます。
|
※「-」と表示されている項目については、情報提供会社にご確認ください。
| 周辺施設 |
アトレ竹芝 |
| 距離 |
1290m |
写真を見る |
| 周辺施設 |
まいばすけっと |
| 距離 |
383m |
写真を見る |
| 周辺施設 |
マルエツ プチ |
| 距離 |
541m |
写真を見る |
| 周辺施設 |
ファミリーマート |
| 距離 |
109m |
写真を見る |
| 周辺施設 |
セブンイレブン |
| 距離 |
183m |
写真を見る |
| 周辺施設 |
クリエイトエス・ディー港区芝大門店 |
| 距離 |
110m |
写真を見る |
ここから簡単にお問い合わせをすることができます。
(SSLでの暗号化での送信を希望されるお客さまは
こちら
よりお問い合わせください)
お問い合わせを行う前に
「個人情報の取り扱いについて」を必ずお読みください。
「個人情報の取り扱いについて」に同意いただいた場合は「上記にご同意の上 確認画面へ進む」のボタンをクリックしてください。
個人情報の取り扱いについて
皆さまが送付された個人情報はアットホーム(株)のサーバを経由し、お問い合わせ先の不動産会社にメールまたはFAXにて転送されるためアットホーム(株)にも保管されます。アットホーム(株)で保管された個人情報の取り扱いについては、【こちら】をご覧ください。
また、本画面でご記入いただいた個人情報は、お問い合わせ先の不動産会社でも保管します。 お問い合わせ先の不動産会社が保管する個人情報の取り扱いについては、不動産会社に直接お問い合わせください。
国土交通大臣免許(1)第9926号 |
|---|
- 交通:
- 東京メトロ千代田線/赤坂駅 徒歩2分
- 東京都港区赤坂3丁目15-10 SP赤坂ビル3階
- TEL:
- 03-5563-9055
- FAX:
- 03-5563-9056
取引態様:仲介  - 00265348
|
- スマートフォンで
この不動産会社を見る

|
- 提携サイト等より掲載されている物件情報につきましては、不動産会社詳細情報にリンクされていないものがあります。
- 物件に関するお問合せは、物件詳細ページの「情報提供会社」に表示されている不動産会社へ直接お願いいたします。
- 間取図は、現況を優先させていただきます。
- 映像は物件の一部を撮影したものです。物件の契約にあたっての最終判断はご自身の判断に基づいて行ってください。
- 仲介手数料について

アットホームは物件情報の適正化に努めております。
内容に誤りがある場合にはこちらへご連絡ください。