東京都文京区水道1丁目(飯田橋駅)の賃貸:物件詳細
交通 所在地 |
駅徒歩 |
賃料 管理費等 |
敷金/保証金 礼金 |
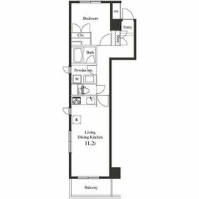
間取り 面積 |
物件種目 築年月 |
|
JR総武線/飯田橋
東京都文京区水道1丁目
|
9分
|
20万円
10,000円
|
1ヶ月 / なし
なし
|
1LDK
45.09m²
|
賃貸マンション
2006年11月(築19年4ヶ月)
|
ペット相談、フリーレント、分譲タイプ、常時ゴミ出し可能、角部屋、高齢者相談、二人入居可、2面採光、外観タイル張り、IT重説対応物件、保証人不要
|
|
間取図
|
外観
落ち着いた雰囲気の外観です
|
<
その他の画像
>
|
| 交通 | JR総武線 飯田橋駅 徒歩9分 |
|---|
| その他の交通 | 東京メトロ丸ノ内線 後楽園駅 徒歩11分 都営大江戸線 春日駅 徒歩15分 |
| 所在地 |
東京都文京区水道1丁目
|
| 物件種目 |
賃貸マンション |
| 賃料 |
20万円 |
管理費等 |
10,000円 |
| 敷金 / 保証金 |
1ヶ月 / なし |
礼金 |
なし |
| 敷引 |
- |
保証金償却 |
- |
| その他一時金 |
なし、鍵交換代等:30,800円~ |
保険等 |
要 |
| 維持費等 |
- |
| 間取り |
1LDK(LDK11.2、洋5.2) |
専有面積 |
45.09m² |
| 築年月 |
2006年11月(築19年4ヶ月)
|
階建 / 階 |
地上7階地下1階建 / 5階 |
| 建物構造 |
RC |
総戸数 |
- |
| 主要採光面 |
北東 |
駐車場 |
近有 40,000円/月 |
| バイク置き場 |
有 5,500円/月 |
駐輪場 |
有 |
| 建物名・部屋番号 |
プライマル小石川 |
ペット |
相談 |
| アピールポイント |
共用部には敷地内ごみ置き場・エレベータ・バイク置場などが備わっておりとても充実しています。室内設備はシステムキッチン・BS・CS・追い焚きなど充実した設備を備え付けています。3口コンロが付いているので、3つの料理を同時に進められて時短につながります。フローリングは木の持つ風合い、自然な暖かみが魅力です。お部屋の広さ45.09㎡。ペットの飼育が可能かどうかを事前にご相談いただけます。さわやかな朝を迎えることのできる通風良好な物件。3駅以上利用可なので、利便性を求める方もご満足頂ける条件です。朝に慌てることなく行動するために駅から徒歩9分の駅近物件はいかがでしょうか。 |
| リフォーム履歴 |
- |
| リノベーション履歴 |
- |
| 備考 |
賃貸保証等:加入要(初回 賃料総額の30%~)
管理形態/管理員の勤務形態:-/-
フリーレント:1ヶ月(賃料のみ)
IT重説対応物件
室内設備は浴室乾燥機・洗面化粧台など大変充実しております。収納はクロゼット・トランクルームなど豊富なので、衣類や履き物の整理がしやすく便利です。セキュリティ面は、TVインターホン・オートロックなどを設置しているので安全面でも優れております。共用部には宅配ボックス・ゴミ出し24時間OKなどが揃っており、とても充実しています。ペットがお好きな方にうれしい、ペット相談可の物件です。専有面積45.09平米もある広々とした住まい。流行の海外映画もBS・CSでチェックできますよ。お車をお持ちの方にオススメの、近隣に駐車スペースがあるマンション。兄弟で暮らすかたにもオススメの物件で、快適な1LDKです。こちらのお住まいは、敷地内ごみ置き場のある物件です。礼金不要のマンションです。
|
| エネルギー消費性能 |
- |
| 断熱性能 |
- |
| 目安光熱費 |
- |
| バス・トイレ |
バス・トイレ別、浴室乾燥機、オートバス、追焚機能、シャワー付洗面化粧台、洗面所独立、洗面所、温水洗浄便座、トイレ |
| キッチン |
システムキッチン、3口以上コンロ、ガスコンロ可、グリル |
| セキュリティー |
モニター付オートロック、オートロック、モニター付インターホン、防犯カメラ |
| 収納 |
収納スペース、トランクルーム、クローゼット |
| 設備・サービス |
洗濯機置場、全居室フローリング、フローリング、都市ガス、エアコン、冷房 |
| TV・通信 |
インターネット対応、CATVインターネット、ケーブルTV、CS、BS端子 |
| その他 |
宅配BOX、バイク置き場、バルコニー、駐輪場、エレベーター |
| 契約期間 |
2年 |
現況 |
空家 |
| 条件等 |
- |
入居可能時期 |
即時 |
| 更新料 |
新賃料 1ヶ月 |
物件番号 |
1163933019 |
| 情報公開日 |
2026年1月18日 |
次回更新予定日 |
2026年2月14日 |
| ケータイ用バーコード |
- スマートフォンでこの物件を見る
- スマートフォンからもこの物件をご覧になれます。
|
※「-」と表示されている項目については、情報提供会社にご確認ください。
| 周辺施設 |
本郷保育園 |
| 距離 |
1454m |
写真を見る |
| 周辺施設 |
神楽坂友野 |
| 距離 |
1575m |
写真を見る |
| 周辺施設 |
ベローチェ 春日駅前店 |
| 距離 |
1285m |
写真を見る |
| 周辺施設 |
いなげや 飯田橋店 |
| 距離 |
614m |
写真を見る |
| 周辺施設 |
セブンイレブン 文京春日1丁目店 |
| 距離 |
281m |
写真を見る |
| 周辺施設 |
春日クリニック |
| 距離 |
1500m |
写真を見る |
ここから簡単にお問い合わせをすることができます。
(SSLでの暗号化での送信を希望されるお客さまは
こちら
よりお問い合わせください)
お問い合わせを行う前に
「個人情報の取り扱いについて」を必ずお読みください。
「個人情報の取り扱いについて」に同意いただいた場合は「上記にご同意の上 確認画面へ進む」のボタンをクリックしてください。
個人情報の取り扱いについて
皆さまが送付された個人情報はアットホーム(株)のサーバを経由し、お問い合わせ先の不動産会社にメールまたはFAXにて転送されるためアットホーム(株)にも保管されます。アットホーム(株)で保管された個人情報の取り扱いについては、【こちら】をご覧ください。
また、本画面でご記入いただいた個人情報は、お問い合わせ先の不動産会社でも保管します。 お問い合わせ先の不動産会社が保管する個人情報の取り扱いについては、不動産会社に直接お問い合わせください。
東京都知事免許(1)第107337号 |
|---|
- 交通:
- JR山手線/新宿駅 徒歩1分
- 東京都新宿区西新宿1丁目3-3 品川ステーションビル新宿5F
- TEL:
- 03-6258-0867
- 所属団体:
- (公社)東京都宅地建物取引業協会会員(公社)首都圏不動産公正取引協議会加盟
取引態様:仲介  - 00278932
|
- スマートフォンで
この不動産会社を見る

|
- 提携サイト等より掲載されている物件情報につきましては、不動産会社詳細情報にリンクされていないものがあります。
- 物件に関するお問合せは、物件詳細ページの「情報提供会社」に表示されている不動産会社へ直接お願いいたします。
- 間取図は、現況を優先させていただきます。
- 映像は物件の一部を撮影したものです。物件の契約にあたっての最終判断はご自身の判断に基づいて行ってください。
- 仲介手数料について

アットホームは物件情報の適正化に努めております。
内容に誤りがある場合にはこちらへご連絡ください。