東京都港区東麻布3丁目(麻布十番駅)の賃貸:物件詳細
交通 所在地 |
駅徒歩 |
賃料 管理費等 |
敷金/保証金 礼金 |
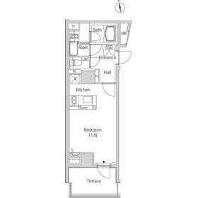
間取り 面積 |
物件種目 築年月 |
|
東京メトロ南北線/麻布十番
東京都港区東麻布3丁目
|
1分
|
17.9万円
10,000円
|
1ヶ月 / なし
1ヶ月
|
ワンルーム
31.16m²
|
賃貸マンション
2020年3月(築5年9ヶ月)
|
ペット相談、南向き、24時間換気システム、外観タイル張り、保証人不要
|
|
間取図
|
外観
|
<
その他の画像
>
|
| 交通 | 東京メトロ南北線 麻布十番駅 徒歩1分 |
|---|
| その他の交通 | 都営大江戸線 麻布十番駅 徒歩1分 都営大江戸線 赤羽橋駅 徒歩9分 |
| 所在地 |
東京都港区東麻布3丁目
|
| 物件種目 |
賃貸マンション |
| 賃料 |
17.9万円 |
管理費等 |
10,000円 |
| 敷金 / 保証金 |
1ヶ月 / なし |
礼金 |
1ヶ月 |
| 敷引 |
- |
保証金償却 |
- |
| その他一時金 |
なし |
保険等 |
不要 |
| 維持費等 |
- |
| 間取り |
ワンルーム |
専有面積 |
31.16m² |
| 築年月 |
2020年3月(築5年9ヶ月)
|
階建 / 階 |
6階建 / 1階 |
| 建物構造 |
RC |
総戸数 |
- |
| 主要採光面 |
南 |
駐車場 |
無 |
| バイク置き場 |
無 |
駐輪場 |
有 330円/月 |
| 建物名・部屋番号 |
カーサスプレンディッド麻布十番駅前 102 |
ペット |
相談 |
| アピールポイント |
収納はシューズボックス・全居室収納など豊富なので、広々と空間を利用することも可能です。セキュリティ面は、オートロック・TVインターホンなどを設置しているので安全面でも優れております。室内設備は浴室乾燥機・洗面化粧台など豊富に揃っており、過ごしやすいお部屋になっております。宅配ボックスがあるので家に不在の場合でも、最短の時間で荷物を受け取ることができます。システムキッチン付きで、お料理と後片付けが手早くできます。暮らしやすいワンルームなので一人で住む方にオススメ。徒歩1分で駅にアクセスできる物件です。BS加入予定の方に嬉しい、アンテナ設置済みで工事費の要らない物件です。周辺に2駅あるので電車通勤しやすいです。建築面積31.16㎡の物件です。マンションに光回線を繋いでパソコンを使いやすくしました。 |
| リフォーム履歴 |
- |
| リノベーション履歴 |
- |
| 備考 |
賃貸保証等:利用可(●オリコフォレントインシュア(初回保証委託料は賃料等の1ヶ月分、1年毎に1万円の保証委託料)●アイシンクレント(ご所有のクレジットカードで賃料保証と家財保険を決済。月額賃料等の4.25%+700円)
管理形態/管理員の勤務形態:-/-
室内設備は洗面化粧台・浴室乾燥機など充実した設備を備え付けています。収納はシューズボックス・全居室収納など豊富なので、衣類や履き物の整理がしやすく便利です。宅配ボックスに荷物を預けられるので、配達時間に家で直接対応する必要はなく外出中や仕事中に時間を気にする必要はありません。セキュリティ面は、オートロック・TVインターホンなど充実しているので安心して生活できます。BS用の環境は整っているため、BS加入後すぐに視聴できます。ご紹介するのは令和2年3月竣工・築5年の物件です。新生活、オシャレなワンルームで楽しく快適な暮らしを実現。マンションタイプのお部屋です。寒い季節も安心の追い焚き機能付きです。朝の時間を有効活用できる敷地内ごみ置き場のあるお住まいです。ペットと一緒に暮らしたい方にもうれしい、ペット相談可の物件です。
|
| エネルギー消費性能 |
- |
| 断熱性能 |
- |
| 目安光熱費 |
- |
| バス・トイレ |
バス・トイレ別、浴室乾燥機、追焚機能、洗面台、シャワー、温水洗浄便座、トイレ |
| キッチン |
カウンターキッチン、システムキッチン、2口コンロ、ガスコンロ可 |
| セキュリティー |
モニター付オートロック、オートロック、モニター付インターホン、ダブルロックドア |
| 収納 |
全居室収納、収納スペース、シューズボックス |
| 設備・サービス |
室内洗濯機置場、洗濯機置場、都市ガス給湯、給湯、フローリング、都市ガス、エアコン、冷房、人感センサー付照明、照明器具 |
| TV・通信 |
インターネット対応、光ファイバー、ケーブルTV、CS、BS端子 |
| その他 |
宅配BOX、駐輪場、テラス、エレベーター |
| 契約期間 |
2年 |
現況 |
空家 |
| 条件等 |
- |
入居可能時期 |
即時 |
| 更新料 |
新賃料 1ヶ月 |
物件番号 |
1163967616 |
| 情報公開日 |
2025年11月5日 |
次回更新予定日 |
2025年11月19日 |
| ケータイ用バーコード |
- スマートフォンでこの物件を見る
- スマートフォンからもこの物件をご覧になれます。
|
※「-」と表示されている項目については、情報提供会社にご確認ください。
| 周辺施設 |
麻布十番ストレッチ&ゴルフスタジオ |
| 距離 |
227m |
写真を見る |
| 周辺施設 |
叙々苑 麻布十番店 |
| 距離 |
373m |
写真を見る |
| 周辺施設 |
フレッシュネスバーガー 麻布十番店 |
| 距離 |
219m |
写真を見る |
| 周辺施設 |
BEYOND(ビヨンド) 麻布十番店 |
| 距離 |
124m |
写真を見る |
| 周辺施設 |
PGI PHOTO GALLERY INTERNATIONAL(ピージーアイ フォト ギャラリー インターナショナル) |
| 距離 |
658m |
写真を見る |
| 周辺施設 |
まいばすけっと 東麻布2丁目店 |
| 距離 |
381m |
写真を見る |
| 周辺施設 |
成城石井 東麻布店 |
| 距離 |
454m |
写真を見る |
| 周辺施設 |
ナチュラルローソン NL東麻布三丁目店 |
| 距離 |
84m |
写真を見る |
ここから簡単にお問い合わせをすることができます。
(SSLでの暗号化での送信を希望されるお客さまは
こちら
よりお問い合わせください)
お問い合わせを行う前に
「個人情報の取り扱いについて」を必ずお読みください。
「個人情報の取り扱いについて」に同意いただいた場合は「上記にご同意の上 確認画面へ進む」のボタンをクリックしてください。
個人情報の取り扱いについて
皆さまが送付された個人情報はアットホーム(株)のサーバを経由し、お問い合わせ先の不動産会社にメールまたはFAXにて転送されるためアットホーム(株)にも保管されます。アットホーム(株)で保管された個人情報の取り扱いについては、【こちら】をご覧ください。
また、本画面でご記入いただいた個人情報は、お問い合わせ先の不動産会社でも保管します。 お問い合わせ先の不動産会社が保管する個人情報の取り扱いについては、不動産会社に直接お問い合わせください。
東京都知事免許(1)第112577号 |
|---|
- 交通:
- 都営大江戸線/大門駅
- 東京都港区芝公園1丁目8-20
- TEL:
- 03-6381-5412
- 所属団体:
- (公社)全日本不動産協会会員(公社)首都圏不動産公正取引協議会加盟
取引態様:仲介  - 00281740
|
- スマートフォンで
この不動産会社を見る

|
- 提携サイト等より掲載されている物件情報につきましては、不動産会社詳細情報にリンクされていないものがあります。
- 物件に関するお問合せは、物件詳細ページの「情報提供会社」に表示されている不動産会社へ直接お願いいたします。
- 間取図は、現況を優先させていただきます。
- 映像は物件の一部を撮影したものです。物件の契約にあたっての最終判断はご自身の判断に基づいて行ってください。
- 仲介手数料について

アットホームは物件情報の適正化に努めております。
内容に誤りがある場合にはこちらへご連絡ください。