東京都練馬区三原台2丁目(石神井公園駅)の賃貸:物件詳細
交通 所在地 |
駅徒歩 |
賃料 管理費等 |
敷金/保証金 礼金 |
間取り 面積 |
物件種目 築年月 |
|
西武池袋線/石神井公園
東京都練馬区三原台2丁目
|
24分
|
8.5万円
5,000円
|
なし / なし
なし
|
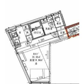
ワンルーム
26.60m²
|
賃貸マンション
2025年1月(築1年未満)
|
ペット相談、角部屋、24時間換気システム、閑静な住宅街、保証人不要
|
|
間取図
|
外観
外観
|
<
その他の画像
>
|
| 交通 | 西武池袋線 石神井公園駅 徒歩24分 |
|---|
| その他の交通 | 西武池袋線 石神井公園駅 【バス】 12分 三原台2丁目 停歩1分 西武池袋線 大泉学園駅 徒歩27分 |
| 所在地 |
東京都練馬区三原台2丁目
|
| 物件種目 |
賃貸マンション |
| 賃料 |
8.5万円 |
管理費等 |
5,000円 |
| 敷金 / 保証金 |
なし / なし |
礼金 |
なし |
| 敷引 |
- |
保証金償却 |
- |
| その他一時金 |
なし、鍵交換代等:22,000円~ |
保険等 |
要 2年 19,000円 |
| 維持費等 |
24時間サポート:1,100円/月 |
| 間取り |
ワンルーム |
専有面積 |
26.60m² |
| 築年月 |
2025年1月(築1年未満)
|
階建 / 階 |
4階建 / 1階 |
| 建物構造 |
RC |
総戸数 |
- |
| 主要採光面 |
|
駐車場 |
- |
| バイク置き場 |
無 |
駐輪場 |
有 1,000円/月 |
| 建物名・部屋番号 |
シュロス石神井公園 101 |
ペット |
相談 |
| アピールポイント |
他社様の物件もお気軽にご相談ください。当店ならオンラインで見学・接客可能です! |
| リフォーム履歴 |
- |
| リノベーション履歴 |
- |
| 備考 |
賃貸保証等:加入要(賃貸保証料:0.50ヶ月)
管理形態/管理員の勤務形態:-/-
ご紹介できるお部屋の情報量に自信あり!クレジットカード決済が可能なお部屋もお取り扱いあります!お家賃の減額や契約の開始時期など全力で交渉致します!お部屋探しは、首都圏直営120店舗以上のタウンハウジングへ!まずはお気軽にお電話下さい!安心してお部屋をお探しできるよう親切・丁寧にご紹介する事を心掛けております★※1年未満の解約は違約金1か月
|
| エネルギー消費性能 |
- |
| 断熱性能 |
- |
| 目安光熱費 |
- |
| バス・トイレ |
バス・トイレ別、浴室乾燥機、シャワー付洗面化粧台、洗面所独立、洗面所、洗面台、温水洗浄便座、トイレ |
| キッチン |
システムキッチン、IHクッキングヒーター、2口コンロ |
| セキュリティー |
オートロック、モニター付インターホン、ディンプルキー、防犯カメラ |
| 収納 |
収納スペース、シューズボックス |
| 設備・サービス |
室内洗濯機置場、都市ガス給湯、給湯、室内物干し、都市ガス、エアコン |
| TV・通信 |
インターネット対応、インターネット使用料無料 |
| その他 |
宅配BOX、駐輪場 |
| 契約期間 |
2年 |
現況 |
空家 |
| 条件等 |
- |
入居可能時期 |
即時 |
| 仲介手数料 |
1.1ヶ月 |
|
|
| 更新料 |
新賃料 1ヶ月 |
物件番号 |
1164048315 |
| 情報公開日 |
2025年11月8日 |
次回更新予定日 |
2025年11月22日 |
| ケータイ用バーコード |
- スマートフォンでこの物件を見る
- スマートフォンからもこの物件をご覧になれます。
|
※「-」と表示されている項目については、情報提供会社にご確認ください。
| 周辺施設 |
LIVINオズ大泉 |
| 距離 |
1270m |
写真を見る |
| 周辺施設 |
アコレ練馬土支田店 |
| 距離 |
1330m |
写真を見る |
| 周辺施設 |
セブンイレブン練馬土支田3丁目店 |
| 距離 |
710m |
写真を見る |
| 周辺施設 |
ウエルシア練馬三原台店 |
| 距離 |
1000m |
写真を見る |
ここから簡単にお問い合わせをすることができます。
(SSLでの暗号化での送信を希望されるお客さまは
こちら
よりお問い合わせください)
お問い合わせを行う前に
「個人情報の取り扱いについて」を必ずお読みください。
「個人情報の取り扱いについて」に同意いただいた場合は「上記にご同意の上 確認画面へ進む」のボタンをクリックしてください。
個人情報の取り扱いについて
皆さまが送付された個人情報はアットホーム(株)のサーバを経由し、お問い合わせ先の不動産会社にメールまたはFAXにて転送されるためアットホーム(株)にも保管されます。アットホーム(株)で保管された個人情報の取り扱いについては、【こちら】をご覧ください。
また、本画面でご記入いただいた個人情報は、お問い合わせ先の不動産会社でも保管します。 お問い合わせ先の不動産会社が保管する個人情報の取り扱いについては、不動産会社に直接お問い合わせください。
国土交通大臣免許(1)第9926号 |
|---|
- 交通:
- JR中央線/荻窪駅 徒歩3分
- 東京都杉並区荻窪5丁目14-13 101号室
- TEL:
- 03-3220-7700
- FAX:
- 03-3220-7701
- 所属団体:
- 所属団体未加入会員
取引態様:仲介  - 00268143
|
- スマートフォンで
この不動産会社を見る

|
- 提携サイト等より掲載されている物件情報につきましては、不動産会社詳細情報にリンクされていないものがあります。
- 物件に関するお問合せは、物件詳細ページの「情報提供会社」に表示されている不動産会社へ直接お願いいたします。
- 間取図は、現況を優先させていただきます。
- 映像は物件の一部を撮影したものです。物件の契約にあたっての最終判断はご自身の判断に基づいて行ってください。
- 仲介手数料について

アットホームは物件情報の適正化に努めております。
内容に誤りがある場合にはこちらへご連絡ください。