東京都台東区清川1丁目(南千住駅)の賃貸:物件詳細
交通 所在地 |
駅徒歩 |
賃料 管理費等 |
敷金/保証金 礼金 |
間取り 面積 |
物件種目 築年月 |
|
JR常磐線/南千住
東京都台東区清川1丁目
|
10分
|
16.2万円
15,000円
|
なし / なし
2ヶ月
|
1SLDK
45.01m²
|
賃貸マンション
2019年7月(築6年5ヶ月)
|
ペット相談、分譲タイプ、常時ゴミ出し可能、角部屋、南向き、高齢者相談、二人入居可、2面採光、24時間換気システム、保証人不要
|
|
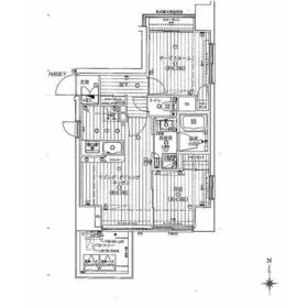
間取図
|
外観
|
<
その他の画像
>
|
| 交通 | JR常磐線 南千住駅 徒歩10分 |
|---|
| その他の交通 | 東京メトロ日比谷線 三ノ輪駅 徒歩17分 つくばエクスプレス 南千住駅 徒歩15分 |
| 所在地 |
東京都台東区清川1丁目
|
| 物件種目 |
賃貸マンション |
| 賃料 |
16.2万円 |
管理費等 |
15,000円 |
| 敷金 / 保証金 |
なし / なし |
礼金 |
2ヶ月 |
| 敷引 |
- |
保証金償却 |
- |
| その他一時金 |
室内抗菌代(必須):13,000円、鍵交換代等:33,000円~ |
保険等 |
不要 |
| 維持費等 |
ベルプラス(必須):2,200円/月 |
| 間取り |
1SLDK(洋4.5、LDK9.7、S6.3) |
専有面積 |
45.01m² |
| 築年月 |
2019年7月(築6年5ヶ月)
|
階建 / 階 |
9階建 / 4階 |
| 建物構造 |
RC |
総戸数 |
- |
| 主要採光面 |
南 |
駐車場 |
近有 33,000円/月 |
| バイク置き場 |
有 |
駐輪場 |
有 |
| 建物名・部屋番号 |
デラモット浅草エスト |
ペット |
相談 |
| アピールポイント |
共用部には宅配ボックス・ゴミ出し24時間OKなどが揃っており、とても充実しています。室内設備は洗面所独立・浴室乾燥機など大変充実しております。セキュリティ面は、オートロック・TVインターホンなどを備え付けているので安心して暮らせます。こちらは家賃16.2万円の物件です。防犯カメラには犯罪を抑止する効果があります。通風良好なマンションは洗濯物も乾きやすくなっています。全居室が扱いやすいフローリングとなっており、掃除も楽々カンタン。指定期日は令和8年1月となっておりますのでご連絡はお急ぎくださいね。入居してからペットの飼育を始めたい方は、事前にご相談ください。3口コンロの物件は焼く・蒸す・煮るなどの異なる工程も同時に進められるため効率アップを目指せます。 |
| リフォーム履歴 |
- |
| リノベーション履歴 |
- |
| 備考 |
賃貸保証等:加入要(指定保証会社:初回契約時:50%、[JRAG:1万円/年(月330円)] [カーサ:月1%] [:月額保証料1%]※外国籍の方は敷金1ヶ月追加となります。)
管理形態/管理員の勤務形態:-/-
共用部にはゴミ出し24時間OK・宅配ボックスなどが揃っております。室内設備は浴室乾燥機・洗面化粧台など豊富に揃っており、過ごしやすいお部屋になっております。セキュリティ面は、TVインターホン・オートロックなどを設置しているので安全面でも優れております。BS・CSが利用可能なので、幅広いアニメや映画も楽しめます。2019年築で、多くの方がご満足の物件はこちらです。システムキッチンはシンクやコンロ、作業台などが一体化しているので、掃除がしやすい構造になっています。専有面積は45.01平米となっております。全居室フローリングなので静電気が発生しにくくなっています。犯罪防止効果が期待できる防犯カメラ付き物件です。エアコン付きなので、室内の温度調整が簡単です。
|
| エネルギー消費性能 |
- |
| 断熱性能 |
- |
| 目安光熱費 |
- |
| バス・トイレ |
バス・トイレ別、浴室乾燥機、オートバス、追焚機能、洗面所独立、洗面所、温水洗浄便座、トイレ |
| キッチン |
カウンターキッチン、システムキッチン、3口以上コンロ、ガスコンロ可、グリル |
| セキュリティー |
モニター付オートロック、オートロック、モニター付インターホン、防犯カメラ |
| 収納 |
収納スペース、クローゼット |
| 設備・サービス |
室内洗濯機置場、洗濯機置場、全居室フローリング、フローリング、都市ガス、エアコン、冷房 |
| TV・通信 |
インターネット対応、光ファイバー、CS、BS端子 |
| その他 |
宅配BOX、バイク置き場、バルコニー、駐輪場、エレベーター |
| 契約期間 |
2年 |
現況 |
居住中 |
| 条件等 |
- |
入居可能時期 |
2026年1月中旬予定 |
| 更新料 |
新賃料 1.5ヶ月 |
物件番号 |
1164068016 |
| 情報公開日 |
2025年11月5日 |
次回更新予定日 |
2025年11月19日 |
| ケータイ用バーコード |
- スマートフォンでこの物件を見る
- スマートフォンからもこの物件をご覧になれます。
|
※「-」と表示されている項目については、情報提供会社にご確認ください。
| 周辺施設 |
リブレ京成 LaLaテラス南千住店 |
| 距離 |
1644m |
写真を見る |
| 周辺施設 |
肉のハナマサ 千束店 |
| 距離 |
1331m |
写真を見る |
| 周辺施設 |
ローソン 浅草七丁目店 |
| 距離 |
1004m |
写真を見る |
| 周辺施設 |
ロイヤルホームセンター 南千住店 |
| 距離 |
1408m |
写真を見る |
| 周辺施設 |
浅草寺病院 |
| 距離 |
1719m |
写真を見る |
| 周辺施設 |
墨田区立第一寺島小学校 |
| 距離 |
1838m |
写真を見る |
ここから簡単にお問い合わせをすることができます。
(SSLでの暗号化での送信を希望されるお客さまは
こちら
よりお問い合わせください)
お問い合わせを行う前に
「個人情報の取り扱いについて」を必ずお読みください。
「個人情報の取り扱いについて」に同意いただいた場合は「上記にご同意の上 確認画面へ進む」のボタンをクリックしてください。
個人情報の取り扱いについて
皆さまが送付された個人情報はアットホーム(株)のサーバを経由し、お問い合わせ先の不動産会社にメールまたはFAXにて転送されるためアットホーム(株)にも保管されます。アットホーム(株)で保管された個人情報の取り扱いについては、【こちら】をご覧ください。
また、本画面でご記入いただいた個人情報は、お問い合わせ先の不動産会社でも保管します。 お問い合わせ先の不動産会社が保管する個人情報の取り扱いについては、不動産会社に直接お問い合わせください。
東京都知事免許(1)第107337号 |
|---|
- 交通:
- JR山手線/新橋駅 徒歩5分
- 東京都中央区銀座8丁目11-1 GINZA GS BLD.2 7階
- TEL:
- 03-6281-4770
- FAX:
- 03-6281-4771
- 所属団体:
- (公社)東京都宅地建物取引業協会会員(公社)首都圏不動産公正取引協議会加盟
取引態様:仲介  - 00271811
|
- スマートフォンで
この不動産会社を見る

|
- 提携サイト等より掲載されている物件情報につきましては、不動産会社詳細情報にリンクされていないものがあります。
- 物件に関するお問合せは、物件詳細ページの「情報提供会社」に表示されている不動産会社へ直接お願いいたします。
- 間取図は、現況を優先させていただきます。
- 映像は物件の一部を撮影したものです。物件の契約にあたっての最終判断はご自身の判断に基づいて行ってください。
- 仲介手数料について

アットホームは物件情報の適正化に努めております。
内容に誤りがある場合にはこちらへご連絡ください。