大阪府大阪市西区境川2丁目(九条駅)の賃貸:物件詳細
交通 所在地 |
駅徒歩 |
賃料 管理費等 |
敷金/保証金 礼金 |
間取り 面積 |
物件種目 築年月 |
|
地下鉄中央線/九条
大阪府大阪市西区境川2丁目
|
9分
|
6.81万円
6,940円
|
なし / なし
8万円
|
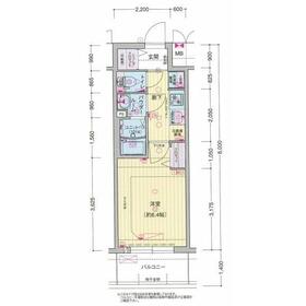
1K
22.40m²
|
賃貸マンション
2023年7月(築2年4ヶ月)
|
分譲タイプ、常時ゴミ出し可能、24時間換気システム
|
|
間取図
|
外観
|
<
その他の画像
>
|
| 交通 | 地下鉄中央線 九条駅 徒歩9分 |
|---|
| その他の交通 | 阪神なんば線 九条駅 徒歩9分 JR大阪環状線 弁天町駅 徒歩11分 |
| 所在地 |
大阪府大阪市西区境川2丁目
|
| 物件種目 |
賃貸マンション |
| 賃料 |
6.81万円 |
管理費等 |
6,940円 |
| 敷金 / 保証金 |
なし / なし |
礼金 |
8万円 |
| 敷引 |
- |
保証金償却 |
- |
| その他一時金 |
プレサポ24:990円、鍵交換代:29,700円 |
保険等 |
要 1年 11,000円 |
| 維持費等 |
- |
| 間取り |
1K(洋室6.4畳/K2畳) |
専有面積 |
22.40m² |
| 築年月 |
2023年7月(築2年4ヶ月)
|
階建 / 階 |
11階建 / 10階 |
| 建物構造 |
RC |
総戸数 |
- |
| 主要採光面 |
南東 |
駐車場 |
- |
| バイク置き場 |
有 |
駐輪場 |
有 |
| 建物名・部屋番号 |
プレサンスDOMECITYコレーレ 1005 |
ペット |
-
|
| アピールポイント |
現地、近隣にてお待ち合わせからのご内覧も対応いたします。
ご入居ご契約に関することなどお部屋探しのこと何なりとお気軽にご相談ください。
※仲介手数料・その他契約時費用がお安くできる場合もございますので、特定物件ご検討中のお客様も今一度ご相談下さい。
お部屋探しサイト等で気になるお部屋がございましてもお気軽にご相談ください! |
| リフォーム履歴 |
- |
| リノベーション履歴 |
- |
| 備考 |
賃貸保証等:加入要(初回保証料:50% 月額保証料:1.5%)
管理形態/管理員の勤務形態:-/-
|
| エネルギー消費性能 |
- |
| 断熱性能 |
- |
| 目安光熱費 |
- |
| バス・トイレ |
バス・トイレ別、浴室暖房、浴室乾燥機、シャワー付洗面化粧台、洗面所独立、洗面台、シャワー、温水洗浄便座 |
| キッチン |
カウンターキッチン、システムキッチン、2口コンロ、ガスコンロ付、グリル |
| セキュリティー |
モニター付オートロック、オートロック、モニター付インターホン、防犯カメラ |
| 収納 |
ウォークインクローゼット、収納スペース、シューズボックス |
| 設備・サービス |
室内洗濯機置場、洗濯機置場、給湯、フローリング、都市ガス、エアコン |
| TV・通信 |
インターネット使用料無料、CS、BS端子 |
| その他 |
宅配BOX、バイク置き場、駐輪場、エレベーター |
| 契約期間 |
1年 |
現況 |
空家 |
| 条件等 |
- |
入居可能時期 |
即時 |
| 更新料 |
- |
物件番号 |
1164177211 |
| 情報公開日 |
2025年10月16日 |
次回更新予定日 |
2025年10月30日 |
| ケータイ用バーコード |
- スマートフォンでこの物件を見る
- スマートフォンからもこの物件をご覧になれます。
|
※「-」と表示されている項目については、情報提供会社にご確認ください。
| 周辺施設 |
ジャパン 港波除店 |
| 距離 |
229m |
写真を見る |
| 周辺施設 |
グルメシティ九条店 |
| 距離 |
242m |
写真を見る |
| 周辺施設 |
セブンイレブン 大阪九条南3丁目店 |
| 距離 |
257m |
写真を見る |
| 周辺施設 |
スシロー 辰巳橋店 |
| 距離 |
34m |
写真を見る |
ここから簡単にお問い合わせをすることができます。
(SSLでの暗号化での送信を希望されるお客さまは
こちら
よりお問い合わせください)
お問い合わせを行う前に
「個人情報の取り扱いについて」を必ずお読みください。
「個人情報の取り扱いについて」に同意いただいた場合は「上記にご同意の上 確認画面へ進む」のボタンをクリックしてください。
個人情報の取り扱いについて
皆さまが送付された個人情報はアットホーム(株)のサーバを経由し、お問い合わせ先の不動産会社にメールまたはFAXにて転送されるためアットホーム(株)にも保管されます。アットホーム(株)で保管された個人情報の取り扱いについては、【こちら】をご覧ください。
また、本画面でご記入いただいた個人情報は、お問い合わせ先の不動産会社でも保管します。 お問い合わせ先の不動産会社が保管する個人情報の取り扱いについては、不動産会社に直接お問い合わせください。
大阪府知事免許(3)第57822号 |
|---|
- 交通:
- 地下鉄中央線/九条駅 徒歩1分
- 大阪府大阪市西区九条1丁目6番18号 フォレストゲート九条1F
- TEL:
- 06-6586-3636
- FAX:
- 06-6586-3639
- 所属団体:
- (公社)全日本不動産協会会員(公社)近畿地区不動産公正取引協議会加盟
取引態様:仲介  - 50026353
|
- スマートフォンで
この不動産会社を見る

|
- 提携サイト等より掲載されている物件情報につきましては、不動産会社詳細情報にリンクされていないものがあります。
- 物件に関するお問合せは、物件詳細ページの「情報提供会社」に表示されている不動産会社へ直接お願いいたします。
- 間取図は、現況を優先させていただきます。
- 映像は物件の一部を撮影したものです。物件の契約にあたっての最終判断はご自身の判断に基づいて行ってください。
- 仲介手数料について

アットホームは物件情報の適正化に努めております。
内容に誤りがある場合にはこちらへご連絡ください。