神奈川県横浜市南区高根町4丁目(阪東橋駅)の賃貸:物件詳細
交通 所在地 |
駅徒歩 |
賃料 管理費等 |
敷金/保証金 礼金 |
間取り 面積 |
物件種目 築年月 |
|
ブルーライン/阪東橋
神奈川県横浜市南区高根町4丁目
|
4分
|
9.2万円
3,500円
|
1ヶ月 / なし
なし
|
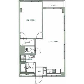
1LDK
50.19m²
|
賃貸マンション
1978年8月(築47年8ヶ月)
|
角部屋、最上階、二人入居可、事務所使用可、2面採光、IT重説対応物件、保証人不要
|
|
間取図
|
外観
|
<
その他の画像
>
|
| 交通 | ブルーライン 阪東橋駅 徒歩4分 |
|---|
| その他の交通 | 京急本線 黄金町駅 徒歩7分 JR京浜東北線 関内駅 徒歩20分 |
| 所在地 |
神奈川県横浜市南区高根町4丁目
|
| 物件種目 |
賃貸マンション |
| 賃料 |
9.2万円 |
管理費等 |
3,500円 |
| 敷金 / 保証金 |
1ヶ月 / なし |
礼金 |
なし |
| 敷引 |
1ヶ月 |
保証金償却 |
- |
| その他一時金 |
なし、鍵交換代等:22,000円~ |
保険等 |
要 2年 20,000円 |
| 維持費等 |
- |
クレジットカード決済 |
初期費用可 |
| 間取り |
1LDK(洋7.5、LDK14) |
専有面積 |
50.19m² |
| 築年月 |
1978年8月(築47年8ヶ月)
|
階建 / 階 |
4階建 / 4階 |
| 建物構造 |
RC |
総戸数 |
- |
| 主要採光面 |
|
駐車場 |
- |
| バイク置き場 |
- |
駐輪場 |
有 無料 |
| 建物名・部屋番号 |
第2福井ビル |
ペット |
-
|
| アピールポイント |
☆お部屋探しは桜関へ!☆ご入居に関してのお困り事、お任せ!
物件の詳細や諸条件(入居時期・保証人・初期費用・分割・入居審査・交渉事など)について、何でもご相談ください。桜関(045-334-7752)にお電話いただけるとスムーズです。LINEでもご対応可能です。 |
| リフォーム履歴 |
- |
| リノベーション履歴 |
- |
| 備考 |
賃貸保証等:加入要(エルズサポート エルズサポート(株) 初回契約時:月額賃料等合計のの50%、1年毎の費用:12,000円、事業用の場合初回契約時:賃料等(税込)合計額の80%・1年毎の費用20,000円)
管理形態/管理員の勤務形態:-/巡回
IT重説対応物件、管理人巡回
物件の詳細や諸条件(入居時期・保証人・初期費用・分割・入居審査・交渉事など)について、何でもご相談ください。桜関(045-334-7752)にお電話いただけるとスムーズです。LINEでもご対応可能です。1年未満の解約は家賃1ヶ月分の違約金あり。
化粧品やスタイリング剤などをまとめて出し入れして、サッと身支度を整えられる独立洗面台が付いております。収納はシューズボックス・クロゼットなど豊富なので、衣類や履き物の整理がしやすく便利です。1LDKは、多くのお客様からのニーズがある間取りです。徒歩4分の位置に駅がある物件です。綺麗なオフィスで仕事がしたい方にオススメの物件です。造りとデザインに関して、自信をもって情報を提供できるマンションです。管理会社による巡回点検があるので、防犯レベルも高いです。駐輪場が併設されている物件です。よくお出かけをする方にも便利な、2駅利用可能な物件です。
|
| エネルギー消費性能 |
- |
| 断熱性能 |
- |
| 目安光熱費 |
- |
| バス・トイレ |
バス・トイレ別、洗面所独立、洗面所、洗面台、シャワー、トイレ |
| キッチン |
2口コンロ、ガスコンロ可 |
| セキュリティー |
- |
| 収納 |
収納スペース、クローゼット、シューズボックス |
| 設備・サービス |
室内洗濯機置場、洗濯機置場、都市ガス給湯、給湯、都市ガス、エアコン |
| TV・通信 |
ケーブルTV |
| その他 |
バルコニー、駐輪場 |
| 契約期間 |
2年 |
現況 |
空家 |
| 条件等 |
定期借家 |
入居可能時期 |
即時 |
| 更新料 |
- |
物件番号 |
1164219022 |
| 情報公開日 |
2026年3月7日 |
次回更新予定日 |
2026年3月21日 |
| ケータイ用バーコード |
- スマートフォンでこの物件を見る
- スマートフォンからもこの物件をご覧になれます。
|
※「-」と表示されている項目については、情報提供会社にご確認ください。
| 周辺施設 |
マクドナルド 横浜南フジスーパー店 |
| 距離 |
1174m |
写真を見る |
| 周辺施設 |
すき家 阪東橋店 |
| 距離 |
202m |
写真を見る |
| 周辺施設 |
chocoZAP(チョコザップ) 横浜黄金町 |
| 距離 |
545m |
写真を見る |
| 周辺施設 |
まいばすけっと 阪東橋店 |
| 距離 |
208m |
写真を見る |
| 周辺施設 |
業務スーパー 黄金町店 |
| 距離 |
729m |
写真を見る |
| 周辺施設 |
まいばすけっと 吉野町5丁目店 |
| 距離 |
832m |
写真を見る |
ここから簡単にお問い合わせをすることができます。
(SSLでの暗号化での送信を希望されるお客さまは
こちら
よりお問い合わせください)
お問い合わせを行う前に
「個人情報の取り扱いについて」を必ずお読みください。
「個人情報の取り扱いについて」に同意いただいた場合は「上記にご同意の上 確認画面へ進む」のボタンをクリックしてください。
個人情報の取り扱いについて
皆さまが送付された個人情報はアットホーム(株)のサーバを経由し、お問い合わせ先の不動産会社にメールまたはFAXにて転送されるためアットホーム(株)にも保管されます。アットホーム(株)で保管された個人情報の取り扱いについては、【こちら】をご覧ください。
また、本画面でご記入いただいた個人情報は、お問い合わせ先の不動産会社でも保管します。 お問い合わせ先の不動産会社が保管する個人情報の取り扱いについては、不動産会社に直接お問い合わせください。
神奈川県知事免許(1)第32671号 |
|---|
- 交通:
- JR京浜東北線/桜木町駅 徒歩2分
- 神奈川県横浜市中区花咲町3丁目87番地 桜木町SSビル4階
- TEL:
- 045-334-7752
- FAX:
- 045-334-7754
- 所属団体:
- (公社)全日本不動産協会会員(公社)首都圏不動産公正取引協議会加盟
取引態様:仲介  - 00280910
|
- スマートフォンで
この不動産会社を見る

|
- 提携サイト等より掲載されている物件情報につきましては、不動産会社詳細情報にリンクされていないものがあります。
- 物件に関するお問合せは、物件詳細ページの「情報提供会社」に表示されている不動産会社へ直接お願いいたします。
- 間取図は、現況を優先させていただきます。
- 映像は物件の一部を撮影したものです。物件の契約にあたっての最終判断はご自身の判断に基づいて行ってください。
- 仲介手数料について

アットホームは物件情報の適正化に努めております。
内容に誤りがある場合にはこちらへご連絡ください。