福岡県福岡市南区井尻1丁目(井尻駅)の賃貸:物件詳細
交通 所在地 |
駅徒歩 |
賃料 管理費等 |
敷金/保証金 礼金 |
間取り 面積 |
物件種目 築年月 |
|
西鉄天神大牟田線/井尻
福岡県福岡市南区井尻1丁目
|
7分
|
8万円
3,000円
|
なし / なし
1ヶ月
|
1LDK
43.30m²
|
賃貸アパート
2026年5月
|
デザイナーズ、最上階、高齢者相談、二人入居可、24時間換気システム、閑静な住宅街、IT重説対応物件
|
|
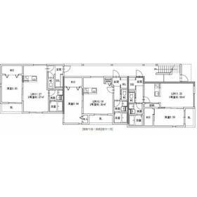
間取図
|
外観
|
<
その他の画像
>
|
| 交通 | 西鉄天神大牟田線 井尻駅 徒歩7分 |
|---|
| その他の交通 | JR鹿児島本線 笹原駅 徒歩13分 西鉄天神大牟田線 大橋駅 徒歩23分 |
| 所在地 |
福岡県福岡市南区井尻1丁目
|
| 物件種目 |
賃貸アパート |
| 賃料 |
8万円 |
管理費等 |
3,000円 |
| 敷金 / 保証金 |
なし / なし |
礼金 |
1ヶ月 |
| 敷引 |
- |
保証金償却 |
- |
| その他一時金 |
入居時消毒代:17,600円、ネット初期設定:5,500円、室内清掃費用:55,000円 |
保険等 |
要 2年 20,000円 |
| 維持費等 |
24時間サポート:880円/月、町費:300円/月 |
クレジットカード決済 |
初期費用可 |
| 間取り |
1LDK(LDK10.1、洋6.6) |
専有面積 |
43.30m² |
| 築年月 |
2026年5月
|
階建 / 階 |
3階建 / 3階 |
| 建物構造 |
木造 |
総戸数 |
- |
| 主要採光面 |
|
駐車場 |
有 13,200円/月 |
| バイク置き場 |
- |
駐輪場 |
有 |
| 建物名・部屋番号 |
|
ペット |
-
|
| リフォーム履歴 |
- |
| リノベーション履歴 |
- |
| 備考 |
賃貸保証等:利用可(ジェイリース 申込内容により異なります。)
管理形態/管理員の勤務形態:-/-
IT重説対応物件
初期費用分割可能♪初期費用の交渉もご相談下さい♪
初期費用を全額カードで分割可(初回金利手数料無料)現地案内、web内覧お気軽にご相談ください♪福岡市でのお部屋探しはワイズパートナーへ!当日予約・土日祝OK!気になる物件をまとめてご紹介できます♪
|
| エネルギー消費性能 |
- |
| 断熱性能 |
- |
| 目安光熱費 |
- |
| バス・トイレ |
バス・トイレ別、浴室乾燥機、追焚機能、高温差湯式、洗面所独立、洗面所、シャワー、温水洗浄便座、トイレ |
| キッチン |
カウンターキッチン、システムキッチン、ガスコンロ可 |
| セキュリティー |
モニター付オートロック、オートロック、モニター付インターホン |
| 収納 |
ウォークインクローゼット、収納スペース、クローゼット、シューズボックス |
| 設備・サービス |
室内洗濯機置場、洗濯機置場、給湯、出窓、エアコン、冷房、電話 |
| TV・通信 |
インターネット対応、インターネット使用料無料、光ファイバー、CATVインターネット、ケーブルTV、CS、BS端子、有線放送 |
| その他 |
バルコニー、駐輪場 |
| 契約期間 |
2年 |
現況 |
未完成 |
| 条件等 |
- |
入居可能時期 |
2026年5月上旬予定 |
| 更新料 |
- |
物件番号 |
1164280019 |
| 情報公開日 |
2026年3月9日 |
次回更新予定日 |
2026年4月6日 |
| ケータイ用バーコード |
- スマートフォンでこの物件を見る
- スマートフォンからもこの物件をご覧になれます。
|
※「-」と表示されている項目については、情報提供会社にご確認ください。
| 周辺施設 |
セブンイレブン 福岡宮竹小前店 |
| 距離 |
329m |
写真を見る |
| 周辺施設 |
ディスカウントドラッグ コスモス 井尻店 |
| 距離 |
185m |
写真を見る |
| 周辺施設 |
Maxvalu(マックスバリュ) 井尻駅前店 |
| 距離 |
605m |
写真を見る |
| 周辺施設 |
福岡井尻郵便局 |
| 距離 |
593m |
写真を見る |
| 周辺施設 |
西日本シティ銀行井尻支店 |
| 距離 |
619m |
写真を見る |
| 周辺施設 |
福岡銀行井尻支店 |
| 距離 |
653m |
写真を見る |
| 周辺施設 |
chocoZAP井尻 |
| 距離 |
793m |
写真を見る |
| 周辺施設 |
マクドナルド 桜ヶ丘店 |
| 距離 |
1294m |
写真を見る |
ここから簡単にお問い合わせをすることができます。
(SSLでの暗号化での送信を希望されるお客さまは
こちら
よりお問い合わせください)
お問い合わせを行う前に
「個人情報の取り扱いについて」を必ずお読みください。
「個人情報の取り扱いについて」に同意いただいた場合は「上記にご同意の上 確認画面へ進む」のボタンをクリックしてください。
個人情報の取り扱いについて
皆さまが送付された個人情報はアットホーム(株)のサーバを経由し、お問い合わせ先の不動産会社にメールまたはFAXにて転送されるためアットホーム(株)にも保管されます。アットホーム(株)で保管された個人情報の取り扱いについては、【こちら】をご覧ください。
また、本画面でご記入いただいた個人情報は、お問い合わせ先の不動産会社でも保管します。 お問い合わせ先の不動産会社が保管する個人情報の取り扱いについては、不動産会社に直接お問い合わせください。
福岡県知事免許(3)第18050号 |
|---|
- 交通:
- 西鉄天神大牟田線/高宮駅 徒歩3分
- 福岡県福岡市南区高宮3丁目2-22 RENACE高宮
- TEL:
- 092-534-4577
- FAX:
- 092-534-4578
- 所属団体:
- (公社)福岡県宅地建物取引業協会会員(一社)九州不動産公正取引協議会加盟
取引態様:仲介  - 80506419
|
- スマートフォンで
この不動産会社を見る

|
- 提携サイト等より掲載されている物件情報につきましては、不動産会社詳細情報にリンクされていないものがあります。
- 物件に関するお問合せは、物件詳細ページの「情報提供会社」に表示されている不動産会社へ直接お願いいたします。
- 間取図は、現況を優先させていただきます。
- 映像は物件の一部を撮影したものです。物件の契約にあたっての最終判断はご自身の判断に基づいて行ってください。
- 仲介手数料について

アットホームは物件情報の適正化に努めております。
内容に誤りがある場合にはこちらへご連絡ください。