東京都大田区大森西4丁目(大森町駅)の賃貸:物件詳細
交通 所在地 |
駅徒歩 |
賃料 管理費等 |
敷金/保証金 礼金 |
間取り 面積 |
物件種目 築年月 |
|
京急本線/大森町
東京都大田区大森西4丁目
|
11分
|
24.4万円
20,000円
|
1ヶ月 / なし
なし
|
3LDK
55.20m²
|
賃貸マンション
2025年8月
|
ペット相談、デザイナーズ、常時ゴミ出し可能、駐車場2台分、角部屋、二人入居可、2面採光、外観タイル張り、保証人不要
|
|
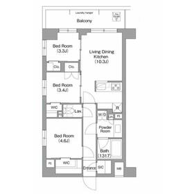
間取図
北西角部屋の3LDK
|
外観
2025年8月築 RC鉄筋コンクリート造地上8階建て1LDK~3LDK総戸数98戸 東京都大田区大森西4丁目 京浜急行本
|
<
その他の画像
>
|
| 交通 | 京急本線 大森町駅 徒歩11分 |
|---|
| その他の交通 | 京急本線 梅屋敷駅 徒歩15分 京急本線 平和島駅 徒歩19分 |
| 所在地 |
東京都大田区大森西4丁目
|
| 物件種目 |
賃貸マンション |
| 賃料 |
24.4万円 |
管理費等 |
20,000円 |
| 敷金 / 保証金 |
1ヶ月 / なし |
礼金 |
なし |
| 敷引 |
- |
保証金償却 |
- |
| その他一時金 |
なし |
保険等 |
要 2年 16,550円 |
| 維持費等 |
- |
クレジットカード決済 |
初期費用可 |
| 間取り |
3LDK(LDK10.3、洋4.6、洋3.4、洋3.3) |
専有面積 |
55.20m² |
| 築年月 |
2025年8月
|
階建 / 階 |
8階建 / 2階 |
| 建物構造 |
RC |
総戸数 |
- |
| 主要採光面 |
北 |
駐車場 |
有 27,500円/月 |
| バイク置き場 |
有 5,500円/月 |
駐輪場 |
有 |
| 建物名・部屋番号 |
コンフォリア・リヴ大森西 |
ペット |
相談 |
| リフォーム履歴 |
- |
| リノベーション履歴 |
- |
| 備考 |
賃貸保証等:加入要(初回総賃料の50% 月額総賃料の1%)
管理形態/管理員の勤務形態:-/巡回
管理人巡回
新築ショッピング施設マチノマ目の前!インターネット無料◆HPに写真50枚動画360度パノラマ画像類似物件等多数掲載中◆マチノマには、スーパーライフをはじめフードコートには多数の飲食店や自転車やドラッグストア、電気屋さん、クリニック等目の前にあると便利なお店が多数入っております。過半数のスタッフが大田区在住!地元地域密着の蒲田大森不動産へお任せ下さい。住んで、選んで良かったと言って頂けるお部屋探し!
お問い合わせは直接当店に!・保証人不要でご契約!お気軽にご相談下さい。~高級賃貸まで!転勤や社宅、初めての一人暮らし、1LDK、2LDK、二人暮らし、ご結婚、同棲、ご家族ファミリータイプのお引越し、ルームシェアやデザイナーズ!セカンドハウス!治安や周辺環境はもちろん賃貸に関する事お任せ下さい。大田区蒲田周辺に強い会社です。賃貸お部屋探しは地元密着の蒲田大森不動産へ!
人気賃貸おすすめ物件等スタッフが住んでいるからこそ分かる部分までご説明させて頂きます。地元の人から評判や評価の高いお店飲食店etc
品川区大田区京浜東北線、大森駅、蒲田駅、京浜急行本線の立会川駅、大森海岸駅、平和島駅、大森
|
| エネルギー消費性能 |
- |
| 断熱性能 |
- |
| 目安光熱費 |
- |
| バス・トイレ |
バス・トイレ別、浴室乾燥機、追焚機能、洗面所独立、洗面所、シャワー、温水洗浄便座、トイレ |
| キッチン |
カウンターキッチン、システムキッチン、食器洗浄乾燥機、3口以上コンロ、ガスコンロ可、グリル |
| セキュリティー |
モニター付オートロック、オートロック、モニター付インターホン、ダブルロックドア、防犯カメラ |
| 収納 |
全居室収納、ウォークインクローゼット、収納スペース、トランクルーム、シューズインクローゼット、クローゼット、シューズボックス |
| 設備・サービス |
エアコン2台以上、床暖房、室内洗濯機置場、洗濯機置場、都市ガス給湯、給湯、全居室フローリング、フローリング、都市ガス、エアコン、暖房 |
| TV・通信 |
インターネット対応、インターネット使用料無料、光ファイバー、CS、BS端子 |
| その他 |
宅配BOX、バイク置き場、エレベーター2基以上、バルコニー、駐輪場、エレベーター |
| 契約期間 |
2年 |
現況 |
空家 |
| 条件等 |
- |
入居可能時期 |
即時 |
| 更新料 |
新賃料 1ヶ月 |
物件番号 |
1164326516 |
| 情報公開日 |
2025年11月6日 |
次回更新予定日 |
2025年11月20日 |
| ケータイ用バーコード |
- スマートフォンでこの物件を見る
- スマートフォンからもこの物件をご覧になれます。
|
※「-」と表示されている項目については、情報提供会社にご確認ください。
| 周辺施設 |
まいばすけっと 大森西4丁目店 |
| 距離 |
64m |
写真を見る |
| 周辺施設 |
ローソンストア100 大森西店 |
| 距離 |
138m |
写真を見る |
| 周辺施設 |
ローソン 大森西四丁目店 |
| 距離 |
280m |
写真を見る |
| 周辺施設 |
大森西第二保育園 |
| 距離 |
419m |
写真を見る |
| 周辺施設 |
東邦大学 大森キャンパス(医学部・看護学部) |
| 距離 |
367m |
写真を見る |
| 周辺施設 |
邦西第二児童公園 |
| 距離 |
468m |
写真を見る |
| 周辺施設 |
全日食チェーンスーパーイコール |
| 距離 |
543m |
写真を見る |
| 周辺施設 |
大森警察署大森西交番 |
| 距離 |
454m |
写真を見る |
ここから簡単にお問い合わせをすることができます。
(SSLでの暗号化での送信を希望されるお客さまは
こちら
よりお問い合わせください)
お問い合わせを行う前に
「個人情報の取り扱いについて」を必ずお読みください。
「個人情報の取り扱いについて」に同意いただいた場合は「上記にご同意の上 確認画面へ進む」のボタンをクリックしてください。
個人情報の取り扱いについて
皆さまが送付された個人情報はアットホーム(株)のサーバを経由し、お問い合わせ先の不動産会社にメールまたはFAXにて転送されるためアットホーム(株)にも保管されます。アットホーム(株)で保管された個人情報の取り扱いについては、【こちら】をご覧ください。
また、本画面でご記入いただいた個人情報は、お問い合わせ先の不動産会社でも保管します。 お問い合わせ先の不動産会社が保管する個人情報の取り扱いについては、不動産会社に直接お問い合わせください。
東京都知事免許(2)第100926号 |
|---|
- 交通:
- JR京浜東北線/蒲田駅 徒歩1分
- 東京都大田区蒲田5丁目16-8 鵠沼ビル 3階
- TEL:
- 03-6404-9221
- FAX:
- 03-6404-9231
- 所属団体:
- (公社)東京都宅地建物取引業協会会員(公社)首都圏不動産公正取引協議会加盟
取引態様:仲介  - 00263036
|
- スマートフォンで
この不動産会社を見る

|
- 提携サイト等より掲載されている物件情報につきましては、不動産会社詳細情報にリンクされていないものがあります。
- 物件に関するお問合せは、物件詳細ページの「情報提供会社」に表示されている不動産会社へ直接お願いいたします。
- 間取図は、現況を優先させていただきます。
- 映像は物件の一部を撮影したものです。物件の契約にあたっての最終判断はご自身の判断に基づいて行ってください。
- 仲介手数料について

アットホームは物件情報の適正化に努めております。
内容に誤りがある場合にはこちらへご連絡ください。