不動産 賃貸 マンション等の住宅情報:埼玉住まい情報


東京都江東区豊洲1丁目(豊洲駅)の賃貸:物件詳細

  • 物件詳細
  • 情報の見方
  • 印刷用画面
交通
所在地
駅徒歩 賃料
管理費等
敷金/保証金
礼金
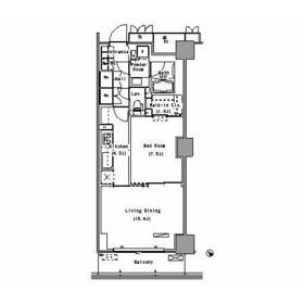
間取り
面積
物件種目
築年月

東京メトロ有楽町線/豊洲 新着

東京都江東区豊洲1丁目

8分

25.5万円

6,000円

1ヶ月 / なし

1ヶ月

1LDK

53.13m²

賃貸マンション

2008年3月(築18年1ヶ月)

おすすめPOINTペット相談、楽器相談、常時ゴミ出し可能

おすすめコメント  スタッフ: 伊倉 博之

共用部には宅配ボックス・ゴミ出し24時間OKなどが揃っております。安心のオートロック設備は、女性にも人気です。室内設備は浴室乾燥機・洗面化粧台などが揃っており、とても充実しています。

間取図

間取図

外観

外観

外観もきれいです

<
その他の画像
  • リビング
  • キッチン
  • バス/シャワー
  • 室内
  • 室内
  • 室内
  • リビング
  • 外観
  • 外観
  • 外観
  • その他
  • その他
  • その他
  • 地形図等
  • その他
  • その他
  • 販売店
  • コンビニ
  • コンビニ
  • コンビニ
  • 販売店
  • 販売店
  • 販売店
>
    • とりあえず保存
    • お問い合わせ
    交通

    東京メトロ有楽町線 豊洲駅 徒歩8分

    その他の交通

    東京メトロ有楽町線 月島駅 徒歩16分

    新交通ゆりかもめ 豊洲駅 徒歩11分

    所在地 東京都江東区豊洲1丁目
    物件種目 賃貸マンション
    賃料 25.5万円 管理費等 6,000円
    敷金 / 保証金 1ヶ月 / なし 礼金 1ヶ月
    敷引 保証金償却
    その他一時金 なし、鍵交換代等:16,500円~ 保険等 不要
    維持費等
    間取り 1LDK 専有面積 53.13m²
    築年月 2008年3月(築18年1ヶ月) 階建 / 階 地上20階地下1階建 / 3階
    建物構造 RC 総戸数
    主要採光面 南西 駐車場
    バイク置き場 駐輪場
    建物名・部屋番号 パークアクシス豊洲 301 ペット 相談
    アピールポイント 室内設備は浴室乾燥機・洗面化粧台など大変充実しております。共用部には宅配ボックス・ゴミ出し24時間OKなどが備わっておりとても充実しています。オートロック機能が付いているのでドアの前まで知らない人が入りずらくなり防犯対策につながります。システムキッチンは収納性に優れているため、キッチン回りを綺麗に保ちやすくなります。表面が平らなIHをお使いいただけるので、油汚れをスッとお掃除できるのが魅力的です。現在空家です。内見等お気軽にお問い合わせください。BS対応なので、チューナーのご用意とご契約のみで視聴可能です。こちらは家賃25.5万円の物件です。忙しい日でもゴミ出しをサクッと終えられるように、敷地内にゴミ置き場を備えております。物件の件に関しては入居日指定も確認ください、この物件は2026年3月です。
    リフォーム履歴
    リノベーション履歴
    備考
    賃貸保証等:加入要(初回保証委託料(最低20,000円):月額賃料等の50%、 2年目以降:9,600円\\/年)
    管理形態/管理員の勤務形態:-/-
    共用部には宅配ボックス・ゴミ出し24時間OKなどが揃っております。室内設備は洗面化粧台・浴室乾燥機など豊富に揃っており、過ごしやすいお部屋になっております。エントランスのオートロックと玄関の鍵で二重にロックできるので防犯対策もばっちりです。楽器の演奏がしたい方、当社にご相談いただければ、物件紹介いたします。加入後すぐにCATVを視聴できるCATV受信環境が整っています。周辺に2駅ありの電車通勤しやすいマンションです。2026年3月の入居期日指定です。ご注意ください。ダニなども気にならないフローリングの快適なマンションです。駐車場に空きがあるので車を所有している方も安心です。バルコニー付きの物件です。
    エネルギー消費性能
    断熱性能
    目安光熱費
    バス・トイレ バス・トイレ別、浴室乾燥機、洗面台、トイレ
    キッチン システムキッチン、IHクッキングヒーター
    セキュリティー オートロック
    収納
    設備・サービス 室内洗濯機置場、洗濯機置場、フローリング、エアコン
    TV・通信 インターネット対応、ケーブルTV、CS、BS端子
    その他 宅配BOX、バイク置き場、コインランドリー、バルコニー、エレベーター
    契約期間 2年 現況 空家
    条件等 入居可能時期 2026年3月下旬予定
    更新料 新賃料 1ヶ月 物件番号 1164630022
    情報公開日 2026年3月12日 次回更新予定日 2026年3月28日
    ケータイ用バーコード

    QRコード

    スマートフォンでこの物件を見る
    スマートフォンからもこの物件をご覧になれます。
    ※「-」と表示されている項目については、情報提供会社にご確認ください。

    この物件の周辺情報

    周辺施設 まいばすけっと 豊洲1丁目店
    距離 1m
    周辺施設 ローソン 豊洲一丁目店
    距離 128m
    周辺施設 セブンイレブン 豊洲1丁目店
    距離 237m
    周辺施設 セブンイレブン 豊洲3丁目店
    距離 303m
    周辺施設 くすりの福太郎 豊洲1丁目店
    距離 135m
    周辺施設 タカラ薬局 豊洲
    距離 199m
    周辺施設 ナチュラルローソンクオール薬局 豊洲三丁目店
    距離 512m

    クイックお問い合わせ

    ここから簡単にお問い合わせをすることができます。
    (SSLでの暗号化での送信を希望されるお客さまは こちら よりお問い合わせください)

    お問い合わせ内容(必須)
    お名前(必須) 姓  名 
    メールアドレス(必須)
    ※携帯電話のメールアドレスをご入力される方はこちらをご確認ください
    電話番号(必須)
    - -

    ※入力いただいた電話番号へSMSまたは音声でパスワードをご連絡します。

    携帯電話の番号をご入力の方へ

    携帯電話の番号をご入力の方へ
    確認画面にて送信ボタンをクリックするとSMSが携帯電話に届きます。
    そのSMSに記載のパスワード(認証番号)を入力し、お問い合わせを完了してください。
    尚、SMSの送信者番号は 0005 202 760 となります。
    これはアットホームの固定番号です。

    備考欄 希望条件、物件案内希望日、質問などがございましたらご記入ください。
    お問い合わせを行う前に「個人情報の取り扱いについて」を必ずお読みください。
    「個人情報の取り扱いについて」に同意いただいた場合は「上記にご同意の上 確認画面へ進む」のボタンをクリックしてください。

    個人情報の取り扱いについて

    皆さまが送付された個人情報はアットホーム(株)のサーバを経由し、お問い合わせ先の不動産会社にメールまたはFAXにて転送されるためアットホーム(株)にも保管されます。アットホーム(株)で保管された個人情報の取り扱いについては、【こちら】をご覧ください。
    また、本画面でご記入いただいた個人情報は、お問い合わせ先の不動産会社でも保管します。 お問い合わせ先の不動産会社が保管する個人情報の取り扱いについては、不動産会社に直接お問い合わせください。

    情報提供会社

    情報提供会社

    (株)チアエステート

    東京都知事免許(1)第106849号

    交通:
    都営新宿線/岩本町駅 徒歩1分
    東京都千代田区神田須田町2丁目6-20 マリアナ神田須田町3階
    TEL:
    03-5296-9335
    所属団体:
    (公社)東京都宅地建物取引業協会会員
    (公社)首都圏不動産公正取引協議会加盟

    取引態様:仲介

    • 会社情報
    • 00271035
    スマートフォンで
    この不動産会社を見る
    QRコード
    • とりあえず保存
    • お問い合わせ
    • 提携サイト等より掲載されている物件情報につきましては、不動産会社詳細情報にリンクされていないものがあります。
    • 物件に関するお問合せは、物件詳細ページの「情報提供会社」に表示されている不動産会社へ直接お願いいたします。
    • 間取図は、現況を優先させていただきます。
    • 映像は物件の一部を撮影したものです。物件の契約にあたっての最終判断はご自身の判断に基づいて行ってください。
    • 仲介手数料について仲介手数料

    アットホームは物件情報の適正化に努めております。 内容に誤りがある場合にはこちらへご連絡ください。

    【埼玉住まい情報】では、日本全国の物件から賃貸マンションや賃貸アパート・賃貸一戸建て等の賃貸住宅情報、新築マンション・分譲マンションや中古マンション等の売買マンション情報、新築一戸建てや中古一戸建てなどの戸建住宅、 土地など、総合的な不動産住宅情報検索サービスを提供致します。
    【埼玉住まい情報】から、選りすぐりの不動産物件を探してみましょう。

    【免責事項】
    このコーナーの運営はアットホーム株式会社(https://www.athome.co.jp/)が行っています。
    このコーナーに掲載している物件情報は、「アットホーム不動産情報ネットワーク」に加盟する不動産会社等(情報提供元)から提供されています。信頼性の高い情報提供が行えるよう、最大限の努力をしておりますが、その内容を保証するものではありません。 利用者のみなさまと各情報提供元との取引に起因する損害および情報が掲載されたことに起因する損害等については、株式会社イーシティ埼玉、およびアットホームは一切責任を負いません。
    各物件情報の内容や画像等はすべて現況を優先させていただきます。
    お取引等(お取引の準備、資金調達等を含みます)の際には、内容や契約条件等について、各情報提供元より十分な説明を受け、ご自身でご確認の上、判断してください。
    このコーナーへの物件情報のご掲載、その他不動産業務ソリューション等についての不動産会社様のお問合せはこちらからお願いいたします。

    物件画像: