東京都板橋区上板橋3丁目(上板橋駅)の賃貸:物件詳細
交通 所在地 |
駅徒歩 |
賃料 管理費等 |
敷金/保証金 礼金 |
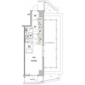
間取り 面積 |
物件種目 築年月 |
|
東武東上線/上板橋
東京都板橋区上板橋3丁目
|
6分
|
11.8万円
10,000円
|
なし / なし
1ヶ月
|
1K
25.82m²
|
賃貸マンション
2025年11月
|
フリーレント、分譲タイプ、最上階、IT重説対応物件、保証人不要
|
|
間取図
|
外観
|
<
その他の画像
>
|
| 交通 | 東武東上線 上板橋駅 徒歩6分 |
|---|
| その他の交通 | 東武東上線 東武練馬駅 徒歩14分 東武東上線 ときわ台駅 徒歩22分 |
| 所在地 |
東京都板橋区上板橋3丁目
|
| 物件種目 |
賃貸マンション |
| 賃料 |
11.8万円 |
管理費等 |
10,000円 |
| 敷金 / 保証金 |
なし / なし |
礼金 |
1ヶ月 |
| 敷引 |
- |
保証金償却 |
- |
| その他一時金 |
なし |
保険等 |
要 |
| 維持費等 |
- |
クレジットカード決済 |
初期費用可 |
| 間取り |
1K(洋室8.0帖) |
専有面積 |
25.82m² |
| 築年月 |
2025年11月
|
階建 / 階 |
7階建 / 7階 |
| 建物構造 |
RC |
総戸数 |
20戸 |
| 主要採光面 |
東 |
駐車場 |
- |
| バイク置き場 |
- |
駐輪場 |
- |
| 建物名・部屋番号 |
ECREDE上板橋 |
ペット |
-
|
| アピールポイント |
ハウスパートナー池袋駅西口店では池袋駅沿線を中心に豊島区・板橋区・練馬区・文京区エリアの物件をご紹介させていただきます。新築・駅近・ペット相談・分譲賃貸・貸家等お部屋探しのお悩み事があればお気軽にご相談くださいませ。お問い合わせ・ご来店をスタッフ一同心よりお待ち申し上げます。 |
| リフォーム履歴 |
- |
| リノベーション履歴 |
- |
| 備考 |
賃貸保証等:加入要(初回:総賃料等の50% 月額:総賃料等の1%)
管理形態/管理員の勤務形態:-/-
フリーレント:1ヶ月(該当1ヶ月)
IT重説対応物件
保険料:月額1000円 24時間サポート:月額1100円 6ヶ月未満の解約は総賃料の2ヶ月分、1年未満の解約は総賃料の2ヶ月分の違約金あり 更新時事務手数料:11000円
|
| エネルギー消費性能 |
- |
| 断熱性能 |
- |
| 目安光熱費 |
- |
| バス・トイレ |
バス・トイレ別、浴室乾燥機、洗面所独立、温水洗浄便座 |
| キッチン |
システムキッチン、2口コンロ、ガスコンロ付、ガスコンロ可 |
| セキュリティー |
モニター付オートロック、オートロック、モニター付インターホン、ディンプルキー、防犯カメラ |
| 収納 |
収納スペース、クローゼット、シューズボックス |
| 設備・サービス |
室内洗濯機置場、フローリング、都市ガス、エアコン |
| TV・通信 |
インターネット対応、インターネット使用料無料、光ファイバー、CS、BS端子 |
| その他 |
宅配BOX、ルーフバルコニー、バルコニー、エレベーター |
| 契約期間 |
2年 |
現況 |
空家 |
| 条件等 |
- |
入居可能時期 |
即時 |
| 更新料 |
新賃料 1ヶ月 |
物件番号 |
1164754015 |
| 情報公開日 |
2025年11月8日 |
次回更新予定日 |
2026年1月4日 |
| ケータイ用バーコード |
- スマートフォンでこの物件を見る
- スマートフォンからもこの物件をご覧になれます。
|
※「-」と表示されている項目については、情報提供会社にご確認ください。
| 周辺施設 |
まいばすけっと上板橋駅西 |
| 距離 |
110m |
写真を見る |
| 周辺施設 |
ファミリーマート上板橋3丁目 |
| 距離 |
170m |
写真を見る |
| 周辺施設 |
イトーヨーカドー上板橋店 |
| 距離 |
550m |
写真を見る |
| 周辺施設 |
マツモトキヨシ上板橋北口店 |
| 距離 |
450m |
写真を見る |
| 周辺施設 |
桜川3丁目駐在所 |
| 距離 |
950m |
写真を見る |
| 周辺施設 |
医療法人社団慈誠会慈誠会若木原病院 |
| 距離 |
320m |
写真を見る |
ここから簡単にお問い合わせをすることができます。
(SSLでの暗号化での送信を希望されるお客さまは
こちら
よりお問い合わせください)
お問い合わせを行う前に
「個人情報の取り扱いについて」を必ずお読みください。
「個人情報の取り扱いについて」に同意いただいた場合は「上記にご同意の上 確認画面へ進む」のボタンをクリックしてください。
個人情報の取り扱いについて
皆さまが送付された個人情報はアットホーム(株)のサーバを経由し、お問い合わせ先の不動産会社にメールまたはFAXにて転送されるためアットホーム(株)にも保管されます。アットホーム(株)で保管された個人情報の取り扱いについては、【こちら】をご覧ください。
また、本画面でご記入いただいた個人情報は、お問い合わせ先の不動産会社でも保管します。 お問い合わせ先の不動産会社が保管する個人情報の取り扱いについては、不動産会社に直接お問い合わせください。
国土交通大臣免許(2)第9556号 |
|---|
- 交通:
- JR山手線/池袋駅 徒歩1分
- 東京都豊島区西池袋1丁目14-4 キンズメンビル3階
- TEL:
- 03-5985-0002
- FAX:
- 03-5985-0003
- 所属団体:
- (公社)全日本不動産協会会員(公社)首都圏不動産公正取引協議会加盟
取引態様:仲介  - 00275929
|
- スマートフォンで
この不動産会社を見る

|
- 提携サイト等より掲載されている物件情報につきましては、不動産会社詳細情報にリンクされていないものがあります。
- 物件に関するお問合せは、物件詳細ページの「情報提供会社」に表示されている不動産会社へ直接お願いいたします。
- 間取図は、現況を優先させていただきます。
- 映像は物件の一部を撮影したものです。物件の契約にあたっての最終判断はご自身の判断に基づいて行ってください。
- 仲介手数料について

アットホームは物件情報の適正化に努めております。
内容に誤りがある場合にはこちらへご連絡ください。