東京都品川区西大井2丁目(西大井駅)の賃貸:物件詳細
交通 所在地 |
駅徒歩 |
賃料 管理費等 |
敷金/保証金 礼金 |
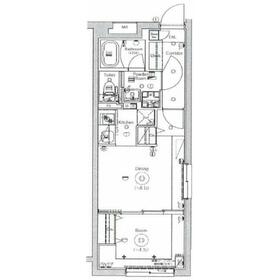
間取り 面積 |
物件種目 築年月 |
|
JR横須賀線/西大井
東京都品川区西大井2丁目
|
6分
|
14.3万円
12,000円
|
なし / なし
1ヶ月
|
1DK
31.96m²
|
賃貸マンション
2024年2月(築1年9ヶ月)
|
ペット相談、角部屋、2面採光、保証人不要
|
|
間取図
|
外観
|
<
その他の画像
>
|
| 交通 | JR横須賀線 西大井駅 徒歩6分 |
|---|
| その他の交通 | JR京浜東北線 大井町駅 徒歩20分 東急大井町線 下神明駅 徒歩17分 |
| 所在地 |
東京都品川区西大井2丁目
|
| 物件種目 |
賃貸マンション |
| 賃料 |
14.3万円 |
管理費等 |
12,000円 |
| 敷金 / 保証金 |
なし / なし |
礼金 |
1ヶ月 |
| 敷引 |
- |
保証金償却 |
- |
| その他一時金 |
鍵交換費用:33,000円、SYLAプレミアムクラブ:24,200円 |
保険等 |
要 2年 20,000円 |
| 維持費等 |
- |
| 間取り |
1DK(洋室4.3畳/DK8.1畳) |
専有面積 |
31.96m² |
| 築年月 |
2024年2月(築1年9ヶ月)
|
階建 / 階 |
4階建 / 3階 |
| 建物構造 |
RC |
総戸数 |
- |
| 主要採光面 |
北 |
駐車場 |
- |
| バイク置き場 |
- |
駐輪場 |
- |
| 建物名・部屋番号 |
SYNEX NISHI-OI 305 |
ペット |
相談 |
| アピールポイント |
オートロック・宅配BOX・浴室乾燥機能・シャンプードレッサー・ウォシュレットなど欲しい設備が揃っています。小型犬または猫飼育相談可能(敷金1ヶ月増) |
| リフォーム履歴 |
- |
| リノベーション履歴 |
- |
| 備考 |
賃貸保証等:加入要(初回保証料:賃料等の50% 月額保証料:700円 口座引き落とし手数料:330円)
管理形態/管理員の勤務形態:-/-
|
| エネルギー消費性能 |
- |
| 断熱性能 |
- |
| 目安光熱費 |
- |
| バス・トイレ |
バス・トイレ別、浴室暖房、浴室乾燥機、シャワー付洗面化粧台、洗面所独立、洗面台、シャワー、温水洗浄便座 |
| キッチン |
システムキッチン、2口コンロ、ガスコンロ付 |
| セキュリティー |
モニター付オートロック、オートロック、モニター付インターホン、防犯カメラ |
| 収納 |
収納スペース、クローゼット、シューズボックス |
| 設備・サービス |
室内洗濯機置場、洗濯機置場、給湯、フローリング、都市ガス、エアコン |
| TV・通信 |
インターネット使用料無料 |
| その他 |
宅配BOX |
| 契約期間 |
2年 |
現況 |
空家 |
| 条件等 |
- |
入居可能時期 |
相談 |
| 仲介手数料 |
1.1ヶ月 |
|
|
| 更新料 |
新賃料 1ヶ月 |
物件番号 |
1165151311 |
| 情報公開日 |
2025年8月15日 |
次回更新予定日 |
2025年10月30日 |
| ケータイ用バーコード |
- スマートフォンでこの物件を見る
- スマートフォンからもこの物件をご覧になれます。
|
※「-」と表示されている項目については、情報提供会社にご確認ください。
| 周辺施設 |
セブンイレブン西大井滝王子通 |
| 距離 |
159m |
写真を見る |
| 周辺施設 |
まいばすけっと 西大井1丁目店 |
| 距離 |
206m |
写真を見る |
| 周辺施設 |
文化堂西大井店 |
| 距離 |
333m |
写真を見る |
| 周辺施設 |
マクドナルド 西大井駅前店 |
| 距離 |
441m |
写真を見る |
| 周辺施設 |
マルエツ プチ 西大井駅前店 |
| 距離 |
477m |
写真を見る |
| 周辺施設 |
ツルハドラッグ 大井町店 |
| 距離 |
486m |
写真を見る |
ここから簡単にお問い合わせをすることができます。
(SSLでの暗号化での送信を希望されるお客さまは
こちら
よりお問い合わせください)
お問い合わせを行う前に
「個人情報の取り扱いについて」を必ずお読みください。
「個人情報の取り扱いについて」に同意いただいた場合は「上記にご同意の上 確認画面へ進む」のボタンをクリックしてください。
個人情報の取り扱いについて
皆さまが送付された個人情報はアットホーム(株)のサーバを経由し、お問い合わせ先の不動産会社にメールまたはFAXにて転送されるためアットホーム(株)にも保管されます。アットホーム(株)で保管された個人情報の取り扱いについては、【こちら】をご覧ください。
また、本画面でご記入いただいた個人情報は、お問い合わせ先の不動産会社でも保管します。 お問い合わせ先の不動産会社が保管する個人情報の取り扱いについては、不動産会社に直接お問い合わせください。
東京都知事免許(6)第78530号 |
|---|
- 交通:
- JR京浜東北線/大井町駅
- 東京都品川区東大井5丁目17-6-2階
- TEL:
- 03-5781-2621
- FAX:
- 03-5781-2622
- 所属団体:
- (公社)東京都宅地建物取引業協会会員(公社)首都圏不動産公正取引協議会加盟
取引態様:仲介  - 00269556
|
- スマートフォンで
この不動産会社を見る

|
- 提携サイト等より掲載されている物件情報につきましては、不動産会社詳細情報にリンクされていないものがあります。
- 物件に関するお問合せは、物件詳細ページの「情報提供会社」に表示されている不動産会社へ直接お願いいたします。
- 間取図は、現況を優先させていただきます。
- 映像は物件の一部を撮影したものです。物件の契約にあたっての最終判断はご自身の判断に基づいて行ってください。
- 仲介手数料について

アットホームは物件情報の適正化に努めております。
内容に誤りがある場合にはこちらへご連絡ください。