大阪府大阪市淀川区木川東4丁目(西中島南方駅)の賃貸:物件詳細
交通 所在地 |
駅徒歩 |
賃料 管理費等 |
敷金/保証金 礼金 |
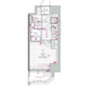
間取り 面積 |
物件種目 築年月 |
|
地下鉄御堂筋線/西中島南方
大阪府大阪市淀川区木川東4丁目
|
11分
|
7.6万円
8,000円
|
なし / なし
1ヶ月
|
1K
22.65m²
|
賃貸マンション
2024年3月(築1年10ヶ月)
|
南向き
|
|
間取図
間取図
|
外観
外観
|
その他の画像
|
| 交通 | 地下鉄御堂筋線 西中島南方駅 徒歩11分 |
|---|
| その他の交通 | 地下鉄御堂筋線 新大阪駅 徒歩17分 阪急宝塚線 三国駅 徒歩23分 |
| 所在地 |
大阪府大阪市淀川区木川東4丁目
|
| 物件種目 |
賃貸マンション |
| 賃料 |
7.6万円 |
管理費等 |
8,000円 |
| 敷金 / 保証金 |
なし / なし |
礼金 |
1ヶ月 |
| 敷引 |
- |
保証金償却 |
- |
| その他一時金 |
室内清掃費用:33,000円、鍵交換代等:33,000円~ |
保険等 |
要 |
| 維持費等 |
- |
| 間取り |
1K |
専有面積 |
22.65m² |
| 築年月 |
2024年3月(築1年10ヶ月)
|
階建 / 階 |
11階建 / 9階 |
| 建物構造 |
RC |
総戸数 |
- |
| 主要採光面 |
南 |
駐車場 |
- |
| バイク置き場 |
無 |
駐輪場 |
無 |
| 建物名・部屋番号 |
Mv.imp新大阪 |
ペット |
-
|
| アピールポイント |
駅徒歩10分以内なので、通勤通学やお買い物に大変便利です。 |
| リフォーム履歴 |
- |
| リノベーション履歴 |
- |
| 備考 |
賃貸保証等:加入要(初回50%)
管理形態/管理員の勤務形態:-/-
駅徒歩10分以内なので、通勤通学やお買い物に大変便利です。
|
| エネルギー消費性能 |
- |
| 断熱性能 |
- |
| 目安光熱費 |
- |
| バス・トイレ |
バス・トイレ別、浴室乾燥機、洗面所独立 |
| キッチン |
- |
| セキュリティー |
オートロック、モニター付インターホン |
| 収納 |
- |
| 設備・サービス |
フローリング |
| TV・通信 |
- |
| その他 |
宅配BOX |
| 契約期間 |
2年 |
現況 |
居住中 |
| 条件等 |
- |
入居可能時期 |
相談 |
| 仲介手数料 |
0.55ヶ月 |
|
|
| 更新料 |
なし |
物件番号 |
1165158815 |
| 情報公開日 |
2025年11月9日 |
次回更新予定日 |
2026年1月4日 |
| ケータイ用バーコード |
- スマートフォンでこの物件を見る
- スマートフォンからもこの物件をご覧になれます。
|
※「-」と表示されている項目については、情報提供会社にご確認ください。
| 周辺施設 |
西中島南方駅(Osaka Metro 御堂筋線) |
| 距離 |
830m |
写真を見る |
| 周辺施設 |
エキマルシェ新大阪ソトエ |
| 距離 |
930m |
写真を見る |
| 周辺施設 |
グルメシティ南方店 |
| 距離 |
840m |
写真を見る |
| 周辺施設 |
ローソン西中島六丁目店 |
| 距離 |
420m |
写真を見る |
| 周辺施設 |
薬のヒグチモアーズワン店 |
| 距離 |
810m |
写真を見る |
| 周辺施設 |
松屋西中島店 |
| 距離 |
520m |
写真を見る |
| 周辺施設 |
ダイソーアルデ新大阪店 |
| 距離 |
1000m |
写真を見る |
| 周辺施設 |
私立滋慶医療科学大学 |
| 距離 |
1040m |
写真を見る |
ここから簡単にお問い合わせをすることができます。
(SSLでの暗号化での送信を希望されるお客さまは
こちら
よりお問い合わせください)
お問い合わせを行う前に
「個人情報の取り扱いについて」を必ずお読みください。
「個人情報の取り扱いについて」に同意いただいた場合は「上記にご同意の上 確認画面へ進む」のボタンをクリックしてください。
個人情報の取り扱いについて
皆さまが送付された個人情報はアットホーム(株)のサーバを経由し、お問い合わせ先の不動産会社にメールまたはFAXにて転送されるためアットホーム(株)にも保管されます。アットホーム(株)で保管された個人情報の取り扱いについては、【こちら】をご覧ください。
また、本画面でご記入いただいた個人情報は、お問い合わせ先の不動産会社でも保管します。 お問い合わせ先の不動産会社が保管する個人情報の取り扱いについては、不動産会社に直接お問い合わせください。
国土交通大臣免許(7)第5206号 |
|---|
- 交通:
- JR東海道本線/吹田駅 徒歩3分
- 大阪府吹田市朝日町14-9 サンセール吹田1F
- TEL:
- 0120-958-133
- FAX:
- 06-6317-0007
- 所属団体:
- (一社)大阪府宅地建物取引業協会会員(公社)近畿地区不動産公正取引協議会加盟
取引態様:仲介  - 50111703
|
- スマートフォンで
この不動産会社を見る

|
- 提携サイト等より掲載されている物件情報につきましては、不動産会社詳細情報にリンクされていないものがあります。
- 物件に関するお問合せは、物件詳細ページの「情報提供会社」に表示されている不動産会社へ直接お願いいたします。
- 間取図は、現況を優先させていただきます。
- 映像は物件の一部を撮影したものです。物件の契約にあたっての最終判断はご自身の判断に基づいて行ってください。
- 仲介手数料について

アットホームは物件情報の適正化に努めております。
内容に誤りがある場合にはこちらへご連絡ください。