東京都新宿区上落合3丁目(落合駅)の賃貸:物件詳細
交通 所在地 |
駅徒歩 |
賃料 管理費等 |
敷金/保証金 礼金 |
間取り 面積 |
物件種目 築年月 |
|
東京メトロ東西線/落合
東京都新宿区上落合3丁目
|
4分
|
14.1万円
5,000円
|
1ヶ月 / なし
1ヶ月
|
1LDK
31.89m²
|
賃貸マンション
2026年3月
|
常時ゴミ出し可能、角部屋、最上階、高齢者相談、二人入居可、24時間換気システム、保証人不要
|
|
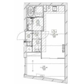
間取図
|
外観
外観は落ち着いています
|
その他の画像
|
| 交通 | 東京メトロ東西線 落合駅 徒歩4分 |
|---|
| その他の交通 | 西武新宿線 中井駅 徒歩4分 JR総武線 東中野駅 徒歩13分 |
| 所在地 |
東京都新宿区上落合3丁目
|
| 物件種目 |
賃貸マンション |
| 賃料 |
14.1万円 |
管理費等 |
5,000円 |
| 敷金 / 保証金 |
1ヶ月 / なし |
礼金 |
1ヶ月 |
| 敷引 |
- |
保証金償却 |
- |
| その他一時金 |
なし |
保険等 |
要 2年 20,000円 |
| 維持費等 |
24Hサポート:1,100円/月 |
| 間取り |
1LDK(LDK8、洋6.1) |
専有面積 |
31.89m² |
| 築年月 |
2026年3月
|
階建 / 階 |
地上4階地下1階建 / 4階 |
| 建物構造 |
RC |
総戸数 |
- |
| 主要採光面 |
南西 |
駐車場 |
近有 40,000円/月 |
| バイク置き場 |
- |
駐輪場 |
- |
| 建物名・部屋番号 |
GM上落合 |
ペット |
-
|
| アピールポイント |
室内設備は洗面所独立・浴室乾燥機など豊富に揃っており、過ごしやすいお部屋になっております。共用部には宅配ボックス・ゴミ出し24時間OKなどが備わっておりとても充実しています。セキュリティ面は、オートロック・TVインターホンなど充実しているので安心して生活できます。こちらの物件はインターネットをご利用いただけます。お手入れや収納がしやすいシステムキッチン付きです。浴室に追い焚き機能があるのでいつでも暖かいお風呂に入れます。この物件なら、近くに駐車スペースも備えています。徒歩4分の位置に駅がある物件です。こだわりの設備が整った新築物件です。全居室フローリングなので、ハウスダストの温床になりにくいです。 |
| リフォーム履歴 |
- |
| リノベーション履歴 |
- |
| 備考 |
賃貸保証等:加入要(初回 賃料等総額の50%~)
管理形態/管理員の勤務形態:-/-
室内設備は洗面化粧台・浴室乾燥機など大変充実しております。セキュリティ面は、TVインターホン・オートロックなど充実しているので安心して生活できます。共用部には宅配ボックス・ゴミ出し24時間OKなどが備わっておりとても充実しています。コチラの物件は2026年4月に入居可能予定の嬉しい物件になっています。システムキッチンがあり、お料理と後片付けが手早くできます。住み心地にこだわるならリビングやダイニングのある1LDKはイチオシです。敷地から出てすぐの場所にパーキングがあります。料理を一気に作れるため毎日忙しい人におすすな2口コンロを設置しております。建物の共用部にゴミ置き場があるので、外部の人にゴミを見られるなどのトラブル回避につながります。エアコン付きの物件で、温度管理が楽々です。
|
| エネルギー消費性能 |
- |
| 断熱性能 |
- |
| 目安光熱費 |
- |
| バス・トイレ |
バス・トイレ別、浴室乾燥機、追焚機能、洗面所独立、洗面所、温水洗浄便座、トイレ |
| キッチン |
オープンキッチン、システムキッチン、IHクッキングヒーター、2口コンロ |
| セキュリティー |
モニター付オートロック、オートロック、モニター付インターホン、防犯カメラ |
| 収納 |
- |
| 設備・サービス |
室内洗濯機置場、洗濯機置場、全居室フローリング、フローリング、都市ガス、エアコン、冷房 |
| TV・通信 |
インターネット対応、インターネット使用料無料、光ファイバー、CS、BS端子 |
| その他 |
宅配BOX |
| 契約期間 |
2年 |
現況 |
未完成 |
| 条件等 |
- |
入居可能時期 |
2026年4月上旬予定 |
| 更新料 |
新賃料 1ヶ月 |
物件番号 |
1165675522 |
| 情報公開日 |
2026年3月9日 |
次回更新予定日 |
2026年3月23日 |
| ケータイ用バーコード |
- スマートフォンでこの物件を見る
- スマートフォンからもこの物件をご覧になれます。
|
※「-」と表示されている項目については、情報提供会社にご確認ください。
| 周辺施設 |
スーパーみらべる 中井店 |
| 距離 |
183m |
写真を見る |
| 周辺施設 |
セブンイレブン 新宿上落合3丁目山手通り店 |
| 距離 |
216m |
写真を見る |
| 周辺施設 |
ツルハ調剤薬局新宿上落合店 |
| 距離 |
227m |
写真を見る |
| 周辺施設 |
星乃珈琲店 落合店 |
| 距離 |
225m |
写真を見る |
| 周辺施設 |
マクドナルド 落合店 |
| 距離 |
383m |
写真を見る |
| 周辺施設 |
バーミヤン 東中野店 |
| 距離 |
374m |
写真を見る |
ここから簡単にお問い合わせをすることができます。
(SSLでの暗号化での送信を希望されるお客さまは
こちら
よりお問い合わせください)
お問い合わせを行う前に
「個人情報の取り扱いについて」を必ずお読みください。
「個人情報の取り扱いについて」に同意いただいた場合は「上記にご同意の上 確認画面へ進む」のボタンをクリックしてください。
個人情報の取り扱いについて
皆さまが送付された個人情報はアットホーム(株)のサーバを経由し、お問い合わせ先の不動産会社にメールまたはFAXにて転送されるためアットホーム(株)にも保管されます。アットホーム(株)で保管された個人情報の取り扱いについては、【こちら】をご覧ください。
また、本画面でご記入いただいた個人情報は、お問い合わせ先の不動産会社でも保管します。 お問い合わせ先の不動産会社が保管する個人情報の取り扱いについては、不動産会社に直接お問い合わせください。
東京都知事免許(1)第107337号 |
|---|
- 交通:
- JR山手線/新宿駅 徒歩1分
- 東京都新宿区西新宿1丁目3-3 品川ステーションビル新宿5F
- TEL:
- 03-6258-0867
- 所属団体:
- (公社)東京都宅地建物取引業協会会員(公社)首都圏不動産公正取引協議会加盟
取引態様:仲介  - 00278932
|
- スマートフォンで
この不動産会社を見る

|
- 提携サイト等より掲載されている物件情報につきましては、不動産会社詳細情報にリンクされていないものがあります。
- 物件に関するお問合せは、物件詳細ページの「情報提供会社」に表示されている不動産会社へ直接お願いいたします。
- 間取図は、現況を優先させていただきます。
- 映像は物件の一部を撮影したものです。物件の契約にあたっての最終判断はご自身の判断に基づいて行ってください。
- 仲介手数料について

アットホームは物件情報の適正化に努めております。
内容に誤りがある場合にはこちらへご連絡ください。