神奈川県横浜市西区中央2丁目(戸部駅)の賃貸:物件詳細
交通 所在地 |
駅徒歩 |
賃料 管理費等 |
敷金/保証金 礼金 |
間取り 面積 |
物件種目 築年月 |
|
京急本線/戸部
神奈川県横浜市西区中央2丁目
|
7分
|
13.5万円
10,000円
|
1ヶ月 / なし
1ヶ月
|
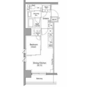
1DK
33.00m²
|
賃貸マンション
2018年10月(築7年6ヶ月)
|
ペット相談、楽器相談、南向き、二人入居可、2面採光、24時間換気システム、IT重説対応物件、保証人不要
|
|
間取図
|
外観
|
その他の画像
|
| 交通 | 京急本線 戸部駅 徒歩7分 |
|---|
| その他の交通 | 相鉄本線 西横浜駅 徒歩8分 JR東海道本線 横浜駅 徒歩19分 |
| 所在地 |
神奈川県横浜市西区中央2丁目
|
| 物件種目 |
賃貸マンション |
| 賃料 |
13.5万円 |
管理費等 |
10,000円 |
| 敷金 / 保証金 |
1ヶ月 / なし |
礼金 |
1ヶ月 |
| 敷引 |
- |
保証金償却 |
- |
| その他一時金 |
なし、鍵交換代等:33,000円~ |
保険等 |
要 |
| 維持費等 |
- |
クレジットカード決済 |
初期費用可 |
| 間取り |
1DK(洋3.2、DK8.7) |
専有面積 |
33.00m² |
| 築年月 |
2018年10月(築7年6ヶ月)
|
階建 / 階 |
10階建 / 6階 |
| 建物構造 |
RC |
総戸数 |
- |
| 主要採光面 |
南 |
駐車場 |
近有 20,000円/月 |
| バイク置き場 |
- |
駐輪場 |
- |
| 建物名・部屋番号 |
ザ・パークハビオ西横浜 |
ペット |
相談 |
| アピールポイント |
2面採光で日当たり良好の明るい室内です☆
スーパー・コンビニ近くにありお買い物も楽々です★
3線路使用可能で通勤・通学にも便利な立地です
初期費用のクレジット決済など、その他条件お気軽にご相談ください。 |
| リフォーム履歴 |
- |
| リノベーション履歴 |
- |
| 備考 |
賃貸保証等:加入要(初回保証料:総賃料の50%、継続保証料:10.000円/年)
管理形態/管理員の勤務形態:-/-
IT重説対応物件
初期費用をクレジット決済可能(分割も可)
【春からの新入生・新社会人様大歓迎!入居日ご相談ください】短期解約時違約金あり ペット飼育相談可能:敷金1ヶ月追加 退去時クリーニング費用:借主負担 初期費用を分割可能です!(スムーズ・クレジット決済)
|
| エネルギー消費性能 |
- |
| 断熱性能 |
- |
| 目安光熱費 |
- |
| バス・トイレ |
バス・トイレ別、浴室乾燥機、追焚機能、洗面所独立、洗面所、洗面台、シャワー、温水洗浄便座、トイレ |
| キッチン |
システムキッチン |
| セキュリティー |
モニター付オートロック、オートロック、モニター付インターホン |
| 収納 |
収納スペース、クローゼット、シューズボックス |
| 設備・サービス |
室内洗濯機置場、洗濯機置場、フローリング、都市ガス、エアコン |
| TV・通信 |
インターネット対応、BS端子 |
| その他 |
宅配BOX、バルコニー、エレベーター |
| 契約期間 |
2年 |
現況 |
居住中 |
| 条件等 |
- |
入居可能時期 |
指定有り2026年4月20日 |
| 更新料 |
新賃料 1ヶ月 |
物件番号 |
1166116722 |
| 情報公開日 |
2026年3月9日 |
次回更新予定日 |
2026年3月23日 |
| ケータイ用バーコード |
- スマートフォンでこの物件を見る
- スマートフォンからもこの物件をご覧になれます。
|
※「-」と表示されている項目については、情報提供会社にご確認ください。
| 周辺施設 |
神奈川大学 みなとみらいキャンパス |
| 距離 |
1722m |
写真を見る |
| 周辺施設 |
ローソン 横浜西前町店 |
| 距離 |
498m |
写真を見る |
| 周辺施設 |
ドラッグストアスマイル 藤棚店 |
| 距離 |
584m |
写真を見る |
| 周辺施設 |
ハナマサ西横浜店 |
| 距離 |
329m |
写真を見る |
| 周辺施設 |
クリエイトS・D 横浜天王町店 |
| 距離 |
1086m |
写真を見る |
| 周辺施設 |
ドン・キホーテ横浜西口店 |
| 距離 |
1652m |
写真を見る |
ここから簡単にお問い合わせをすることができます。
(SSLでの暗号化での送信を希望されるお客さまは
こちら
よりお問い合わせください)
お問い合わせを行う前に
「個人情報の取り扱いについて」を必ずお読みください。
「個人情報の取り扱いについて」に同意いただいた場合は「上記にご同意の上 確認画面へ進む」のボタンをクリックしてください。
個人情報の取り扱いについて
皆さまが送付された個人情報はアットホーム(株)のサーバを経由し、お問い合わせ先の不動産会社にメールまたはFAXにて転送されるためアットホーム(株)にも保管されます。アットホーム(株)で保管された個人情報の取り扱いについては、【こちら】をご覧ください。
また、本画面でご記入いただいた個人情報は、お問い合わせ先の不動産会社でも保管します。 お問い合わせ先の不動産会社が保管する個人情報の取り扱いについては、不動産会社に直接お問い合わせください。
神奈川県知事免許(10)第14677号 |
|---|
- 交通:
- JR京浜東北線/関内駅 徒歩3分
- 神奈川県横浜市中区翁町1丁目1-6 産友パークビル2F
- TEL:
- 045-227-5755
- FAX:
- 045-227-5756
- 所属団体:
- (公社)神奈川県宅地建物取引業協会会員(公社)首都圏不動産公正取引協議会加盟
取引態様:仲介  - 00105631
|
- スマートフォンで
この不動産会社を見る

|
- 提携サイト等より掲載されている物件情報につきましては、不動産会社詳細情報にリンクされていないものがあります。
- 物件に関するお問合せは、物件詳細ページの「情報提供会社」に表示されている不動産会社へ直接お願いいたします。
- 間取図は、現況を優先させていただきます。
- 映像は物件の一部を撮影したものです。物件の契約にあたっての最終判断はご自身の判断に基づいて行ってください。
- 仲介手数料について

アットホームは物件情報の適正化に努めております。
内容に誤りがある場合にはこちらへご連絡ください。