大阪府大阪市西区京町堀2丁目(阿波座駅)の賃貸:物件詳細
交通 所在地 |
駅徒歩 |
賃料 管理費等 |
敷金/保証金 礼金 |
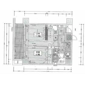
間取り 面積 |
物件種目 築年月 |
|
地下鉄千日前線/阿波座
大阪府大阪市西区京町堀2丁目
|
5分
|
12.5万円
10,240円
|
なし / なし
15万円
|
1LDK
46.70m²
|
賃貸マンション
2010年4月(築16年)
|
常時ゴミ出し可能、角部屋、南向き、高齢者相談、二人入居可、24時間セキュリティー、24時間換気システム、閑静な住宅街、IT重説対応物件
|
|
間取図
|
外観
|
<
その他の画像
>
|
| 交通 | 地下鉄千日前線 阿波座駅 徒歩5分 |
|---|
| その他の交通 | 京阪中之島線 中之島駅 徒歩9分 地下鉄四つ橋線 肥後橋駅 徒歩15分 |
| 所在地 |
大阪府大阪市西区京町堀2丁目
|
| 物件種目 |
賃貸マンション |
| 賃料 |
12.5万円 |
管理費等 |
10,240円 |
| 敷金 / 保証金 |
なし / なし |
礼金 |
15万円 |
| 敷引 |
- |
保証金償却 |
- |
| その他一時金 |
なし |
保険等 |
要 2年 20,000円 |
| 維持費等 |
- |
| 間取り |
1LDK(LDK11.6、洋6.7) |
専有面積 |
46.70m² |
| 築年月 |
2010年4月(築16年)
|
階建 / 階 |
11階建 / 10階 |
| 建物構造 |
RC |
総戸数 |
- |
| 主要採光面 |
南 |
駐車場 |
近有 25,000円/月 |
| バイク置き場 |
- |
駐輪場 |
有 |
| 建物名・部屋番号 |
リーガル京町堀 |
ペット |
-
|
| アピールポイント |
室内設備は洗面所独立・浴室乾燥機などが揃っており、とても充実しています。セキュリティ面は、オートロック・TVインターホンなど充実しているので安心して生活できます。収納はクロゼット・シューズボックスなどが備え付けられているので、衣類や日用品の収納に重宝します。共用部には宅配ボックス・ゴミ出し24時間OKなどが揃っており、とても充実しています。多ジャンルの番組があるBS・CSに対応しています。こちらのマンションはインターネットをご利用いただけます。お引越しのお日にちはお気軽にご相談ください。追い焚き機能があり、寒さの厳しい日でも体の芯から温められます。近くに駐車スペースをご用意しているマンションです。コンロやシンクが一体となっていてお手入れが簡単なシステムキッチンが付いています。多くの方にご好評をいただいている、清潔感のある賃貸物件です。 |
| リフォーム履歴 |
- |
| リノベーション履歴 |
- |
| 備考 |
管理形態/管理員の勤務形態:-/巡回
IT重説対応物件、外壁コンクリート、管理人巡回
物件のお問い合わせはSumoSumoまで♪♪
室内設備は洗面所独立・浴室乾燥機など大変充実しております。セキュリティ面は、TVインターホン・オートロックなどを備え付けているので安心して暮らせます。共用部には宅配ボックス・ゴミ出し24時間OKなどが揃っております。収納はシューズボックス・クロゼットなど豊富なので、衣類や履き物の整理がしやすく便利です。ぜひご覧いただきたい賃貸物件です。コンロやシンクが一体となっていてお手入れが簡単なシステムキッチンがります。こちらの物件は閑静な住宅地にあります。角部屋は他の住戸との接地面が少ないため、お互いの生活音による隣人トラブルのリスクが減ります。駅から徒歩5分というアクセス良好な駅近物件はいかがですか。犯罪を未然に防止して安全に暮らせるように、共用部に防犯カメラが付いています。外装もおしゃれで快適な生活をおくることができるマンションです。
|
| エネルギー消費性能 |
- |
| 断熱性能 |
- |
| 目安光熱費 |
- |
| バス・トイレ |
バス・トイレ別、浴室乾燥機、追焚機能、シャワー付洗面化粧台、洗面所独立、洗面所、洗面台、シャワー、温水洗浄便座、トイレ |
| キッチン |
カウンターキッチン、システムキッチン、独立型キッチン、3口以上コンロ、ガスコンロ可、グリル |
| セキュリティー |
モニター付オートロック、オートロック、モニター付インターホン、ディンプルキー、防犯カメラ |
| 収納 |
収納スペース、クローゼット、シューズボックス |
| 設備・サービス |
室内洗濯機置場、洗濯機置場、都市ガス給湯、給湯、フローリング、都市ガス、エアコン、冷房 |
| TV・通信 |
インターネット対応、光ファイバー、CATVインターネット、ケーブルTV、CS、BS端子 |
| その他 |
宅配BOX、バルコニー、駐輪場、エレベーター |
| 契約期間 |
2年 |
現況 |
居住中 |
| 条件等 |
- |
入居可能時期 |
相談 |
| 更新料 |
- |
物件番号 |
1166362422 |
| 情報公開日 |
2026年3月9日 |
次回更新予定日 |
2026年4月2日 |
| ケータイ用バーコード |
- スマートフォンでこの物件を見る
- スマートフォンからもこの物件をご覧になれます。
|
※「-」と表示されている項目については、情報提供会社にご確認ください。
| 周辺施設 |
ローソン 京町堀三丁目店 |
| 距離 |
106m |
写真を見る |
| 周辺施設 |
セブンイレブン 大阪京町堀3丁目店 |
| 距離 |
295m |
写真を見る |
| 周辺施設 |
西警察署靭交番 |
| 距離 |
419m |
写真を見る |
| 周辺施設 |
大阪江戸堀郵便局 |
| 距離 |
478m |
写真を見る |
| 周辺施設 |
ライフ阿波座駅前店 |
| 距離 |
499m |
写真を見る |
| 周辺施設 |
スギ薬局 西本町店 |
| 距離 |
759m |
写真を見る |
ここから簡単にお問い合わせをすることができます。
(SSLでの暗号化での送信を希望されるお客さまは
こちら
よりお問い合わせください)
お問い合わせを行う前に
「個人情報の取り扱いについて」を必ずお読みください。
「個人情報の取り扱いについて」に同意いただいた場合は「上記にご同意の上 確認画面へ進む」のボタンをクリックしてください。
個人情報の取り扱いについて
皆さまが送付された個人情報はアットホーム(株)のサーバを経由し、お問い合わせ先の不動産会社にメールまたはFAXにて転送されるためアットホーム(株)にも保管されます。アットホーム(株)で保管された個人情報の取り扱いについては、【こちら】をご覧ください。
また、本画面でご記入いただいた個人情報は、お問い合わせ先の不動産会社でも保管します。 お問い合わせ先の不動産会社が保管する個人情報の取り扱いについては、不動産会社に直接お問い合わせください。
大阪府知事免許(1)第62697号 |
|---|
- 交通:
- 地下鉄御堂筋線/心斎橋駅 徒歩3分
- 大阪府大阪市中央区南船場3丁目3-23 中和船場ビル102号
- TEL:
- 06-4400-6315
- FAX:
- 06-6258-3116
- 所属団体:
- (公社)全日本不動産協会会員(公社)近畿地区不動産公正取引協議会加盟
取引態様:仲介  - 50105934
|
- スマートフォンで
この不動産会社を見る

|
- 提携サイト等より掲載されている物件情報につきましては、不動産会社詳細情報にリンクされていないものがあります。
- 物件に関するお問合せは、物件詳細ページの「情報提供会社」に表示されている不動産会社へ直接お願いいたします。
- 間取図は、現況を優先させていただきます。
- 映像は物件の一部を撮影したものです。物件の契約にあたっての最終判断はご自身の判断に基づいて行ってください。
- 仲介手数料について

アットホームは物件情報の適正化に努めております。
内容に誤りがある場合にはこちらへご連絡ください。