東京都渋谷区恵比寿西1丁目(恵比寿駅)の賃貸:物件詳細
交通 所在地 |
駅徒歩 |
賃料 管理費等 |
敷金/保証金 礼金 |
間取り 面積 |
物件種目 築年月 |
|
JR山手線/恵比寿
東京都渋谷区恵比寿西1丁目
|
5分
|
35.1万円
10,000円
|
1ヶ月 / なし
1ヶ月
|
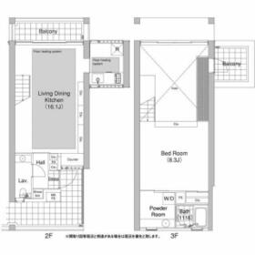
1LDK
59.59m²
|
賃貸マンション
2005年1月(築20年11ヶ月)
|
常時ゴミ出し可能、高齢者相談、二人入居可、24時間換気システム、メゾネット、IT重説対応物件
|
|
間取図
|
外観
外観です
|
<
その他の画像
>
|
| 交通 | JR山手線 恵比寿駅 徒歩5分 |
|---|
| その他の交通 | 東急東横線 代官山駅 徒歩5分 東京メトロ日比谷線 中目黒駅 徒歩11分 |
| 所在地 |
東京都渋谷区恵比寿西1丁目
|
| 物件種目 |
賃貸マンション |
| 賃料 |
35.1万円 |
管理費等 |
10,000円 |
| 敷金 / 保証金 |
1ヶ月 / なし |
礼金 |
1ヶ月 |
| 敷引 |
- |
保証金償却 |
- |
| その他一時金 |
エアコン清掃費:22,000円、室内清掃費用:62,810円、鍵交換代等:33,000円~ |
保険等 |
要 2年 16,550円 |
| 維持費等 |
- |
| 間取り |
1LDK(LDK16.1、洋8.3) |
専有面積 |
59.59m² |
| 築年月 |
2005年1月(築20年11ヶ月)
|
階建 / 階 |
地上14階地下1階建 / メゾネット2階~3階部分 |
| 建物構造 |
RC |
総戸数 |
- |
| 主要採光面 |
北 |
駐車場 |
近有 45,000円/月 |
| バイク置き場 |
- |
駐輪場 |
有 |
| 建物名・部屋番号 |
エルスタンザ代官山 |
ペット |
-
|
| アピールポイント |
収納はクロゼット・全居室収納などが備え付けられているので、衣類や日用品の収納に重宝します。共用部には宅配ボックス・ゴミ出し24時間OKなど様々な設備やサービスが揃っているので便利です。室内設備は浴室乾燥機・洗面所独立など豊富に揃っており、過ごしやすいお部屋になっております。セキュリティ面は、オートロック・TVインターホンなど充実しているので、防犯対策もばっちりです。共用設備の充実している、楽しく生活できるマンションです。ゆったりとしたお部屋の広さ59.59㎡。駐輪場付きのマンションです。全居室フローリングマンションなので、掃除もしやすく便利です。システムキッチンがあり、お料理と後片付けが手早くできます。設備条件が充実した月々35.1万円台のお部屋です。家の近くにパーキングもあり、車をお持ちの方に嬉しい物件です。 |
| リフォーム履歴 |
- |
| リノベーション履歴 |
- |
| 備考 |
賃貸保証等:加入要(オリコフォレントインシュア 保証料:賃料等の50%(最低2万)、月次保証料:賃料等の1%(更新料無))
管理形態/管理員の勤務形態:-/-
IT重説対応物件
セキュリティ面は、オートロック・TVインターホンなどを備え付けているので安心して暮らせます。共用部にはゴミ出し24時間OK・宅配ボックスなどが揃っております。室内設備は洗面所独立・浴室乾燥機など大変充実しております。収納はクロゼット・全居室収納などが備え付けられているので、衣類や日用品の収納に重宝します。徒歩5分で駅にアクセス可能な、魅力的な駅近物件です。バルコニー付きのマンションで、用途に合わせて使用できおすすめです。こちらは床暖房が付いている物件です。イチオシの専有面積59.59平米のお部屋。収納力と掃除のしやすさを同時に備えているシステムキッチンが付いています。魅力も多い賃貸物件はいかがでしょうか。駐輪場付きのマンションです。
|
| エネルギー消費性能 |
- |
| 断熱性能 |
- |
| 目安光熱費 |
- |
| バス・トイレ |
バス・トイレ別、浴室乾燥機、オートバス、追焚機能、洗面所独立、洗面所、温水洗浄便座、トイレ |
| キッチン |
システムキッチン、独立型キッチン、2口コンロ、ガスコンロ可 |
| セキュリティー |
モニター付オートロック、オートロック、モニター付インターホン、ディンプルキー、防犯カメラ |
| 収納 |
全居室収納、収納スペース、クローゼット |
| 設備・サービス |
全居室エアコン、エアコン2台以上、床暖房、室内洗濯機置場、洗濯機置場、全居室フローリング、フローリング、エアコン、暖房、冷房 |
| TV・通信 |
インターネット対応、光ファイバー、CATVインターネット、ケーブルTV、CS、BS端子 |
| その他 |
宅配BOX、バルコニー、駐輪場、エレベーター |
| 契約期間 |
2年 |
現況 |
空家 |
| 条件等 |
- |
入居可能時期 |
即時 |
| 更新料 |
新賃料 1ヶ月 |
物件番号 |
1166391116 |
| 情報公開日 |
2025年11月8日 |
次回更新予定日 |
2025年11月23日 |
| ケータイ用バーコード |
- スマートフォンでこの物件を見る
- スマートフォンからもこの物件をご覧になれます。
|
※「-」と表示されている項目については、情報提供会社にご確認ください。
| 周辺施設 |
NOVA(ノバ) 恵比寿校 |
| 距離 |
670m |
写真を見る |
| 周辺施設 |
informel:(アンフォルメル) |
| 距離 |
1403m |
写真を見る |
| 周辺施設 |
pastadolce(パスタドルチェ) |
| 距離 |
1402m |
写真を見る |
| 周辺施設 |
俺流らーめん塩代官山店 |
| 距離 |
906m |
写真を見る |
| 周辺施設 |
Bio c' Bon(ビオ セ ボン) 恵比寿店 |
| 距離 |
670m |
写真を見る |
ここから簡単にお問い合わせをすることができます。
(SSLでの暗号化での送信を希望されるお客さまは
こちら
よりお問い合わせください)
お問い合わせを行う前に
「個人情報の取り扱いについて」を必ずお読みください。
「個人情報の取り扱いについて」に同意いただいた場合は「上記にご同意の上 確認画面へ進む」のボタンをクリックしてください。
個人情報の取り扱いについて
皆さまが送付された個人情報はアットホーム(株)のサーバを経由し、お問い合わせ先の不動産会社にメールまたはFAXにて転送されるためアットホーム(株)にも保管されます。アットホーム(株)で保管された個人情報の取り扱いについては、【こちら】をご覧ください。
また、本画面でご記入いただいた個人情報は、お問い合わせ先の不動産会社でも保管します。 お問い合わせ先の不動産会社が保管する個人情報の取り扱いについては、不動産会社に直接お問い合わせください。
東京都知事免許(1)第107337号 |
|---|
- 交通:
- JR山手線/新橋駅 徒歩5分
- 東京都中央区銀座8丁目11-1 GINZA GS BLD.2 7階
- TEL:
- 03-6281-4770
- FAX:
- 03-6281-4771
- 所属団体:
- (公社)東京都宅地建物取引業協会会員(公社)首都圏不動産公正取引協議会加盟
取引態様:仲介  - 00271811
|
- スマートフォンで
この不動産会社を見る

|
- 提携サイト等より掲載されている物件情報につきましては、不動産会社詳細情報にリンクされていないものがあります。
- 物件に関するお問合せは、物件詳細ページの「情報提供会社」に表示されている不動産会社へ直接お願いいたします。
- 間取図は、現況を優先させていただきます。
- 映像は物件の一部を撮影したものです。物件の契約にあたっての最終判断はご自身の判断に基づいて行ってください。
- 仲介手数料について

アットホームは物件情報の適正化に努めております。
内容に誤りがある場合にはこちらへご連絡ください。