東京都千代田区神田錦町1丁目(小川町駅)の賃貸:物件詳細
交通 所在地 |
駅徒歩 |
賃料 管理費等 |
敷金/保証金 礼金 |
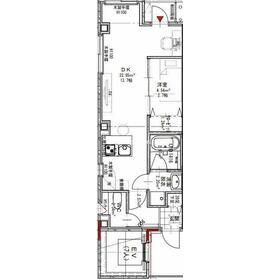
間取り 面積 |
物件種目 築年月 |
|
都営新宿線/小川町
東京都千代田区神田錦町1丁目
|
3分
|
21.5万円
15,000円
|
なし / なし
なし
|
1LDK
40.02m²
|
賃貸マンション
2025年8月
|
角部屋、二人入居可、2面採光
|
|
間取図
間取図
|
外観
外観
|
<
その他の画像
>
|
| 交通 | 都営新宿線 小川町駅 徒歩3分 |
|---|
| その他の交通 | 東京メトロ銀座線 神田駅 徒歩9分 都営三田線 神保町駅 徒歩8分 |
| 所在地 |
東京都千代田区神田錦町1丁目
|
| 物件種目 |
賃貸マンション |
| 賃料 |
21.5万円 |
管理費等 |
15,000円 |
| 敷金 / 保証金 |
なし / なし |
礼金 |
なし |
| 敷引 |
- |
保証金償却 |
- |
| その他一時金 |
室内清掃費用:66,000円 |
保険等 |
要 |
| 維持費等 |
決済サービス料:550円/月、火災保険付帯24時間サービス:2,200円/月 |
| 間取り |
1LDK(LDK13.7帖 洋室2.7帖) |
専有面積 |
40.02m² |
| 築年月 |
2025年8月
|
階建 / 階 |
6階建 / 5階 |
| 建物構造 |
鉄骨造 |
総戸数 |
- |
| 主要採光面 |
北西 |
駐車場 |
- |
| バイク置き場 |
- |
駐輪場 |
- |
| 建物名・部屋番号 |
小川町1163ビル 502 |
ペット |
-
|
| アピールポイント |
3路線利用可 角部屋二面採光 カウンターキッチン 独立洗面台 追焚き機能付きバス 洗浄機能付温水便座 |
| リフォーム履歴 |
- |
| リノベーション履歴 |
- |
| 備考 |
賃貸保証等:加入要(初回保証料は総賃料の80% 月次保証料は総賃料の1%)
管理形態/管理員の勤務形態:-/-
短期解約違約金あり 解約予告期間2ヶ月前。指定の引越業者有り 事務所・SOHOの利用不可 更新事務手数料5500円 エアコン清掃費1台あたり16500円
|
| エネルギー消費性能 |
- |
| 断熱性能 |
- |
| 目安光熱費 |
- |
| バス・トイレ |
バス・トイレ別、浴室暖房、浴室乾燥機、オートバス、追焚機能、シャワー付洗面化粧台、洗面所独立、洗面所、洗面台、シャワー、温水洗浄便座、トイレ |
| キッチン |
カウンターキッチン、2口コンロ |
| セキュリティー |
モニター付インターホン、ダブルロックドア、火災警報器(報知機) |
| 収納 |
収納スペース、クローゼット、シューズボックス |
| 設備・サービス |
全居室エアコン、エアコン2台以上、室内洗濯機置場、フローリング、都市ガス、エアコン、暖房、冷房、人感センサー付照明 |
| TV・通信 |
インターネット対応、光ファイバー |
| その他 |
バルコニー、エレベーター |
| 契約期間 |
2年 |
現況 |
空家 |
| 条件等 |
- |
入居可能時期 |
即時 |
| 更新料 |
新賃料 1.5ヶ月 |
物件番号 |
1166574012 |
| 情報公開日 |
2025年11月20日 |
次回更新予定日 |
2025年12月19日 |
| ケータイ用バーコード |
- スマートフォンでこの物件を見る
- スマートフォンからもこの物件をご覧になれます。
|
※「-」と表示されている項目については、情報提供会社にご確認ください。
| 周辺施設 |
淡路町駅(東京メトロ 丸ノ内線) |
| 距離 |
360m |
写真を見る |
ここから簡単にお問い合わせをすることができます。
(SSLでの暗号化での送信を希望されるお客さまは
こちら
よりお問い合わせください)
お問い合わせを行う前に
「個人情報の取り扱いについて」を必ずお読みください。
「個人情報の取り扱いについて」に同意いただいた場合は「上記にご同意の上 確認画面へ進む」のボタンをクリックしてください。
個人情報の取り扱いについて
皆さまが送付された個人情報はアットホーム(株)のサーバを経由し、お問い合わせ先の不動産会社にメールまたはFAXにて転送されるためアットホーム(株)にも保管されます。アットホーム(株)で保管された個人情報の取り扱いについては、【こちら】をご覧ください。
また、本画面でご記入いただいた個人情報は、お問い合わせ先の不動産会社でも保管します。 お問い合わせ先の不動産会社が保管する個人情報の取り扱いについては、不動産会社に直接お問い合わせください。
東京都知事免許(6)第76891号 |
|---|
- 交通:
- JR総武線/御茶ノ水駅 徒歩1分
- 東京都千代田区神田駿河台2丁目2-2 キントービル5F
- TEL:
- 03-6228-4882
- FAX:
- 03-3294-9836
- 所属団体:
- (公社)全日本不動産協会会員(公社)首都圏不動産公正取引協議会加盟
取引態様:仲介  - 00275544
|
- スマートフォンで
この不動産会社を見る

|
- 提携サイト等より掲載されている物件情報につきましては、不動産会社詳細情報にリンクされていないものがあります。
- 物件に関するお問合せは、物件詳細ページの「情報提供会社」に表示されている不動産会社へ直接お願いいたします。
- 間取図は、現況を優先させていただきます。
- 映像は物件の一部を撮影したものです。物件の契約にあたっての最終判断はご自身の判断に基づいて行ってください。
- 仲介手数料について

アットホームは物件情報の適正化に努めております。
内容に誤りがある場合にはこちらへご連絡ください。