東京都北区滝野川7丁目(庚申塚駅)の賃貸:物件詳細
交通 所在地 |
駅徒歩 |
賃料 管理費等 |
敷金/保証金 礼金 |
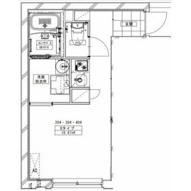
間取り 面積 |
物件種目 築年月 |
|
都電荒川線/庚申塚
東京都北区滝野川7丁目
|
8分
|
7.7万円
7,000円
|
なし / なし
1ヶ月
|
ワンルーム
18.47m²
|
賃貸マンション
2023年11月(築2年2ヶ月)
|
分譲タイプ、保証人不要
|
|
間取図
|
外観
|
その他の画像
|
| 交通 | 都電荒川線 庚申塚駅 徒歩8分 |
|---|
| その他の交通 | 都電荒川線 新庚申塚駅 徒歩9分 |
| 所在地 |
東京都北区滝野川7丁目
|
| 物件種目 |
賃貸マンション |
| 賃料 |
7.7万円 |
管理費等 |
7,000円 |
| 敷金 / 保証金 |
なし / なし |
礼金 |
1ヶ月 |
| 敷引 |
- |
保証金償却 |
- |
| その他一時金 |
契約手数料(税別):5,000円、鍵交換費用(税別):20,000円 |
保険等 |
要 2年 20,000円 |
| 維持費等 |
24時間サポート(税込):1,100円/月 |
| 間取り |
ワンルーム |
専有面積 |
18.47m² |
| 築年月 |
2023年11月(築2年2ヶ月)
|
階建 / 階 |
4階建 / 2階 |
| 建物構造 |
RC |
総戸数 |
- |
| 主要採光面 |
|
駐車場 |
- |
| バイク置き場 |
- |
駐輪場 |
- |
| 建物名・部屋番号 |
ミライズ滝野川レジデンス 204 |
ペット |
-
|
| アピールポイント |
室内設備は洗面所独立・浴室乾燥機など豊富に揃っており、過ごしやすいお部屋になっております。リモート会議のようにすぐに応対できないときでも、宅配ボックスに荷物が届くので大変便利です。セキュリティ面は、オートロック・TVインターホンなどを設置しているので安全面でも優れております。住みやすい環境が嬉しい賃貸物件です。2駅利用可能なので、用途や行き先に応じて経路を選択できます。暮らし快適物件、ネット回線有り、お家でパソコンが使えます。敷金不要なので初期費用を抑えたい方におすすめです。幅広い層に好評な、駅から徒歩8分に立地する物件です。様々な好条件が揃った分譲賃貸のマンションを紹介いたします。こちらのマンションの家賃は7.7万です。 |
| リフォーム履歴 |
- |
| リノベーション履歴 |
- |
| 備考 |
賃貸保証等:加入要(イントラスト 初回保証委託料:月額総支払額の50~100%、年間保証料12,000円ミライズインシュア/日本セーフティ/ルームバンクインシュア/クレディセゾン:初回保証料:月額総支払額の50~100%)
管理形態/管理員の勤務形態:-/-
クリーニング費用は退去時請求:40,000円(税別)エアコン洗浄費用:12,000円×設置台数(税別)1年未満の解約:賃料+管理費の2ヵ月 1年以上2年未満の解約:賃料+管理費1ヵ月 解約予告:2ヶ月前
室内設備は洗面所独立・浴室乾燥機など充実した設備を備え付けています。共用部には宅配ボックスを備え付けているため、対面で荷物を受け取る必要がありません。セキュリティ面は、オートロック・TVインターホンなどを備え付けているので安心して暮らせます。簡単に温度管理できるエアコン付きの物件。こちらは分譲賃貸の物件です。ネットの回線工事が済んでいるのですぐにパソコンが使えます。敷金不要なので、初期費用削減につながります。築浅物件で快適な日々を過ごしましょう。やっぱり新しい家に住みたいという方に。クローゼット付きの物件です。バストイレ別の物件です。
|
| エネルギー消費性能 |
- |
| 断熱性能 |
- |
| 目安光熱費 |
- |
| バス・トイレ |
バス・トイレ別、浴室乾燥機、洗面所独立、洗面所、温水洗浄便座、トイレ |
| キッチン |
IHクッキングヒーター |
| セキュリティー |
モニター付オートロック、オートロック、モニター付インターホン |
| 収納 |
収納スペース、クローゼット |
| 設備・サービス |
室内洗濯機置場、洗濯機置場、都市ガス、エアコン |
| TV・通信 |
インターネット対応 |
| その他 |
宅配BOX |
| 契約期間 |
2年 |
現況 |
居住中 |
| 条件等 |
- |
入居可能時期 |
2026年1月下旬予定 |
| 更新料 |
新賃料 1ヶ月 |
物件番号 |
1166883316 |
| 情報公開日 |
2025年11月8日 |
次回更新予定日 |
2025年12月23日 |
| ケータイ用バーコード |
- スマートフォンでこの物件を見る
- スマートフォンからもこの物件をご覧になれます。
|
※「-」と表示されている項目については、情報提供会社にご確認ください。
ここから簡単にお問い合わせをすることができます。
(SSLでの暗号化での送信を希望されるお客さまは
こちら
よりお問い合わせください)
お問い合わせを行う前に
「個人情報の取り扱いについて」を必ずお読みください。
「個人情報の取り扱いについて」に同意いただいた場合は「上記にご同意の上 確認画面へ進む」のボタンをクリックしてください。
個人情報の取り扱いについて
皆さまが送付された個人情報はアットホーム(株)のサーバを経由し、お問い合わせ先の不動産会社にメールまたはFAXにて転送されるためアットホーム(株)にも保管されます。アットホーム(株)で保管された個人情報の取り扱いについては、【こちら】をご覧ください。
また、本画面でご記入いただいた個人情報は、お問い合わせ先の不動産会社でも保管します。 お問い合わせ先の不動産会社が保管する個人情報の取り扱いについては、不動産会社に直接お問い合わせください。
(株)ハウスフレンド東京都知事免許(7)第73741号 |
|---|
- 交通:
- JR総武線/秋葉原駅 徒歩3分
- 東京都千代田区神田相生町1番地 秋葉原センタープレイスビル11階
- TEL:
- 03-5577-5538
- FAX:
- 03-5577-5539
- 所属団体:
- (公社)東京都宅地建物取引業協会会員(公社)首都圏不動産公正取引協議会加盟
取引態様:代理 |
- 提携サイト等より掲載されている物件情報につきましては、不動産会社詳細情報にリンクされていないものがあります。
- 物件に関するお問合せは、物件詳細ページの「情報提供会社」に表示されている不動産会社へ直接お願いいたします。
- 間取図は、現況を優先させていただきます。
- 映像は物件の一部を撮影したものです。物件の契約にあたっての最終判断はご自身の判断に基づいて行ってください。
- 仲介手数料について

アットホームは物件情報の適正化に努めております。
内容に誤りがある場合にはこちらへご連絡ください。