東京都新宿区歌舞伎町2丁目(西武新宿駅)の賃貸:物件詳細
交通 所在地 |
駅徒歩 |
賃料 管理費等 |
敷金/保証金 礼金 |
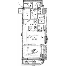
間取り 面積 |
物件種目 築年月 |
|
西武新宿線/西武新宿
東京都新宿区歌舞伎町2丁目
|
1分
|
25.5万円
20,000円
|
なし / なし
1ヶ月
|
1LDK
40.58m²
|
賃貸マンション
2016年9月(築9年7ヶ月)
|
ペット相談、デザイナーズ、常時ゴミ出し可能、角部屋、高齢者相談、二人入居可、24時間換気システム、外観タイル張り、保証人不要
|
|
間取図
|
外観
外観です
|
<
その他の画像
>
|
| 交通 | 西武新宿線 西武新宿駅 徒歩1分 |
|---|
| その他の交通 | 都営大江戸線 新宿西口駅 徒歩7分 JR山手線 新宿駅 徒歩8分 |
| 所在地 |
東京都新宿区歌舞伎町2丁目
|
| 物件種目 |
賃貸マンション |
| 賃料 |
25.5万円 |
管理費等 |
20,000円 |
| 敷金 / 保証金 |
なし / なし |
礼金 |
1ヶ月 |
| 敷引 |
- |
保証金償却 |
- |
| その他一時金 |
入居中サポート:21,450円、抗菌代:17,600円、事務手数料:11,000円 |
保険等 |
要 2年 25,000円 |
| 維持費等 |
- |
| 間取り |
1LDK(LDK9.4、洋4.7) |
専有面積 |
40.58m² |
| 築年月 |
2016年9月(築9年7ヶ月)
|
階建 / 階 |
15階建 / 10階 |
| 建物構造 |
RC |
総戸数 |
- |
| 主要採光面 |
東 |
駐車場 |
近有 45,000円/月 |
| バイク置き場 |
- |
駐輪場 |
有 |
| 建物名・部屋番号 |
エル・グランジュテ新宿 |
ペット |
相談 |
| アピールポイント |
「エル・グランジュテ新宿」のここがイチオシ。近くにはローソン 西武新宿駅北口店(徒歩2分)がありちょっとした買い物に便利です。セキュリティ面は、オートロック・TVインターホンなどを設置しているので安全面でも優れております。共用部にはゴミ出し24時間OK・宅配ボックスなどが備わっておりとても充実しています。収納はクロゼット・全居室収納など豊富なので、衣類や履き物の整理がしやすく便利です。室内設備は洗面化粧台・浴室乾燥機など充実した設備を備え付けています。エアコンの付いたマンションなので、夏や梅雨の時期も安心です。入居当日から無料でインターネットをお使いいただけるので、忙しくてネット回線を契約する時間がとれない方にもおすすめです。転居先に住み心地も良いこちらの賃貸物件。充実した新生活を過ごしましょう。通風システムが整った換気がしやすいマンションです。お部屋の所在している階数は10階となっております。 |
| リフォーム履歴 |
- |
| リノベーション履歴 |
- |
| 備考 |
賃貸保証等:加入要(保証会社必須/~50%)
管理形態/管理員の勤務形態:-/-
室内設備は洗面化粧台・浴室乾燥機など豊富に揃っており、過ごしやすいお部屋になっております。共用部には宅配ボックス・ゴミ出し24時間OKなど様々な設備やサービスが揃っているので便利です。収納はクロゼット・全居室収納などが備え付けられているので、衣類や日用品の収納に重宝します。セキュリティ面は、オートロック・TVインターホンなど充実しているので、防犯対策もばっちりです。お部屋の広さ40.58㎡。たくさんの料理をまとめて作ることで忙しい日でもすぐに料理を作れる2口コンロを備え付けております。防犯カメラによって犯罪の発生を抑制できます。敷地内にはキレイなゴミ捨て場も設けられています。室内に新鮮な空気を取り入れやすい風通しが良好な物件です。こちらの物件は築9年ですが、充実の設備が整っています。こちらの物件はマンションです。
|
| エネルギー消費性能 |
- |
| 断熱性能 |
- |
| 目安光熱費 |
- |
| バス・トイレ |
バス・トイレ別、浴室乾燥機、温水洗浄便座、トイレ |
| キッチン |
システムキッチン、2口コンロ、ガスコンロ可 |
| セキュリティー |
モニター付オートロック、オートロック、モニター付インターホン、ディンプルキー、ダブルロックドア、防犯カメラ |
| 収納 |
全居室収納、収納スペース、クローゼット |
| 設備・サービス |
室内洗濯機置場、洗濯機置場、全居室フローリング、フローリング、エアコン、冷房 |
| TV・通信 |
インターネット対応、インターネット使用料無料、CS、BS端子 |
| その他 |
宅配BOX、バルコニー、駐輪場、エレベーター |
| 契約期間 |
2年 |
現況 |
居住中 |
| 条件等 |
- |
入居可能時期 |
2026年3月中旬予定 |
| 更新料 |
新賃料 1.5ヶ月 |
物件番号 |
1166987022 |
| 情報公開日 |
2026年3月10日 |
次回更新予定日 |
2026年3月24日 |
| ケータイ用バーコード |
- スマートフォンでこの物件を見る
- スマートフォンからもこの物件をご覧になれます。
|
※「-」と表示されている項目については、情報提供会社にご確認ください。
| 周辺施設 |
オリンピック 新宿百人町店 |
| 距離 |
606m |
写真を見る |
| 周辺施設 |
maruetsu(マルエツ) 新宿六丁目店 |
| 距離 |
976m |
写真を見る |
| 周辺施設 |
ファミリーマート トモニー西武新宿駅北口店 |
| 距離 |
91m |
写真を見る |
| 周辺施設 |
ローソン 西武新宿駅北口店 |
| 距離 |
102m |
写真を見る |
| 周辺施設 |
どらっぐぱぱす 新宿イーストサイドスクエア店 |
| 距離 |
925m |
写真を見る |
| 周辺施設 |
西新宿八郵便局 |
| 距離 |
889m |
写真を見る |
ここから簡単にお問い合わせをすることができます。
(SSLでの暗号化での送信を希望されるお客さまは
こちら
よりお問い合わせください)
お問い合わせを行う前に
「個人情報の取り扱いについて」を必ずお読みください。
「個人情報の取り扱いについて」に同意いただいた場合は「上記にご同意の上 確認画面へ進む」のボタンをクリックしてください。
個人情報の取り扱いについて
皆さまが送付された個人情報はアットホーム(株)のサーバを経由し、お問い合わせ先の不動産会社にメールまたはFAXにて転送されるためアットホーム(株)にも保管されます。アットホーム(株)で保管された個人情報の取り扱いについては、【こちら】をご覧ください。
また、本画面でご記入いただいた個人情報は、お問い合わせ先の不動産会社でも保管します。 お問い合わせ先の不動産会社が保管する個人情報の取り扱いについては、不動産会社に直接お問い合わせください。
東京都知事免許(1)第107337号 |
|---|
- 交通:
- JR山手線/新橋駅 徒歩5分
- 東京都中央区銀座8丁目11-1 GINZA GS BLD.2 7階
- TEL:
- 03-6281-4770
- FAX:
- 03-6281-4771
- 所属団体:
- (公社)東京都宅地建物取引業協会会員(公社)首都圏不動産公正取引協議会加盟
取引態様:仲介  - 00271811
|
- スマートフォンで
この不動産会社を見る

|
- 提携サイト等より掲載されている物件情報につきましては、不動産会社詳細情報にリンクされていないものがあります。
- 物件に関するお問合せは、物件詳細ページの「情報提供会社」に表示されている不動産会社へ直接お願いいたします。
- 間取図は、現況を優先させていただきます。
- 映像は物件の一部を撮影したものです。物件の契約にあたっての最終判断はご自身の判断に基づいて行ってください。
- 仲介手数料について

アットホームは物件情報の適正化に努めております。
内容に誤りがある場合にはこちらへご連絡ください。