愛知県名古屋市東区白壁2丁目(清水駅)の賃貸:物件詳細
交通 所在地 |
駅徒歩 |
賃料 管理費等 |
敷金/保証金 礼金 |
間取り 面積 |
物件種目 築年月 |
|
名鉄瀬戸線/清水
愛知県名古屋市東区白壁2丁目
|
4分
|
15.3万円
12,000円
|
1ヶ月 / なし
1ヶ月
|
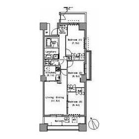
3LDK
73.01m²
|
賃貸マンション
2008年3月(築18年1ヶ月)
|
ペット相談、南向き
|
|
間取図
|
外観
|
<
その他の画像
>
|
| 交通 | 名鉄瀬戸線 清水駅 徒歩4分 |
|---|
| その他の交通 | 名鉄瀬戸線 東大手駅 徒歩8分 名鉄瀬戸線 尼ケ坂駅 徒歩10分 |
| 所在地 |
愛知県名古屋市東区白壁2丁目
|
| 物件種目 |
賃貸マンション |
| 賃料 |
15.3万円 |
管理費等 |
12,000円 |
| 敷金 / 保証金 |
1ヶ月 / なし |
礼金 |
1ヶ月 |
| 敷引 |
- |
保証金償却 |
- |
| その他一時金 |
室内清掃費用:96,373円、鍵交換代等:16,500円~ |
保険等 |
要 |
| 維持費等 |
口座振替事務手数料:220円/月 |
| 間取り |
3LDK |
専有面積 |
73.01m² |
| 築年月 |
2008年3月(築18年1ヶ月)
|
階建 / 階 |
15階建 / 11階 |
| 建物構造 |
SRC |
総戸数 |
- |
| 主要採光面 |
南 |
駐車場 |
無 |
| バイク置き場 |
有 |
駐輪場 |
有 |
| 建物名・部屋番号 |
パークアクシス白壁 1107 |
ペット |
相談 |
| アピールポイント |
共用部には宅配ボックスが備え付けられているため、対面で荷物を受け取らなくて済みます。浴室乾燥機を備え付けているので、浴室を暖房機能で温めておくことで急激な温度変化によるヒートショックの予防もできます。オートロック付きの物件なので空き巣などに狙われにくく安心できます。敷地内にごみ置き場があるので、ごみ出しも便利です。11階にある物件です、是非一度ご覧になってみてください。防犯面は日勤の管理人さんがいるので心配いりません。この物件は入居日指定が令和8年5月になっていますのでお早目にご連絡ください。こちらの物件はエレベーター付きです。システムキッチンのついた物件です。ペットと離れたくない方にもご紹介したい、ペット相談可の物件です。 |
| リフォーム履歴 |
- |
| リノベーション履歴 |
- |
| 備考 |
賃貸保証等:利用可(要加入)
管理形態/管理員の勤務形態:-/日勤
管理人日勤
共用部には宅配ボックスが備え付けられているため、好きなタイミングで荷物を受け取ることができます。オートロックと玄関の鍵で二重で守られているので安全性に優れております。浴室乾燥機が付いているので、梅雨や花粉などで洗濯物を外干しできない時期でも部屋干しをしなくて済みます。15階建てで快適な物件。この物件の所在階数は11階です。管理人が昼間は勤めており、留守も安心。忙しい方にもおすすめの、敷地内ごみ置き場付きの物件です。2駅利用できる立地となっていて、アクセスが良いです。使って嬉しいCATV対応の物件は、コチラとなっています。過ごしやすい環境を実現する、エアコン付きの物件です。
|
| エネルギー消費性能 |
- |
| 断熱性能 |
- |
| 目安光熱費 |
- |
| バス・トイレ |
バス・トイレ別、浴室乾燥機、追焚機能、洗面所独立、洗面所、トイレ |
| キッチン |
システムキッチン、グリル |
| セキュリティー |
オートロック |
| 収納 |
- |
| 設備・サービス |
床暖房、室内洗濯機置場、洗濯機置場、都市ガス、エアコン、暖房 |
| TV・通信 |
インターネット対応、ケーブルTV |
| その他 |
宅配BOX、バイク置き場、バルコニー、駐輪場、エレベーター |
| 契約期間 |
2年 |
現況 |
居住中 |
| 条件等 |
- |
入居可能時期 |
2026年5月上旬予定 |
| 更新料 |
- |
物件番号 |
1167128722 |
| 情報公開日 |
2026年3月10日 |
次回更新予定日 |
2026年3月25日 |
| ケータイ用バーコード |
- スマートフォンでこの物件を見る
- スマートフォンからもこの物件をご覧になれます。
|
※「-」と表示されている項目については、情報提供会社にご確認ください。
| 周辺施設 |
フランテ ロゼ 白壁 |
| 距離 |
676m |
写真を見る |
| 周辺施設 |
ローソン 北区清水一丁目店 |
| 距離 |
129m |
写真を見る |
| 周辺施設 |
スギドラッグ 清水口店 |
| 距離 |
238m |
写真を見る |
| 周辺施設 |
岐阜信用金庫清水支店 |
| 距離 |
472m |
写真を見る |
| 周辺施設 |
名古屋白壁郵便局 |
| 距離 |
447m |
写真を見る |
ここから簡単にお問い合わせをすることができます。
(SSLでの暗号化での送信を希望されるお客さまは
こちら
よりお問い合わせください)
お問い合わせを行う前に
「個人情報の取り扱いについて」を必ずお読みください。
「個人情報の取り扱いについて」に同意いただいた場合は「上記にご同意の上 確認画面へ進む」のボタンをクリックしてください。
個人情報の取り扱いについて
皆さまが送付された個人情報はアットホーム(株)のサーバを経由し、お問い合わせ先の不動産会社にメールまたはFAXにて転送されるためアットホーム(株)にも保管されます。アットホーム(株)で保管された個人情報の取り扱いについては、【こちら】をご覧ください。
また、本画面でご記入いただいた個人情報は、お問い合わせ先の不動産会社でも保管します。 お問い合わせ先の不動産会社が保管する個人情報の取り扱いについては、不動産会社に直接お問い合わせください。
愛知県知事免許(1)第26269号 |
|---|
- 交通:
- 名古屋市東山線/名古屋駅 徒歩3分
- 愛知県名古屋市中村区名駅4丁目24-16 リージャス広小路ガーデンアベニュービジネスセンター3F・4F
- TEL:
- 052-856-9572
- 所属団体:
- (公社)愛知県宅地建物取引業協会会員東海不動産公正取引協議会加盟
取引態様:仲介  - 40412725
|
- スマートフォンで
この不動産会社を見る

|
- 提携サイト等より掲載されている物件情報につきましては、不動産会社詳細情報にリンクされていないものがあります。
- 物件に関するお問合せは、物件詳細ページの「情報提供会社」に表示されている不動産会社へ直接お願いいたします。
- 間取図は、現況を優先させていただきます。
- 映像は物件の一部を撮影したものです。物件の契約にあたっての最終判断はご自身の判断に基づいて行ってください。
- 仲介手数料について

アットホームは物件情報の適正化に努めております。
内容に誤りがある場合にはこちらへご連絡ください。