神奈川県横浜市港北区大豆戸町(新横浜駅)の賃貸:物件詳細
交通 所在地 |
駅徒歩 |
賃料 管理費等 |
敷金/保証金 礼金 |
間取り 面積 |
物件種目 築年月 |
|
JR横浜線/新横浜
神奈川県横浜市港北区大豆戸町
|
10分
|
8万円
7,000円
|
なし / なし
1ヶ月
|
1K
20.44m²
|
賃貸マンション
2008年5月(築17年11ヶ月)
|
角部屋、2面採光、保証人不要
|
|
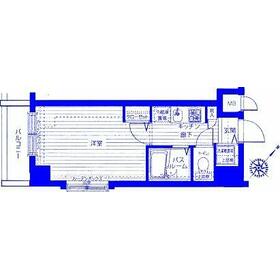
間取図
【女性のお一人暮らしでも安心のセキュリティ♪】
|
外観
【女性のお一人暮らしでも安心のセキュリティ♪】
|
<
その他の画像
>
|
| 交通 | JR横浜線 新横浜駅 徒歩10分 |
|---|
| その他の交通 | 東急東横線 菊名駅 徒歩15分 ブルーライン 北新横浜駅 徒歩17分 |
| 所在地 |
神奈川県横浜市港北区大豆戸町
|
| 物件種目 |
賃貸マンション |
| 賃料 |
8万円 |
管理費等 |
7,000円 |
| 敷金 / 保証金 |
なし / なし |
礼金 |
1ヶ月 |
| 敷引 |
- |
保証金償却 |
- |
| その他一時金 |
なし |
保険等 |
要 |
| 維持費等 |
- |
クレジットカード決済 |
初期費用可 |
| 間取り |
1K(洋6.1) |
専有面積 |
20.44m² |
| 築年月 |
2008年5月(築17年11ヶ月)
|
階建 / 階 |
地上7階地下1階建 / 5階 |
| 建物構造 |
RC |
総戸数 |
- |
| 主要採光面 |
南西 |
駐車場 |
- |
| バイク置き場 |
- |
駐輪場 |
有 |
| 建物名・部屋番号 |
フェニックス新横濱エオール |
ペット |
-
|
| リフォーム履歴 |
- |
| リノベーション履歴 |
- |
| 備考 |
賃貸保証等:加入要(初回総賃料50%、総賃料1%/月額)
管理形態/管理員の勤務形態:-/-
鍵交換費:33000円/24Hサポート:16500円/抗菌代:16500円/書類作成費:11000円
|
| エネルギー消費性能 |
- |
| 断熱性能 |
- |
| 目安光熱費 |
- |
| バス・トイレ |
バス・トイレ別、浴室乾燥機、オートバス、追焚機能、温水洗浄便座、トイレ |
| キッチン |
システムキッチン、2口コンロ、ガスコンロ可 |
| セキュリティー |
モニター付オートロック、オートロック、モニター付インターホン、ディンプルキー、ダブルロックドア、防犯カメラ |
| 収納 |
収納スペース、クローゼット、シューズボックス |
| 設備・サービス |
室内洗濯機置場、洗濯機置場、全居室フローリング、フローリング、都市ガス、エアコン、照明器具 |
| TV・通信 |
インターネット対応、CS、BS端子 |
| その他 |
宅配BOX、バルコニー、駐輪場、エレベーター |
| 契約期間 |
2年 |
現況 |
居住中 |
| 条件等 |
- |
入居可能時期 |
相談 |
| 更新料 |
- |
物件番号 |
1167537822 |
| 情報公開日 |
2026年3月10日 |
次回更新予定日 |
2026年3月24日 |
| ケータイ用バーコード |
- スマートフォンでこの物件を見る
- スマートフォンからもこの物件をご覧になれます。
|
※「-」と表示されている項目については、情報提供会社にご確認ください。
| 周辺施設 |
横浜アリーナ |
| 距離 |
329m |
写真を見る |
| 周辺施設 |
ウエルシア横浜大豆戸店 |
| 距離 |
656m |
写真を見る |
| 周辺施設 |
新横浜駅前飲食店 |
| 距離 |
847m |
写真を見る |
| 周辺施設 |
キュービックプラザ新横浜 |
| 距離 |
953m |
写真を見る |
| 周辺施設 |
オリンピック 大倉山店 |
| 距離 |
1186m |
写真を見る |
ここから簡単にお問い合わせをすることができます。
(SSLでの暗号化での送信を希望されるお客さまは
こちら
よりお問い合わせください)
お問い合わせを行う前に
「個人情報の取り扱いについて」を必ずお読みください。
「個人情報の取り扱いについて」に同意いただいた場合は「上記にご同意の上 確認画面へ進む」のボタンをクリックしてください。
個人情報の取り扱いについて
皆さまが送付された個人情報はアットホーム(株)のサーバを経由し、お問い合わせ先の不動産会社にメールまたはFAXにて転送されるためアットホーム(株)にも保管されます。アットホーム(株)で保管された個人情報の取り扱いについては、【こちら】をご覧ください。
また、本画面でご記入いただいた個人情報は、お問い合わせ先の不動産会社でも保管します。 お問い合わせ先の不動産会社が保管する個人情報の取り扱いについては、不動産会社に直接お問い合わせください。
神奈川県知事免許(1)第31917号 |
|---|
- 交通:
- 東急東横線/横浜駅 徒歩5分
- 神奈川県横浜市西区北幸2丁目10-48 むつみビル5F
- TEL:
- 045-900-3251
- 所属団体:
- (公社)全日本不動産協会会員(公社)首都圏不動産公正取引協議会加盟
取引態様:仲介  - 00274611
|
- スマートフォンで
この不動産会社を見る

|
- 提携サイト等より掲載されている物件情報につきましては、不動産会社詳細情報にリンクされていないものがあります。
- 物件に関するお問合せは、物件詳細ページの「情報提供会社」に表示されている不動産会社へ直接お願いいたします。
- 間取図は、現況を優先させていただきます。
- 映像は物件の一部を撮影したものです。物件の契約にあたっての最終判断はご自身の判断に基づいて行ってください。
- 仲介手数料について

アットホームは物件情報の適正化に努めております。
内容に誤りがある場合にはこちらへご連絡ください。