大阪府大阪市西区本田1丁目(西長堀駅)の賃貸:物件詳細
交通 所在地 |
駅徒歩 |
賃料 管理費等 |
敷金/保証金 礼金 |
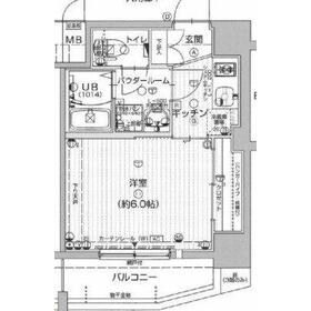
間取り 面積 |
物件種目 築年月 |
|
地下鉄長堀鶴見緑地線/西長堀
大阪府大阪市西区本田1丁目
|
7分
|
5.9万円
8,000円
|
なし / なし
1ヶ月
|
1K
23.49m²
|
賃貸マンション
2019年1月(築7年)
|
ペット相談、デザイナーズ、分譲タイプ、常時ゴミ出し可能、高齢者相談、24時間セキュリティー、24時間換気システム、バリアフリー、閑静な住宅街、IT重説対応物件
|
|
間取図
|
外観
|
<
その他の画像
>
|
| 交通 | 地下鉄長堀鶴見緑地線 西長堀駅 徒歩7分 |
|---|
| その他の交通 | 地下鉄千日前線 西長堀駅 徒歩7分 地下鉄中央線 九条駅 徒歩7分 |
| 所在地 |
大阪府大阪市西区本田1丁目
|
| 物件種目 |
賃貸マンション |
| 賃料 |
5.9万円 |
管理費等 |
8,000円 |
| 敷金 / 保証金 |
なし / なし |
礼金 |
1ヶ月 |
| 敷引 |
- |
保証金償却 |
- |
| その他一時金 |
エアコンクリーニング:22,000円、室内清掃費用:44,000円、鍵交換代等:38,500円~ |
保険等 |
要 2年 23,100円 |
| 維持費等 |
- |
| 間取り |
1K(洋6) |
専有面積 |
23.49m² |
| 築年月 |
2019年1月(築7年)
|
階建 / 階 |
14階建 / 9階 |
| 建物構造 |
RC |
総戸数 |
- |
| 主要採光面 |
南西 |
駐車場 |
近有 25,000円/月 |
| バイク置き場 |
- |
駐輪場 |
有 |
| 建物名・部屋番号 |
|
ペット |
相談 |
| リフォーム履歴 |
- |
| リノベーション履歴 |
- |
| 備考 |
賃貸保証等:加入要(【初回】総賃料の50% 【更新(2年)】総賃料の30% 【初回】総賃料の50% (学生は10,000円) 【更新(2年)】総賃料の30% (学生は10,000円/年))
管理形態/管理員の勤務形態:-/巡回
IT重説対応物件、外壁コンクリート、管理人巡回
物件のお問い合わせはSumoSumoまで♪♪
短期解約違約金:半年未満:総賃料の2ヶ月分、1年未満:総賃料の1ヶ月分
SumoSumoのオススメ物件です♪室内を見て頂ければきっと気に入って頂けると思います♪♪
|
| エネルギー消費性能 |
- |
| 断熱性能 |
- |
| 目安光熱費 |
- |
| バス・トイレ |
バス・トイレ別、浴室乾燥機、高温差湯式、シャワー付洗面化粧台、洗面所独立、洗面所、洗面台、シャワー、温水洗浄便座、トイレ |
| キッチン |
システムキッチン、2口コンロ、ガスコンロ可 |
| セキュリティー |
モニター付オートロック、オートロック、モニター付インターホン、防犯カメラ |
| 収納 |
収納スペース、クローゼット、シューズボックス |
| 設備・サービス |
室内洗濯機置場、洗濯機置場、都市ガス給湯、給湯、フローリング、都市ガス、エアコン、冷房、人感センサー付照明 |
| TV・通信 |
インターネット対応、光ファイバー、CATVインターネット、ケーブルTV、CS、BS端子 |
| その他 |
宅配BOX、バルコニー、駐輪場、エレベーター |
| 契約期間 |
2年 |
現況 |
空家 |
| 条件等 |
- |
入居可能時期 |
相談 |
| 更新料 |
- |
物件番号 |
1167543816 |
| 情報公開日 |
2025年11月9日 |
次回更新予定日 |
2025年12月27日 |
| ケータイ用バーコード |
- スマートフォンでこの物件を見る
- スマートフォンからもこの物件をご覧になれます。
|
※「-」と表示されている項目については、情報提供会社にご確認ください。
| 周辺施設 |
C&Cエンド 九条店 |
| 距離 |
411m |
写真を見る |
| 周辺施設 |
mandai(万代) フレスポ阿波座店 |
| 距離 |
688m |
写真を見る |
| 周辺施設 |
ファミリーマート 本田みなと通店 |
| 距離 |
88m |
写真を見る |
| 周辺施設 |
セブンイレブン 大阪ナインモール九条店 |
| 距離 |
509m |
写真を見る |
| 周辺施設 |
薬マツモトキヨシ 九条店 |
| 距離 |
510m |
写真を見る |
| 周辺施設 |
大阪本田郵便局 |
| 距離 |
201m |
写真を見る |
ここから簡単にお問い合わせをすることができます。
(SSLでの暗号化での送信を希望されるお客さまは
こちら
よりお問い合わせください)
お問い合わせを行う前に
「個人情報の取り扱いについて」を必ずお読みください。
「個人情報の取り扱いについて」に同意いただいた場合は「上記にご同意の上 確認画面へ進む」のボタンをクリックしてください。
個人情報の取り扱いについて
皆さまが送付された個人情報はアットホーム(株)のサーバを経由し、お問い合わせ先の不動産会社にメールまたはFAXにて転送されるためアットホーム(株)にも保管されます。アットホーム(株)で保管された個人情報の取り扱いについては、【こちら】をご覧ください。
また、本画面でご記入いただいた個人情報は、お問い合わせ先の不動産会社でも保管します。 お問い合わせ先の不動産会社が保管する個人情報の取り扱いについては、不動産会社に直接お問い合わせください。
大阪府知事免許(1)第62697号 |
|---|
- 交通:
- 地下鉄御堂筋線/心斎橋駅 徒歩3分
- 大阪府大阪市中央区南船場3丁目3-23 中和船場ビル102号
- TEL:
- 06-4400-6315
- FAX:
- 06-6258-3116
- 所属団体:
- (公社)全日本不動産協会会員(公社)近畿地区不動産公正取引協議会加盟
取引態様:仲介  - 50105934
|
- スマートフォンで
この不動産会社を見る

|
- 提携サイト等より掲載されている物件情報につきましては、不動産会社詳細情報にリンクされていないものがあります。
- 物件に関するお問合せは、物件詳細ページの「情報提供会社」に表示されている不動産会社へ直接お願いいたします。
- 間取図は、現況を優先させていただきます。
- 映像は物件の一部を撮影したものです。物件の契約にあたっての最終判断はご自身の判断に基づいて行ってください。
- 仲介手数料について

アットホームは物件情報の適正化に努めております。
内容に誤りがある場合にはこちらへご連絡ください。