東京都江戸川区中葛西5丁目(葛西駅)の賃貸:物件詳細
交通 所在地 |
駅徒歩 |
賃料 管理費等 |
敷金/保証金 礼金 |
間取り 面積 |
物件種目 築年月 |
|
東京メトロ東西線/葛西
東京都江戸川区中葛西5丁目
|
4分
|
35万円
30,000円
|
1ヶ月 / なし
なし
|
4LDK
91.97m²
|
賃貸マンション
2026年2月
|
ペット相談、常時ゴミ出し可能、角部屋、高齢者相談、二人入居可、2面採光、24時間換気システム、保証人不要
|
|
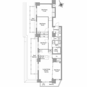
間取図
|
外観
落ち着いた雰囲気の外観です
|
その他の画像
|
| 交通 | 東京メトロ東西線 葛西駅 徒歩4分 |
|---|
| その他の交通 | 東京メトロ東西線 西葛西駅 徒歩15分 |
| 所在地 |
東京都江戸川区中葛西5丁目
|
| 物件種目 |
賃貸マンション |
| 賃料 |
35万円 |
管理費等 |
30,000円 |
| 敷金 / 保証金 |
1ヶ月 / なし |
礼金 |
なし |
| 敷引 |
- |
保証金償却 |
- |
| その他一時金 |
エアコン清掃費:55,000円、室内清掃費用:94,490円 |
保険等 |
要 2年 16,550円 |
| 維持費等 |
- |
| 間取り |
4LDK(LDK15.7、洋7.3、洋6、洋5.2、洋4.1) |
専有面積 |
91.97m² |
| 築年月 |
2026年2月
|
階建 / 階 |
7階建 / 6階 |
| 建物構造 |
RC |
総戸数 |
- |
| 主要採光面 |
南西 |
駐車場 |
近有 28,000円/月 |
| バイク置き場 |
有 |
駐輪場 |
有 |
| 建物名・部屋番号 |
コンフォリア中葛西 |
ペット |
相談 |
| アピールポイント |
室内設備は洗面所独立・浴室乾燥機・食器洗乾燥機など大変充実しております。収納はクロゼット・全居室収納など豊富なので、広々と空間を利用することも可能です。共用部にはゴミ出し24時間OK・宅配ボックスなどが揃っております。セキュリティ面は、オートロック・TVインターホンなど充実しているので、防犯対策もばっちりです。コンロやシンクが一体となっていてお手入れが簡単なシステムキッチンがります。建築面積91.97㎡の物件です。入居日指定令和8年3月の物件はココにございますので確認してみてくださいね。BS加入後すぐに視聴できるBS受信設備のある物件です。お部屋の広さに合った照明が付いています。敷地内ごみ置き場があるのとないのでは、利便性が全く違います。こちらの物件ではご相談次第でペットを飼うことができます。 |
| リフォーム履歴 |
- |
| リノベーション履歴 |
- |
| 備考 |
賃貸保証等:加入要(保証料:賃料等の50%(最低2万)、月額保証料:賃料等の1%(更新料無))
管理形態/管理員の勤務形態:-/-
収納はクロゼット・全居室収納など豊富なので、衣類や履き物の整理がしやすく便利です。室内設備は洗面所独立・浴室乾燥機・食器洗乾燥機など豊富に揃っており、過ごしやすいお部屋になっております。セキュリティ面は、TVインターホン・オートロックなどを備え付けているので安心して暮らせます。共用部にはゴミ出し24時間OK・宅配ボックスなどが揃っており、とても充実しています。友達同士で住むこともできる物件になっておりますので、ご相談ください。こちらは賃料35万円の物件です。外装もおしゃれで快適な生活をおくることができるマンションです。住み替えをご希望の方へこの物件は2026年3月の入居日指定物件です。入居してからペットの飼育を始めたい方は、事前にご相談ください。夏場の電気代も安く抑えられる通風良好で快適な物件です。入居者が安心して暮らしていただけるように、共用部に防犯カメラを備え付けております。
|
| エネルギー消費性能 |
- |
| 断熱性能 |
- |
| 目安光熱費 |
- |
| バス・トイレ |
バス・トイレ別、浴室乾燥機、追焚機能、洗面所独立、洗面所、温水洗浄便座、トイレ |
| キッチン |
システムキッチン、食器洗浄乾燥機、3口以上コンロ、グリル |
| セキュリティー |
モニター付オートロック、オートロック、モニター付インターホン、ディンプルキー、ダブルロックドア、防犯カメラ |
| 収納 |
全居室収納、ウォークインクローゼット、収納スペース、クローゼット |
| 設備・サービス |
全居室エアコン、床暖房、室内洗濯機置場、洗濯機置場、エアコン、暖房、冷房、照明器具 |
| TV・通信 |
インターネット対応、インターネット使用料無料、CS、BS端子 |
| その他 |
宅配BOX、バイク置き場、ルーフバルコニー、二面バルコニー、バルコニー、駐輪場、エレベーター |
| 契約期間 |
2年 |
現況 |
未完成 |
| 条件等 |
- |
入居可能時期 |
2026年3月上旬予定 |
| 更新料 |
新賃料 1ヶ月 |
物件番号 |
1167879519 |
| 情報公開日 |
2026年1月22日 |
次回更新予定日 |
2026年2月5日 |
| ケータイ用バーコード |
- スマートフォンでこの物件を見る
- スマートフォンからもこの物件をご覧になれます。
|
※「-」と表示されている項目については、情報提供会社にご確認ください。
| 周辺施設 |
まいばすけっと 東葛西6丁目店 |
| 距離 |
699m |
写真を見る |
| 周辺施設 |
オーケー 西葛西店 |
| 距離 |
1631m |
写真を見る |
| 周辺施設 |
ミニストップ 葛西店 |
| 距離 |
628m |
写真を見る |
| 周辺施設 |
ファミリーマート 東葛西七丁目店 |
| 距離 |
757m |
写真を見る |
| 周辺施設 |
江戸川東葛西六郵便局 |
| 距離 |
562m |
写真を見る |
ここから簡単にお問い合わせをすることができます。
(SSLでの暗号化での送信を希望されるお客さまは
こちら
よりお問い合わせください)
お問い合わせを行う前に
「個人情報の取り扱いについて」を必ずお読みください。
「個人情報の取り扱いについて」に同意いただいた場合は「上記にご同意の上 確認画面へ進む」のボタンをクリックしてください。
個人情報の取り扱いについて
皆さまが送付された個人情報はアットホーム(株)のサーバを経由し、お問い合わせ先の不動産会社にメールまたはFAXにて転送されるためアットホーム(株)にも保管されます。アットホーム(株)で保管された個人情報の取り扱いについては、【こちら】をご覧ください。
また、本画面でご記入いただいた個人情報は、お問い合わせ先の不動産会社でも保管します。 お問い合わせ先の不動産会社が保管する個人情報の取り扱いについては、不動産会社に直接お問い合わせください。
東京都知事免許(1)第107337号 |
|---|
- 交通:
- JR山手線/新橋駅 徒歩5分
- 東京都中央区銀座8丁目11-1 GINZA GS BLD.2 7階
- TEL:
- 03-6281-4770
- FAX:
- 03-6281-4771
- 所属団体:
- (公社)東京都宅地建物取引業協会会員(公社)首都圏不動産公正取引協議会加盟
取引態様:仲介  - 00271811
|
- スマートフォンで
この不動産会社を見る

|
- 提携サイト等より掲載されている物件情報につきましては、不動産会社詳細情報にリンクされていないものがあります。
- 物件に関するお問合せは、物件詳細ページの「情報提供会社」に表示されている不動産会社へ直接お願いいたします。
- 間取図は、現況を優先させていただきます。
- 映像は物件の一部を撮影したものです。物件の契約にあたっての最終判断はご自身の判断に基づいて行ってください。
- 仲介手数料について

アットホームは物件情報の適正化に努めております。
内容に誤りがある場合にはこちらへご連絡ください。