東京都大田区多摩川1丁目(矢口渡駅)の賃貸:物件詳細
交通 所在地 |
駅徒歩 |
賃料 管理費等 |
敷金/保証金 礼金 |
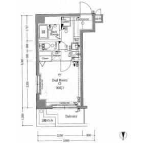
間取り 面積 |
物件種目 築年月 |
|
東急多摩川線/矢口渡
東京都大田区多摩川1丁目
|
3分
|
7.6万円
8,000円
|
1ヶ月 / なし
1ヶ月
|
1K
20.30m²
|
賃貸マンション
2006年5月(築19年7ヶ月)
|
分譲タイプ、角部屋、最上階、2面採光、保証人不要
|
|
間取図
|
外観
|
<
その他の画像
>
|
| 交通 | 東急多摩川線 矢口渡駅 徒歩3分 |
|---|
| その他の交通 | 東急池上線 蓮沼駅 徒歩11分 東急多摩川線 武蔵新田駅 徒歩14分 |
| 所在地 |
東京都大田区多摩川1丁目
|
| 物件種目 |
賃貸マンション |
| 賃料 |
7.6万円 |
管理費等 |
8,000円 |
| 敷金 / 保証金 |
1ヶ月 / なし |
礼金 |
1ヶ月 |
| 敷引 |
- |
保証金償却 |
- |
| その他一時金 |
SYLAプレミアムクラブ:24,200円、室内清掃費用:52,800円、鍵交換代等:33,000円~ |
保険等 |
要 2年 20,000円 |
| 維持費等 |
- |
| 間取り |
1K(洋6) |
専有面積 |
20.30m² |
| 築年月 |
2006年5月(築19年7ヶ月)
|
階建 / 階 |
6階建 / 6階 |
| 建物構造 |
RC |
総戸数 |
- |
| 主要採光面 |
北 |
駐車場 |
- |
| バイク置き場 |
- |
駐輪場 |
- |
| 建物名・部屋番号 |
ヴォーガコルテ多摩川 601 |
ペット |
-
|
| リフォーム履歴 |
- |
| リノベーション履歴 |
- |
| 備考 |
賃貸保証等:加入要(エルズサポート 初回50%、月額保証料700円、月額事務手数料330円~外国籍の方:エポスGTNを利用。初回保証料60%、月額保証料2%、年間保証料無し)
管理形態/管理員の勤務形態:-/-
バルコニー:3.08m²
ビジネスパーソンや学生さんにオススメ。充実設備の駅近分譲賃貸マンションです。
◆お申込時、当社が運営するサービス「利回りくん」にも申込情報が登録されます。入居後、本登録を行う事ですぐにサービスを利用する事ができます。※本サービスの登録は無料です。
◆共用部お問い合わせ先:株式会社ライフポート西洋(電話番号はお調べください)
◆内見開始日前の申込:先行契約のみ申込可
|
| エネルギー消費性能 |
- |
| 断熱性能 |
- |
| 目安光熱費 |
- |
| バス・トイレ |
バス・トイレ別、浴室乾燥機、洗面台、温水洗浄便座、トイレ |
| キッチン |
システムキッチン、2口コンロ、ガスコンロ可 |
| セキュリティー |
オートロック、防犯カメラ |
| 収納 |
収納スペース、クローゼット、シューズボックス |
| 設備・サービス |
室内洗濯機置場、洗濯機置場、フローリング、都市ガス、エアコン |
| TV・通信 |
インターネット対応、ケーブルTV |
| その他 |
宅配BOX、バルコニー、エレベーター |
| 契約期間 |
2年 |
現況 |
居住中 |
| 条件等 |
- |
入居可能時期 |
2026年1月中旬予定 |
| 更新料 |
新賃料 1ヶ月 |
物件番号 |
1168059013 |
| 情報公開日 |
2025年11月5日 |
次回更新予定日 |
2025年11月19日 |
| ケータイ用バーコード |
- スマートフォンでこの物件を見る
- スマートフォンからもこの物件をご覧になれます。
|
※「-」と表示されている項目については、情報提供会社にご確認ください。
ここから簡単にお問い合わせをすることができます。
(SSLでの暗号化での送信を希望されるお客さまは
こちら
よりお問い合わせください)
お問い合わせを行う前に
「個人情報の取り扱いについて」を必ずお読みください。
「個人情報の取り扱いについて」に同意いただいた場合は「上記にご同意の上 確認画面へ進む」のボタンをクリックしてください。
個人情報の取り扱いについて
皆さまが送付された個人情報はアットホーム(株)のサーバを経由し、お問い合わせ先の不動産会社にメールまたはFAXにて転送されるためアットホーム(株)にも保管されます。アットホーム(株)で保管された個人情報の取り扱いについては、【こちら】をご覧ください。
また、本画面でご記入いただいた個人情報は、お問い合わせ先の不動産会社でも保管します。 お問い合わせ先の不動産会社が保管する個人情報の取り扱いについては、不動産会社に直接お問い合わせください。
(株)シーラ国土交通大臣免許(2)第9715号 |
|---|
- 交通:
- JR山手線/恵比寿駅 徒歩6分
- 東京都渋谷区広尾1丁目1-39 恵比寿プライムスクエア7階
- TEL:
- 03-4560-0653
- FAX:
- 03-4560-0660
- 所属団体:
- (公社)東京都宅地建物取引業協会会員(公社)首都圏不動産公正取引協議会加盟
取引態様:代理 |
- 提携サイト等より掲載されている物件情報につきましては、不動産会社詳細情報にリンクされていないものがあります。
- 物件に関するお問合せは、物件詳細ページの「情報提供会社」に表示されている不動産会社へ直接お願いいたします。
- 間取図は、現況を優先させていただきます。
- 映像は物件の一部を撮影したものです。物件の契約にあたっての最終判断はご自身の判断に基づいて行ってください。
- 仲介手数料について

アットホームは物件情報の適正化に努めております。
内容に誤りがある場合にはこちらへご連絡ください。