神奈川県川崎市幸区幸町3丁目(京急川崎駅)の賃貸:物件詳細
交通 所在地 |
駅徒歩 |
賃料 管理費等 |
敷金/保証金 礼金 |
間取り 面積 |
物件種目 築年月 |
|
京急本線/京急川崎
神奈川県川崎市幸区幸町3丁目
|
10分
|
8万円
12,000円
|
なし / なし
2ヶ月
|
1K
20.93m²
|
賃貸マンション
2007年5月(築18年8ヶ月)
|
ペット相談、分譲タイプ、常時ゴミ出し可能、二人入居可、24時間セキュリティー、24時間換気システム
|
|
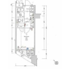
間取図
|
外観
|
<
その他の画像
>
|
| 交通 | 京急本線 京急川崎駅 徒歩10分 |
|---|
| その他の交通 | JR東海道本線 川崎駅 徒歩14分 京急本線 六郷土手駅 徒歩22分 |
| 所在地 |
神奈川県川崎市幸区幸町3丁目
|
| 物件種目 |
賃貸マンション |
| 賃料 |
8万円 |
管理費等 |
12,000円 |
| 敷金 / 保証金 |
なし / なし |
礼金 |
2ヶ月 |
| 敷引 |
- |
保証金償却 |
- |
| その他一時金 |
契約事務手数料:11,000円、退去時 クリーニング費用:49,500円、退去時 鍵交換費用:23,100円、退去時 エアコン内部清掃:16,500円 |
保険等 |
要 |
| 維持費等 |
ヴァリエンテあんしんサポートクラブ:1,700円/月 |
| 間取り |
1K(洋6.3) |
専有面積 |
20.93m² |
| 築年月 |
2007年5月(築18年8ヶ月)
|
階建 / 階 |
10階建 / 9階 |
| 建物構造 |
RC |
総戸数 |
- |
| 主要採光面 |
|
駐車場 |
近有 22,000円/月 |
| バイク置き場 |
有 |
駐輪場 |
有 |
| 建物名・部屋番号 |
アルテシモ ヴィスタ |
ペット |
相談 |
| アピールポイント |
室内設備はBS・システムキッチン・エアコンなど豊富に揃っており、過ごしやすいお部屋になっております。共用部には宅配ボックス・ゴミ出し24時間OKなどが揃っており、とても充実しています。セキュリティ面は、オートロック・TVインターホンなどを設置しているので安全面でも優れております。収納はシューズボックス・クロゼットなど豊富なので、広々と空間を利用することも可能です。全居室フローリングが魅力的な物件となっています。綺麗好きの方は一度見て下さい。2026年2月に入居可能のいい物件ありますよ。駐輪場付きの物件です。この物件はバルコニー付きで、用途に合わせて利用できます。駐車場料金は、月額22000円です。入居者に安心して暮らしていただけるように、建物の共用部に防犯カメラが付いています。今ニーズが高まっているのが、照明付きのお部屋です。 |
| リフォーム履歴 |
- |
| リノベーション履歴 |
- |
| 備考 |
賃貸保証等:加入要(全保連 全保連(初回賃料等総額50%~)1年毎更新時1.5万円/外国籍の方ルームバンクインシュア(初回賃料等総額80%~) 月額保証料1,500円 共に口座振替手数料330円※初回保証料100%の場合)
管理形態/管理員の勤務形態:-/-
お部屋探しは横浜駅徒歩5分のみらい不動産にお任せください。
賃料発生日はお申込みから2週間以内になります(入居中の場合は退去後2週間以内でお願い致します)。ネット掲載全て可能です(確認不要)。鍵は1Rは1本渡しになります。1LDK以上は2本渡し(追加複製代3,300円)。図面はレインズからもご取得いただけます。属性等なんでもご相談下さい。
|
| エネルギー消費性能 |
- |
| 断熱性能 |
- |
| 目安光熱費 |
- |
| バス・トイレ |
バス・トイレ別、シャワー、温水洗浄便座、トイレ |
| キッチン |
システムキッチン、2口コンロ、ガスコンロ可 |
| セキュリティー |
モニター付オートロック、オートロック、モニター付インターホン、ディンプルキー、防犯カメラ |
| 収納 |
収納スペース、クローゼット、シューズボックス |
| 設備・サービス |
室内洗濯機置場、洗濯機置場、都市ガス給湯、給湯、全居室フローリング、フローリング、都市ガス、エアコン、照明器具 |
| TV・通信 |
インターネット対応、光ファイバー、ケーブルTV、CS、BS端子 |
| その他 |
宅配BOX、バイク置き場、バルコニー、駐輪場、エレベーター |
| 契約期間 |
2年 |
現況 |
居住中 |
| 条件等 |
- |
入居可能時期 |
2026年2月上旬予定 |
| 更新料 |
- |
物件番号 |
1168423316 |
| 情報公開日 |
2025年11月24日 |
次回更新予定日 |
2025年12月22日 |
| ケータイ用バーコード |
- スマートフォンでこの物件を見る
- スマートフォンからもこの物件をご覧になれます。
|
※「-」と表示されている項目については、情報提供会社にご確認ください。
| 周辺施設 |
ファミリーマート 川崎市役所店 |
| 距離 |
1122m |
写真を見る |
| 周辺施設 |
西友 川崎神明店 |
| 距離 |
1725m |
写真を見る |
| 周辺施設 |
ライフ川崎塚越店 |
| 距離 |
2073m |
写真を見る |
| 周辺施設 |
CIAL(シァル)鶴見 |
| 距離 |
4502m |
写真を見る |
| 周辺施設 |
夢庵 川崎殿町店 |
| 距離 |
4405m |
写真を見る |
ここから簡単にお問い合わせをすることができます。
(SSLでの暗号化での送信を希望されるお客さまは
こちら
よりお問い合わせください)
お問い合わせを行う前に
「個人情報の取り扱いについて」を必ずお読みください。
「個人情報の取り扱いについて」に同意いただいた場合は「上記にご同意の上 確認画面へ進む」のボタンをクリックしてください。
個人情報の取り扱いについて
皆さまが送付された個人情報はアットホーム(株)のサーバを経由し、お問い合わせ先の不動産会社にメールまたはFAXにて転送されるためアットホーム(株)にも保管されます。アットホーム(株)で保管された個人情報の取り扱いについては、【こちら】をご覧ください。
また、本画面でご記入いただいた個人情報は、お問い合わせ先の不動産会社でも保管します。 お問い合わせ先の不動産会社が保管する個人情報の取り扱いについては、不動産会社に直接お問い合わせください。
神奈川県知事免許(1)第31847号 |
|---|
- 交通:
- 東急東横線/横浜駅
- 神奈川県横浜市西区北幸2丁目10-42 寺内ビル9F
- TEL:
- 045-322-2552
- FAX:
- 045-322-2553
- 所属団体:
- (公社)神奈川県宅地建物取引業協会会員(公社)首都圏不動産公正取引協議会加盟
取引態様:仲介  - 00273956
|
- スマートフォンで
この不動産会社を見る

|
- 提携サイト等より掲載されている物件情報につきましては、不動産会社詳細情報にリンクされていないものがあります。
- 物件に関するお問合せは、物件詳細ページの「情報提供会社」に表示されている不動産会社へ直接お願いいたします。
- 間取図は、現況を優先させていただきます。
- 映像は物件の一部を撮影したものです。物件の契約にあたっての最終判断はご自身の判断に基づいて行ってください。
- 仲介手数料について

アットホームは物件情報の適正化に努めております。
内容に誤りがある場合にはこちらへご連絡ください。