不動産 賃貸 マンション等の住宅情報:埼玉住まい情報


兵庫県明石市藤江(西明石駅)の賃貸:物件詳細

  • 物件詳細
  • 情報の見方
  • 印刷用画面
交通
所在地
駅徒歩 賃料
管理費等
敷金/保証金
礼金
間取り
面積
物件種目
築年月

JR山陽本線/西明石

兵庫県明石市藤江

10分

8万円

5,000円

なし / なし

1ヶ月

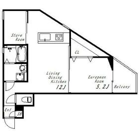
1LDK

43.62m²

賃貸アパート

2023年8月(築2年3ヶ月)

おすすめPOINT二人入居可

おすすめコメント

西明石徒歩10分の好立地!

間取図

間取図

外観

外観

<
その他の画像
  • トイレ
  • キッチン
  • リビング
  • バス/シャワー
  • 室内
  • 玄関
  • バルコニー
  • 洗面
  • 収納
  • その他
  • 設備
  • エントランス
  • 設備
  • 共有部分
  • 駐車場
  • リビング
  • 設備
  • 共有部分
  • その他
  • その他
  • その他
  • その他
  • その他
  • その他
  • その他
  • その他
  • その他
  • その他
  • その他
  • ショッピング施設
  • ショッピング施設
  • 小学校
  • ショッピング施設
  • 病院
  • ショッピング施設
  • ショッピング施設
  • ショッピング施設
>
    • とりあえず保存
    • お問い合わせ
    交通

    JR山陽本線 西明石駅 徒歩10分

    その他の交通

    山陽電鉄本線 藤江駅 徒歩15分

    JR山陽本線 大久保駅 徒歩25分

    所在地 兵庫県明石市藤江
    物件種目 賃貸アパート
    賃料 8万円 管理費等 5,000円
    敷金 / 保証金 なし / なし 礼金 1ヶ月
    敷引 保証金償却
    その他一時金 鍵交換代:22,000円 保険等 要 2年 20,000円
    維持費等 安心入居サポート:880円/月、町会費:300円/月 クレジットカード決済 初期費用可
    間取り 1LDK 専有面積 43.62m²
    築年月 2023年8月(築2年3ヶ月) 階建 / 階 3階建 / 1階
    建物構造 木造 総戸数
    主要採光面 北西 駐車場
    バイク置き場 駐輪場
    建物名・部屋番号 コティ西明石Ⅰ ペット
    アピールポイント 物件情報ページをご覧いただき誠にありがとうございます!インターネットで募集中の物件は全て弊社でご紹介可能です!もちろんまとめてご案内も可能です!また、他社様でご紹介されている物件も弊社でご紹介の場合、様々な交渉が可能な物件も多数ございます。お問い合わせは【TEL:078-855-9599】 までお電話ください!※当日のご内見予約も可能!是非、ピタットハウス垂水店へお越しください!
    リフォーム履歴
    リノベーション履歴
    備考
    賃貸保証等:加入要(・オリコフォレント 初回50% 月1.2%手数料 更新料10,000円/1年更新)
    管理形態/管理員の勤務形態:-/-
    エネルギー消費性能
    断熱性能
    目安光熱費
    バス・トイレ バス・トイレ別、浴室暖房、浴室乾燥機、追焚機能、洗面所独立、洗面台、シャワー、温水洗浄便座、トイレ
    キッチン カウンターキッチン、システムキッチン、IHクッキングヒーター、3口以上コンロ
    セキュリティー オートロック、モニター付インターホン
    収納 収納スペース、クローゼット、シューズボックス
    設備・サービス 室内洗濯機置場、給湯、全居室フローリング、フローリング、エアコン
    TV・通信 インターネット対応、インターネット使用料無料
    その他 バルコニー
    契約期間 2年 現況 空家
    条件等 入居可能時期 相談
    更新料 物件番号 1168806611
    情報公開日 2025年9月27日 次回更新予定日 2025年10月12日
    ケータイ用バーコード

    QRコード

    スマートフォンでこの物件を見る
    スマートフォンからもこの物件をご覧になれます。
    ※「-」と表示されている項目については、情報提供会社にご確認ください。

    この物件の周辺情報

    周辺施設 TSUTAYA 西明石店
    距離 256m
    周辺施設 マックスバリュ 西明石南店
    距離 976m
    周辺施設 明石市立藤江小学校
    距離 1651m
    周辺施設 マルアイ 王塚台店
    距離 1886m
    周辺施設 山本内科医院
    距離 1950m
    周辺施設 トーホーストア大久保駅前店
    距離 2074m
    周辺施設 マルアイ 貴崎店
    距離 2379m
    周辺施設 トーホーストア 玉津店
    距離 2550m

    クイックお問い合わせ

    ここから簡単にお問い合わせをすることができます。
    (SSLでの暗号化での送信を希望されるお客さまは こちら よりお問い合わせください)

    お問い合わせ内容(必須)
    お名前(必須) 姓  名 
    メールアドレス(必須)
    ※携帯電話のメールアドレスをご入力される方はこちらをご確認ください
    電話番号(必須)
    - -

    ※入力いただいた電話番号へSMSまたは音声でパスワードをご連絡します。

    携帯電話の番号をご入力の方へ

    携帯電話の番号をご入力の方へ
    確認画面にて送信ボタンをクリックするとSMSが携帯電話に届きます。
    そのSMSに記載のパスワード(認証番号)を入力し、お問い合わせを完了してください。
    尚、SMSの送信者番号は 0005 202 760 となります。
    これはアットホームの固定番号です。

    備考欄 希望条件、物件案内希望日、質問などがございましたらご記入ください。
    お問い合わせを行う前に「個人情報の取り扱いについて」を必ずお読みください。
    「個人情報の取り扱いについて」に同意いただいた場合は「上記にご同意の上 確認画面へ進む」のボタンをクリックしてください。

    個人情報の取り扱いについて

    皆さまが送付された個人情報はアットホーム(株)のサーバを経由し、お問い合わせ先の不動産会社にメールまたはFAXにて転送されるためアットホーム(株)にも保管されます。アットホーム(株)で保管された個人情報の取り扱いについては、【こちら】をご覧ください。
    また、本画面でご記入いただいた個人情報は、お問い合わせ先の不動産会社でも保管します。 お問い合わせ先の不動産会社が保管する個人情報の取り扱いについては、不動産会社に直接お問い合わせください。

    情報提供会社

    情報提供会社

    ピタットハウス垂水店 (株)ライブデザイン兵庫

    兵庫県知事免許(1)第12246号

    交通:
    JR山陽本線/垂水駅 徒歩2分
    兵庫県神戸市垂水区宮本町3-13 
    TEL:
    078-855-9599
    所属団体:
    (公社)全日本不動産協会会員
    (公社)近畿地区不動産公正取引協議会加盟

    取引態様:仲介

    • 会社情報
    • 50106497
    スマートフォンで
    この不動産会社を見る
    QRコード
    • とりあえず保存
    • お問い合わせ
    • 提携サイト等より掲載されている物件情報につきましては、不動産会社詳細情報にリンクされていないものがあります。
    • 物件に関するお問合せは、物件詳細ページの「情報提供会社」に表示されている不動産会社へ直接お願いいたします。
    • 間取図は、現況を優先させていただきます。
    • 映像は物件の一部を撮影したものです。物件の契約にあたっての最終判断はご自身の判断に基づいて行ってください。
    • 仲介手数料について仲介手数料

    アットホームは物件情報の適正化に努めております。 内容に誤りがある場合にはこちらへご連絡ください。

    【埼玉住まい情報】では、日本全国の物件から賃貸マンションや賃貸アパート・賃貸一戸建て等の賃貸住宅情報、新築マンション・分譲マンションや中古マンション等の売買マンション情報、新築一戸建てや中古一戸建てなどの戸建住宅、 土地など、総合的な不動産住宅情報検索サービスを提供致します。
    【埼玉住まい情報】から、選りすぐりの不動産物件を探してみましょう。

    【免責事項】
    このコーナーの運営はアットホーム株式会社(https://www.athome.co.jp/)が行っています。
    このコーナーに掲載している物件情報は、「アットホーム不動産情報ネットワーク」に加盟する不動産会社等(情報提供元)から提供されています。信頼性の高い情報提供が行えるよう、最大限の努力をしておりますが、その内容を保証するものではありません。 利用者のみなさまと各情報提供元との取引に起因する損害および情報が掲載されたことに起因する損害等については、株式会社イーシティ埼玉、およびアットホームは一切責任を負いません。
    各物件情報の内容や画像等はすべて現況を優先させていただきます。
    お取引等(お取引の準備、資金調達等を含みます)の際には、内容や契約条件等について、各情報提供元より十分な説明を受け、ご自身でご確認の上、判断してください。
    このコーナーへの物件情報のご掲載、その他不動産業務ソリューション等についての不動産会社様のお問合せはこちらからお願いいたします。

    物件画像: