福岡県福岡市中央区荒戸1丁目(大濠公園駅)の賃貸:物件詳細
交通 所在地 |
駅徒歩 |
賃料 管理費等 |
敷金/保証金 礼金 |
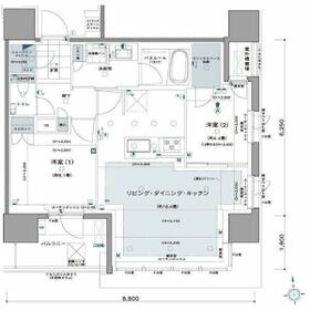
間取り 面積 |
物件種目 築年月 |
|
地下鉄空港線/大濠公園
福岡県福岡市中央区荒戸1丁目
|
2分
|
25万円
なし
|
なし / なし
2ヶ月
|
2LDK
61.77m²
|
賃貸マンション
2024年2月(築2年2ヶ月)
|
デザイナーズ、分譲タイプ、南向き、24時間換気システム
|
|
間取図
|
外観
|
<
その他の画像
>
|
| 交通 | 地下鉄空港線 大濠公園駅 徒歩2分 |
|---|
| その他の交通 | 地下鉄空港線 唐人町駅 徒歩10分 地下鉄空港線 赤坂駅 徒歩17分 |
| 所在地 |
福岡県福岡市中央区荒戸1丁目
|
| 物件種目 |
賃貸マンション |
| 賃料 |
25万円 |
管理費等 |
なし |
| 敷金 / 保証金 |
なし / なし |
礼金 |
2ヶ月 |
| 敷引 |
- |
保証金償却 |
- |
| その他一時金 |
なし |
保険等 |
要 |
| 維持費等 |
- |
| 間取り |
2LDK |
専有面積 |
61.77m² |
| 築年月 |
2024年2月(築2年2ヶ月)
|
階建 / 階 |
15階建 / 7階 |
| 建物構造 |
RC |
総戸数 |
- |
| 主要採光面 |
南 |
駐車場 |
有 30,000円/月 |
| バイク置き場 |
有 |
駐輪場 |
有 |
| 建物名・部屋番号 |
|
ペット |
-
|
| アピールポイント |
ぜひ一度見ていただきたい、「ザ・ライオンズ大濠公園」です。共用部には宅配ボックスが付いているため、家で何時間も待機する必要がありません。収納はクロゼット・シューズボックスなど豊富なので、広々と空間を利用することも可能です。室内設備は洗面化粧台・浴室乾燥機・食器洗乾燥機など充実した設備を備え付けています。セキュリティ面は、オートロック・TVインターホンなどを設置しているので安全面でも優れております。2LDKは圧迫感を感じさせず、広く開放的な空間を作り出してくれます。パーキングスペース利用料金30000円。新しいのでこだわりの多い方にもおすすめの築浅物件です。日々のお掃除も楽々な、フローリングのマンションとなっています。床暖房付き物件は風を送ることなく部屋を暖められるため喉を痛めにくくなります。設備条件が充実した月々25万円台のお部屋です。 |
| リフォーム履歴 |
- |
| リノベーション履歴 |
- |
| 備考 |
賃貸保証等:加入要(SEM保証【オリコによる審査・口座振替】・初回保証料:賃料合計の50%(最低保証料なし)・月額支払手数料:賃料合計の1.2%(変動費がある場合変動費含む合計の1.2%)更新料1年毎10,000円)
管理形態/管理員の勤務形態:-/-
室内設備は浴室乾燥機・洗面化粧台・食器洗乾燥機など充実した設備を備え付けています。収納はシューズボックス・クロゼットなどが備え付けられているので、衣類や日用品の収納に重宝します。セキュリティ面は、TVインターホン・オートロックなどを設置しているので安全面でも優れております。宅配ボックス付きですので時間を気にせず荷物受け取りができます。今なら1台空きがあります。付近にある2つの駅は、用途や行き先に応じて使い分けることができます。コンロとシンクの間に隙間がなく、掃除が簡単なためキッチンを綺麗に保ちやすいシステムキッチンがあります。風を出さずに部屋を暖める床暖房が付いているので、冬場の空気を乾燥させにくくなります。畳よりももちがよく、衛生的にも優れているフローリングの物件です。駐車場の空きがあるので、他で駐車場を契約する必要がありません。2024年2月完成、まだまだ新しい築浅物件。
|
| エネルギー消費性能 |
- |
| 断熱性能 |
- |
| 目安光熱費 |
- |
| バス・トイレ |
バス・トイレ別、浴室乾燥機、追焚機能、シャワー付洗面化粧台、洗面台、温水洗浄便座、トイレ |
| キッチン |
カウンターキッチン、システムキッチン、食器洗浄乾燥機、ディスポーザー、3口以上コンロ、ガスコンロ可、グリル |
| セキュリティー |
モニター付オートロック、オートロック、モニター付インターホン、ダブルロックドア、防犯カメラ |
| 収納 |
ウォークインクローゼット、収納スペース、シューズインクローゼット、クローゼット、シューズボックス |
| 設備・サービス |
床暖房、室内洗濯機置場、洗濯機置場、都市ガス給湯、給湯、フローリング、都市ガス、エアコン、暖房、複層ガラス |
| TV・通信 |
インターネット対応、インターネット使用料無料 |
| その他 |
宅配BOX、バイク置き場、バルコニー、駐輪場、エレベーター |
| 契約期間 |
4年 |
現況 |
空家 |
| 条件等 |
定期借家 |
入居可能時期 |
即時 |
| 更新料 |
- |
物件番号 |
1168996722 |
| 情報公開日 |
2026年3月12日 |
次回更新予定日 |
2026年3月26日 |
| ケータイ用バーコード |
- スマートフォンでこの物件を見る
- スマートフォンからもこの物件をご覧になれます。
|
※「-」と表示されている項目については、情報提供会社にご確認ください。
| 周辺施設 |
西南学院中学校・高等学校 |
| 距離 |
2178m |
写真を見る |
| 周辺施設 |
大村美容ファッション専門学校4号館 |
| 距離 |
716m |
写真を見る |
| 周辺施設 |
大村美容ファッション専門学校 OMULA |
| 距離 |
707m |
写真を見る |
| 周辺施設 |
香蘭ファッションデザイン専門学校 |
| 距離 |
670m |
写真を見る |
| 周辺施設 |
西日本短期大学 |
| 距離 |
1631m |
写真を見る |
ここから簡単にお問い合わせをすることができます。
(SSLでの暗号化での送信を希望されるお客さまは
こちら
よりお問い合わせください)
お問い合わせを行う前に
「個人情報の取り扱いについて」を必ずお読みください。
「個人情報の取り扱いについて」に同意いただいた場合は「上記にご同意の上 確認画面へ進む」のボタンをクリックしてください。
個人情報の取り扱いについて
皆さまが送付された個人情報はアットホーム(株)のサーバを経由し、お問い合わせ先の不動産会社にメールまたはFAXにて転送されるためアットホーム(株)にも保管されます。アットホーム(株)で保管された個人情報の取り扱いについては、【こちら】をご覧ください。
また、本画面でご記入いただいた個人情報は、お問い合わせ先の不動産会社でも保管します。 お問い合わせ先の不動産会社が保管する個人情報の取り扱いについては、不動産会社に直接お問い合わせください。
福岡県知事免許(1)第20509号 |
|---|
- 交通:
- JR鹿児島本線/博多駅 徒歩1分
- 福岡県福岡市博多区博多駅中央街5-11 第13泰平ビル3F
- TEL:
- 092-409-2698
- 所属団体:
- (公社)福岡県宅地建物取引業協会会員(一社)九州不動産公正取引協議会加盟
取引態様:仲介  - 80508759
|
- スマートフォンで
この不動産会社を見る

|
- 提携サイト等より掲載されている物件情報につきましては、不動産会社詳細情報にリンクされていないものがあります。
- 物件に関するお問合せは、物件詳細ページの「情報提供会社」に表示されている不動産会社へ直接お願いいたします。
- 間取図は、現況を優先させていただきます。
- 映像は物件の一部を撮影したものです。物件の契約にあたっての最終判断はご自身の判断に基づいて行ってください。
- 仲介手数料について

アットホームは物件情報の適正化に努めております。
内容に誤りがある場合にはこちらへご連絡ください。