東京都大田区北千束2丁目(洗足駅)の賃貸:物件詳細
交通 所在地 |
駅徒歩 |
賃料 管理費等 |
敷金/保証金 礼金 |
間取り 面積 |
物件種目 築年月 |
|
東急目黒線/洗足
東京都大田区北千束2丁目
|
5分
|
28.5万円
15,000円
|
1ヶ月 / なし
なし
|
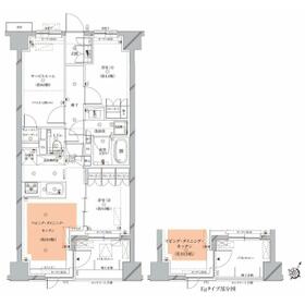
2SLDK
57.03m²
|
賃貸マンション
2020年2月(築6年2ヶ月)
|
ペット相談、常時ゴミ出し可能、二人入居可、24時間換気システム、保証人不要
|
|
間取図
|
外観
|
<
その他の画像
>
|
| 交通 | 東急目黒線 洗足駅 徒歩5分 |
|---|
| その他の交通 | 東急大井町線 北千束駅 徒歩5分 東急池上線 長原駅 徒歩9分 |
| 所在地 |
東京都大田区北千束2丁目
|
| 物件種目 |
賃貸マンション |
| 賃料 |
28.5万円 |
管理費等 |
15,000円 |
| 敷金 / 保証金 |
1ヶ月 / なし |
礼金 |
なし |
| 敷引 |
- |
保証金償却 |
- |
| その他一時金 |
室内清掃費用:87,826円、鍵交換代等:44,000円~ |
保険等 |
要 2年 20,000円 |
| 維持費等 |
- |
クレジットカード決済 |
初期費用可 |
| 間取り |
2SLDK |
専有面積 |
57.03m² |
| 築年月 |
2020年2月(築6年2ヶ月)
|
階建 / 階 |
7階建 / 2階 |
| 建物構造 |
RC |
総戸数 |
- |
| 主要採光面 |
南東 |
駐車場 |
近有 44,000円/月 |
| バイク置き場 |
- |
駐輪場 |
- |
| 建物名・部屋番号 |
|
ペット |
相談 |
| アピールポイント |
~ご希望条件以外からもお引越しのご理由に沿った物件をご提案させて頂きます~
賃貸仲介に特化した10年以上のスタッフが様々な角度で考え、同じ気持ちで物件をお探し
してまいります。
(1) ご希望条件、現在のご状況からご希望物件を具体化
(2) 掲載前の新着情報のご提案
(3) ネット掲載物件もまとめてご見学手配
(4) 現地待ち合わせ、現地解散
(5) 審査の通し方、物件の1番手確保
(6) クレジット決済対応
(7) マンション指定の空き待ち予約
(8) 仲介手数料無料査定 |
| リフォーム履歴 |
- |
| リノベーション履歴 |
- |
| 備考 |
賃貸保証等:加入要(初回保証料賃料総額50%、2年目以降10,000円/年)
管理形態/管理員の勤務形態:-/巡回
管理人巡回
◇初期費用クレジット決済可能◇未掲載物件多数でネット上の物件は一括でご紹介可能◇審査・交渉に強い◇キャリア10年以上のスタッフがご対応させて頂きますのでお任せくださいませ
|
| エネルギー消費性能 |
- |
| 断熱性能 |
- |
| 目安光熱費 |
- |
| バス・トイレ |
バス・トイレ別、浴室乾燥機、追焚機能、洗面所独立、洗面所、シャワー、温水洗浄便座、トイレ |
| キッチン |
カウンターキッチン、システムキッチン、食器洗浄乾燥機、浄水器、3口以上コンロ、ガスコンロ可、グリル |
| セキュリティー |
モニター付オートロック、オートロック、モニター付インターホン、防犯カメラ |
| 収納 |
全居室収納、収納スペース、クローゼット、シューズボックス |
| 設備・サービス |
床暖房、室内洗濯機置場、洗濯機置場、都市ガス給湯、給湯、全居室フローリング、フローリング、都市ガス、エアコン、暖房、冷房、ダウンライト、照明器具 |
| TV・通信 |
インターネット対応、光ファイバー、ケーブルTV、CS、BS端子 |
| その他 |
宅配BOX、バルコニー、エレベーター |
| 契約期間 |
2年 |
現況 |
居住中 |
| 条件等 |
定期借家 |
入居可能時期 |
相談 |
| 更新料 |
- |
物件番号 |
1169454622 |
| 情報公開日 |
2026年3月12日 |
次回更新予定日 |
2026年3月26日 |
| ケータイ用バーコード |
- スマートフォンでこの物件を見る
- スマートフォンからもこの物件をご覧になれます。
|
※「-」と表示されている項目については、情報提供会社にご確認ください。
| 周辺施設 |
まいばすけっと 北千束駅前店 |
| 距離 |
375m |
写真を見る |
| 周辺施設 |
ナチュラルローソン 北千束駅前店 |
| 距離 |
386m |
写真を見る |
| 周辺施設 |
トモズ 洗足駅前店 |
| 距離 |
394m |
写真を見る |
| 周辺施設 |
品川洗足郵便局 |
| 距離 |
311m |
写真を見る |
| 周辺施設 |
ドトールコーヒーショップ 洗足駅前店 |
| 距離 |
391m |
写真を見る |
ここから簡単にお問い合わせをすることができます。
(SSLでの暗号化での送信を希望されるお客さまは
こちら
よりお問い合わせください)
お問い合わせを行う前に
「個人情報の取り扱いについて」を必ずお読みください。
「個人情報の取り扱いについて」に同意いただいた場合は「上記にご同意の上 確認画面へ進む」のボタンをクリックしてください。
個人情報の取り扱いについて
皆さまが送付された個人情報はアットホーム(株)のサーバを経由し、お問い合わせ先の不動産会社にメールまたはFAXにて転送されるためアットホーム(株)にも保管されます。アットホーム(株)で保管された個人情報の取り扱いについては、【こちら】をご覧ください。
また、本画面でご記入いただいた個人情報は、お問い合わせ先の不動産会社でも保管します。 お問い合わせ先の不動産会社が保管する個人情報の取り扱いについては、不動産会社に直接お問い合わせください。
東京都知事免許(1)第108479号 |
|---|
- 交通:
- 東京メトロ銀座線/青山一丁目駅 徒歩2分
- 東京都港区南青山2丁目2-8 DFビル5階
- TEL:
- 03-6823-8826
- 所属団体:
- (公社)全日本不動産協会会員(公社)首都圏不動産公正取引協議会加盟
取引態様:仲介  - 00273636
|
- スマートフォンで
この不動産会社を見る

|
- 提携サイト等より掲載されている物件情報につきましては、不動産会社詳細情報にリンクされていないものがあります。
- 物件に関するお問合せは、物件詳細ページの「情報提供会社」に表示されている不動産会社へ直接お願いいたします。
- 間取図は、現況を優先させていただきます。
- 映像は物件の一部を撮影したものです。物件の契約にあたっての最終判断はご自身の判断に基づいて行ってください。
- 仲介手数料について

アットホームは物件情報の適正化に努めております。
内容に誤りがある場合にはこちらへご連絡ください。