不動産 賃貸 マンション等の住宅情報:埼玉住まい情報


東京都渋谷区初台1丁目(初台駅)の賃貸:物件詳細

  • 物件詳細
  • 情報の見方
  • 印刷用画面
交通
所在地
駅徒歩 賃料
管理費等
敷金/保証金
礼金
間取り
面積
物件種目
築年月

京王線/初台 新着

東京都渋谷区初台1丁目

4分

11万円

10,000円

1ヶ月 / なし

1ヶ月

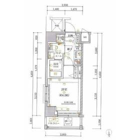
1K

20.37m²

賃貸マンション

2015年9月(築10年7ヶ月)

おすすめPOINTペット相談、デザイナーズ、角部屋、二人入居可、2面採光、24時間換気システム、外観タイル張り

おすすめコメント

・初期費用のクレジット決済・物件現地でのお待ち合わせ、オンライン、お車にてご送迎等、ご希望される方法でご案内いたします・お見積もり、審査も柔軟に対応いたしますのでお気軽にお問い合わせくださいませ!

間取図

間取図

外観

外観

<
その他の画像
  • リビング
  • 室内
  • キッチン
  • 洗面
  • バス/シャワー
  • 設備
  • バルコニー
  • 玄関
  • 共有部分
  • 共有部分
  • エントランス
  • その他
>
    • とりあえず保存
    • お問い合わせ
    交通

    京王線 初台駅 徒歩4分

    その他の交通

    小田急小田原線 参宮橋駅 徒歩8分

    都営大江戸線 西新宿五丁目駅 徒歩19分

    所在地 東京都渋谷区初台1丁目
    物件種目 賃貸マンション
    賃料 11万円 管理費等 10,000円
    敷金 / 保証金 1ヶ月 / なし 礼金 1ヶ月
    敷引 保証金償却
    その他一時金 事務手数料:20,000円、24時間緊急駆けつけ対応:20,000円、鍵交換代等:25,000円~ 保険等 要 2年 20,000円
    維持費等 クレジットカード決済 賃料可
    間取り 1K(洋6.2) 専有面積 20.37m²
    築年月 2015年9月(築10年7ヶ月) 階建 / 階 9階建 / 6階
    建物構造 RC 総戸数
    主要採光面 駐車場 近有 33,000円/月
    バイク置き場 駐輪場
    建物名・部屋番号 アルテシモフォルテ ペット 相談
    リフォーム履歴
    リノベーション履歴
    備考
    賃貸保証等:加入要(エポスカード ≪≫初回保証料50%(月額保証料総賃料1%)≪≫初回保証料50%(月額保証料総賃料1%)※外国籍プラン:初回保証料100%)
    管理形態/管理員の勤務形態:-/巡回
    バルコニー:3.11m²
    管理人巡回
    この度はご覧いただき誠にありがとうございます!弊社では他社様の物件もご紹介可能で、初期費用のお見積もり、交渉、審査も柔軟にお客様に寄り添って対応いたします。また日中以外の内見、現地お待ち合わせ、オンラインでの内見ももちろん可能で、内見、ご契約、鍵の引渡しなども原則弊社にご来店いただく事無く、スムーズにご入居までサポートいたします。皆様が気持ち良く新生活を始められるよう全力で物件をお探しいたします!
    エネルギー消費性能
    断熱性能
    目安光熱費
    バス・トイレ バス・トイレ別、浴室乾燥機、洗面台、シャワー、温水洗浄便座、トイレ
    キッチン システムキッチン、2口コンロ、ガスコンロ可
    セキュリティー オートロック、ディンプルキー、ダブルロックドア、防犯カメラ
    収納 収納スペース、クローゼット、シューズボックス
    設備・サービス 室内洗濯機置場、洗濯機置場、都市ガス給湯、給湯、フローリング、都市ガス、エアコン、冷房
    TV・通信 インターネット対応、インターネット使用料無料、CS、BS端子
    その他 宅配BOX、バルコニー、駐輪場、エレベーター
    契約期間 2年 現況 居住中
    条件等 入居可能時期 2026年5月31日予定
    更新料 新賃料 1ヶ月 物件番号 1170053622
    情報公開日 2026年3月13日 次回更新予定日 2026年3月27日
    ケータイ用バーコード

    QRコード

    スマートフォンでこの物件を見る
    スマートフォンからもこの物件をご覧になれます。
    ※「-」と表示されている項目については、情報提供会社にご確認ください。

    クイックお問い合わせ

    ここから簡単にお問い合わせをすることができます。
    (SSLでの暗号化での送信を希望されるお客さまは こちら よりお問い合わせください)

    お問い合わせ内容(必須)
    お名前(必須) 姓  名 
    メールアドレス(必須)
    ※携帯電話のメールアドレスをご入力される方はこちらをご確認ください
    電話番号(必須)
    - -

    ※入力いただいた電話番号へSMSまたは音声でパスワードをご連絡します。

    携帯電話の番号をご入力の方へ

    携帯電話の番号をご入力の方へ
    確認画面にて送信ボタンをクリックするとSMSが携帯電話に届きます。
    そのSMSに記載のパスワード(認証番号)を入力し、お問い合わせを完了してください。
    尚、SMSの送信者番号は 0005 202 760 となります。
    これはアットホームの固定番号です。

    備考欄 希望条件、物件案内希望日、質問などがございましたらご記入ください。
    お問い合わせを行う前に「個人情報の取り扱いについて」を必ずお読みください。
    「個人情報の取り扱いについて」に同意いただいた場合は「上記にご同意の上 確認画面へ進む」のボタンをクリックしてください。

    個人情報の取り扱いについて

    皆さまが送付された個人情報はアットホーム(株)のサーバを経由し、お問い合わせ先の不動産会社にメールまたはFAXにて転送されるためアットホーム(株)にも保管されます。アットホーム(株)で保管された個人情報の取り扱いについては、【こちら】をご覧ください。
    また、本画面でご記入いただいた個人情報は、お問い合わせ先の不動産会社でも保管します。 お問い合わせ先の不動産会社が保管する個人情報の取り扱いについては、不動産会社に直接お問い合わせください。

    情報提供会社

    情報提供会社

    (株)R不動産

    東京都知事免許(1)第113044号

    交通:
    JR山手線/新橋駅 徒歩7分
    東京都港区西新橋1丁目4-12 新第一ビル8階
    TEL:
    03-6257-2266
    FAX:
    03-6630-0714
    所属団体:
    (公社)東京都宅地建物取引業協会会員
    (公社)首都圏不動産公正取引協議会加盟

    取引態様:仲介

    • 会社情報
    • 00282362
    スマートフォンで
    この不動産会社を見る
    QRコード
    • とりあえず保存
    • お問い合わせ
    • 提携サイト等より掲載されている物件情報につきましては、不動産会社詳細情報にリンクされていないものがあります。
    • 物件に関するお問合せは、物件詳細ページの「情報提供会社」に表示されている不動産会社へ直接お願いいたします。
    • 間取図は、現況を優先させていただきます。
    • 映像は物件の一部を撮影したものです。物件の契約にあたっての最終判断はご自身の判断に基づいて行ってください。
    • 仲介手数料について仲介手数料

    アットホームは物件情報の適正化に努めております。 内容に誤りがある場合にはこちらへご連絡ください。

    【埼玉住まい情報】では、日本全国の物件から賃貸マンションや賃貸アパート・賃貸一戸建て等の賃貸住宅情報、新築マンション・分譲マンションや中古マンション等の売買マンション情報、新築一戸建てや中古一戸建てなどの戸建住宅、 土地など、総合的な不動産住宅情報検索サービスを提供致します。
    【埼玉住まい情報】から、選りすぐりの不動産物件を探してみましょう。

    【免責事項】
    このコーナーの運営はアットホーム株式会社(https://www.athome.co.jp/)が行っています。
    このコーナーに掲載している物件情報は、「アットホーム不動産情報ネットワーク」に加盟する不動産会社等(情報提供元)から提供されています。信頼性の高い情報提供が行えるよう、最大限の努力をしておりますが、その内容を保証するものではありません。 利用者のみなさまと各情報提供元との取引に起因する損害および情報が掲載されたことに起因する損害等については、株式会社イーシティ埼玉、およびアットホームは一切責任を負いません。
    各物件情報の内容や画像等はすべて現況を優先させていただきます。
    お取引等(お取引の準備、資金調達等を含みます)の際には、内容や契約条件等について、各情報提供元より十分な説明を受け、ご自身でご確認の上、判断してください。
    このコーナーへの物件情報のご掲載、その他不動産業務ソリューション等についての不動産会社様のお問合せはこちらからお願いいたします。

    物件画像: