東京都杉並区高円寺北3丁目(高円寺駅)の賃貸:物件詳細
交通 所在地 |
駅徒歩 |
賃料 管理費等 |
敷金/保証金 礼金 |
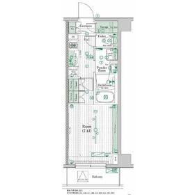
間取り 面積 |
物件種目 築年月 |
|
JR中央線/高円寺
東京都杉並区高円寺北3丁目
|
10分
|
13万円
15,000円
|
1ヶ月 / なし
1ヶ月
|
1K
25.38m²
|
賃貸マンション
2022年8月(築3年8ヶ月)
|
ペット相談、デザイナーズ、分譲タイプ、二人入居可、24時間換気システム、外観タイル張り、IT重説対応物件、保証人不要
|
|
間取図
|
外観
外観は落ち着いています
|
<
その他の画像
>
|
| 交通 | JR中央線 高円寺駅 徒歩10分 |
|---|
| その他の交通 | JR総武線 阿佐ケ谷駅 徒歩18分 西武新宿線 都立家政駅 徒歩19分 |
| 所在地 |
東京都杉並区高円寺北3丁目
|
| 物件種目 |
賃貸マンション |
| 賃料 |
13万円 |
管理費等 |
15,000円 |
| 敷金 / 保証金 |
1ヶ月 / なし |
礼金 |
1ヶ月 |
| 敷引 |
1ヶ月 |
保証金償却 |
- |
| その他一時金 |
入居中サポート:21,450円、抗菌代:17,600円、事務手数料:11,000円、鍵交換代等:22,000円~ |
保険等 |
要 2年 23,000円 |
| 維持費等 |
- |
| 間取り |
1K(洋7.4) |
専有面積 |
25.38m² |
| 築年月 |
2022年8月(築3年8ヶ月)
|
階建 / 階 |
9階建 / 4階 |
| 建物構造 |
RC |
総戸数 |
- |
| 主要採光面 |
北 |
駐車場 |
近有 35,000円/月 |
| バイク置き場 |
- |
駐輪場 |
有 |
| 建物名・部屋番号 |
ブライズ高円寺 |
ペット |
相談 |
| アピールポイント |
室内設備は洗面所独立・浴室乾燥機などが揃っており、とても充実しています。収納はクロゼット・全居室収納など豊富なので、広々と空間を利用することも可能です。セキュリティ面は、TVインターホン・オートロックなど充実しているので安心して生活できます。宅配ボックスがあるので配達時間を気にする必要がないのでわざわざ荷物の受け取りのために時間をとる必要がなくなります。短時間でごみ出しを終えられるように、敷地内にゴミ置き場をつけております。生活を快適にする設備も充実のこの物件は月13万円です。浴室に追い焚き機能があるのでいつでも暖かいお風呂に入れます。ここは入居日指定になってまして2026年5月ですのでお急ぎください。幅広い方に好評の全居室フローリングのマンションになっております。インターネットが繋がっているお住まい、回線快適です。デジタルだけだと満足いかない方はBS・CSチャンネルもご視聴頂くと世界が広がるかも知れませんよ。 |
| リフォーム履歴 |
- |
| リノベーション履歴 |
- |
| 備考 |
賃貸保証等:加入要(保証会社必須/~50%)
管理形態/管理員の勤務形態:-/-
IT重説対応物件
宅配業者が来た時に出る準備ができていない人でも宅配ボックスがあるので入居者は荷物受け取りのために玄関にて対応必要がなくなります。収納はクロゼット・全居室収納など豊富なので、広々と空間を利用することも可能です。室内設備は洗面所独立・浴室乾燥機など充実した設備を備え付けています。セキュリティ面は、オートロック・TVインターホンなど充実しているので、防犯対策もばっちりです。マンションタイプのお部屋です。バルコニー付きのマンションです。一度にたくさん調理できる2口コンロが付いているので、忙しい時でも効率よく料理したい人におすすめです。こちらのお部屋には、間取りに合った照明が付いています。入居時からインターネット環境が整っているため、忙しい方でも工事の日程調整をすることなくすぐにインターネットを使うことができます。築浅物件なので新しく、住み替えにもおすすめです。ペットと一緒に暮らしたい方にもうれしい、ペット相談可の物件です。
|
| エネルギー消費性能 |
- |
| 断熱性能 |
- |
| 目安光熱費 |
- |
| バス・トイレ |
バス・トイレ別、浴室乾燥機、オートバス、追焚機能、洗面所独立、洗面所、温水洗浄便座、トイレ |
| キッチン |
システムキッチン、独立型キッチン、2口コンロ、ガスコンロ可 |
| セキュリティー |
モニター付オートロック、オートロック、モニター付インターホン、ディンプルキー、ダブルロックドア、防犯カメラ |
| 収納 |
全居室収納、収納スペース、クローゼット |
| 設備・サービス |
全居室エアコン、室内洗濯機置場、洗濯機置場、全居室フローリング、フローリング、エアコン、冷房、照明器具 |
| TV・通信 |
インターネット対応、インターネット使用料無料、ケーブルTV、CS、BS端子 |
| その他 |
宅配BOX、バルコニー、駐輪場、エレベーター |
| 契約期間 |
2年 |
現況 |
居住中 |
| 条件等 |
- |
入居可能時期 |
2026年5月中旬予定 |
| 更新料 |
新賃料 1.5ヶ月 |
物件番号 |
1170187922 |
| 情報公開日 |
2026年3月13日 |
次回更新予定日 |
2026年3月27日 |
| ケータイ用バーコード |
- スマートフォンでこの物件を見る
- スマートフォンからもこの物件をご覧になれます。
|
※「-」と表示されている項目については、情報提供会社にご確認ください。
| 周辺施設 |
マルエツ プチ 大和町店 |
| 距離 |
600m |
写真を見る |
| 周辺施設 |
ビッグ・エー杉並阿佐谷南店 |
| 距離 |
795m |
写真を見る |
| 周辺施設 |
マルエツ 中野若宮店 |
| 距離 |
979m |
写真を見る |
| 周辺施設 |
セブンイレブン 高円寺北店 |
| 距離 |
84m |
写真を見る |
| 周辺施設 |
高円寺北三郵便局 |
| 距離 |
433m |
写真を見る |
| 周辺施設 |
ツルハドラッグ 中野若宮店 |
| 距離 |
1065m |
写真を見る |
ここから簡単にお問い合わせをすることができます。
(SSLでの暗号化での送信を希望されるお客さまは
こちら
よりお問い合わせください)
お問い合わせを行う前に
「個人情報の取り扱いについて」を必ずお読みください。
「個人情報の取り扱いについて」に同意いただいた場合は「上記にご同意の上 確認画面へ進む」のボタンをクリックしてください。
個人情報の取り扱いについて
皆さまが送付された個人情報はアットホーム(株)のサーバを経由し、お問い合わせ先の不動産会社にメールまたはFAXにて転送されるためアットホーム(株)にも保管されます。アットホーム(株)で保管された個人情報の取り扱いについては、【こちら】をご覧ください。
また、本画面でご記入いただいた個人情報は、お問い合わせ先の不動産会社でも保管します。 お問い合わせ先の不動産会社が保管する個人情報の取り扱いについては、不動産会社に直接お問い合わせください。
東京都知事免許(1)第107337号 |
|---|
- 交通:
- JR山手線/新橋駅 徒歩5分
- 東京都中央区銀座8丁目11-1 GINZA GS BLD.2 7階
- TEL:
- 03-6281-4770
- FAX:
- 03-6281-4771
- 所属団体:
- (公社)東京都宅地建物取引業協会会員(公社)首都圏不動産公正取引協議会加盟
取引態様:仲介  - 00271811
|
- スマートフォンで
この不動産会社を見る

|
- 提携サイト等より掲載されている物件情報につきましては、不動産会社詳細情報にリンクされていないものがあります。
- 物件に関するお問合せは、物件詳細ページの「情報提供会社」に表示されている不動産会社へ直接お願いいたします。
- 間取図は、現況を優先させていただきます。
- 映像は物件の一部を撮影したものです。物件の契約にあたっての最終判断はご自身の判断に基づいて行ってください。
- 仲介手数料について

アットホームは物件情報の適正化に努めております。
内容に誤りがある場合にはこちらへご連絡ください。