東京都文京区水道1丁目(飯田橋駅)の賃貸:物件詳細
交通 所在地 |
駅徒歩 |
賃料 管理費等 |
敷金/保証金 礼金 |
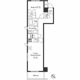
間取り 面積 |
物件種目 築年月 |
|
都営大江戸線/飯田橋
東京都文京区水道1丁目
|
9分
|
20万円
10,000円
|
20万円 / なし
なし
|
1LDK
45.09m²
|
賃貸マンション
2006年11月(築19年5ヶ月)
|
ペット相談、フリーレント、分譲タイプ、二人入居可
|
|
間取図
|
外観
落ち着いた雰囲気の外観です
|
<
その他の画像
>
|
| 交通 | 都営大江戸線 飯田橋駅 徒歩9分 |
|---|
| その他の交通 | 東京メトロ丸ノ内線 後楽園駅 徒歩11分 都営大江戸線 春日駅 徒歩15分 |
| 所在地 |
東京都文京区水道1丁目
|
| 物件種目 |
賃貸マンション |
| 賃料 |
20万円 |
管理費等 |
10,000円 |
| 敷金 / 保証金 |
20万円 / なし |
礼金 |
なし |
| 敷引 |
- |
保証金償却 |
- |
| その他一時金 |
なし |
保険等 |
要 27,500円 |
| 維持費等 |
- |
| 間取り |
1LDK(L11.2、洋5.2) |
専有面積 |
45.09m² |
| 築年月 |
2006年11月(築19年5ヶ月)
|
階建 / 階 |
地上7階地下1階建 / 5階 |
| 建物構造 |
RC |
総戸数 |
- |
| 主要採光面 |
北東 |
駐車場 |
無 |
| バイク置き場 |
- |
駐輪場 |
- |
| 建物名・部屋番号 |
プライマル小石川 0501 |
ペット |
相談 |
| アピールポイント |
セキュリティ面は、TVインターホン・オートロックなどを備え付けているので安心して暮らせます。お風呂場の乾燥機能もある浴室乾燥機の付いたマンションです。留守中に注文した商品が届くので、配送時間を気にせず注文ができる宅配ボックスが共用部に付いています。専有面積も45.09平米あるので魅力的。防犯対策もバッチリなマンションタイプの物件です。CATV対応物件なので、契約のみで簡単にCATVを視聴することが出来ます。動物好きの方に嬉しい、機能が充実したペット可能物件。こちらは家賃20万円の物件です。BSアンテナが設置済みで、加入後すぐにBSが視聴できます。3口コンロが付いているので、3つの料理を同時に進められて時短につながります。 |
| リフォーム履歴 |
- |
| リノベーション履歴 |
- |
| 備考 |
賃貸保証等:加入要(貸主指定保証会社 クレディセゾン保証 初回保証料:個人30%・法人40% 更新料:毎年1万円(賃料15万以上の場合1万4千円) 収納手数料:なし)
管理形態/管理員の勤務形態:-/-
フリーレント:1ヶ月(賃料のみ)
浴室乾燥機を備え付けているので、浴室や洗濯物からスピーディーに湿気を除去してカビの発生を防げます。
|
| エネルギー消費性能 |
- |
| 断熱性能 |
- |
| 目安光熱費 |
- |
| バス・トイレ |
バス・トイレ別、浴室乾燥機、温水洗浄便座、トイレ |
| キッチン |
システムキッチン、3口以上コンロ |
| セキュリティー |
モニター付オートロック、オートロック、モニター付インターホン |
| 収納 |
- |
| 設備・サービス |
都市ガス給湯、給湯、フローリング、都市ガス |
| TV・通信 |
ケーブルTV、BS端子 |
| その他 |
宅配BOX、エレベーター |
| 契約期間 |
2年 |
現況 |
空家 |
| 条件等 |
- |
入居可能時期 |
即時 |
| 更新料 |
- |
物件番号 |
1170534222 |
| 情報公開日 |
2026年3月13日 |
次回更新予定日 |
2026年3月28日 |
| ケータイ用バーコード |
- スマートフォンでこの物件を見る
- スマートフォンからもこの物件をご覧になれます。
|
※「-」と表示されている項目については、情報提供会社にご確認ください。
| 周辺施設 |
まいばすけっと 春日店 |
| 距離 |
26m |
写真を見る |
| 周辺施設 |
まいばすけっと 春日2丁目店 |
| 距離 |
334m |
写真を見る |
| 周辺施設 |
マルエツ プチ 水道小桜店 |
| 距離 |
424m |
写真を見る |
| 周辺施設 |
ミニストップ 文京後楽店 |
| 距離 |
322m |
写真を見る |
| 周辺施設 |
セブンイレブン 文京春日1丁目店 |
| 距離 |
281m |
写真を見る |
| 周辺施設 |
ファミリーマート 伝通院前店 |
| 距離 |
516m |
写真を見る |
| 周辺施設 |
文京フアーマシー |
| 距離 |
473m |
写真を見る |
ここから簡単にお問い合わせをすることができます。
(SSLでの暗号化での送信を希望されるお客さまは
こちら
よりお問い合わせください)
お問い合わせを行う前に
「個人情報の取り扱いについて」を必ずお読みください。
「個人情報の取り扱いについて」に同意いただいた場合は「上記にご同意の上 確認画面へ進む」のボタンをクリックしてください。
個人情報の取り扱いについて
皆さまが送付された個人情報はアットホーム(株)のサーバを経由し、お問い合わせ先の不動産会社にメールまたはFAXにて転送されるためアットホーム(株)にも保管されます。アットホーム(株)で保管された個人情報の取り扱いについては、【こちら】をご覧ください。
また、本画面でご記入いただいた個人情報は、お問い合わせ先の不動産会社でも保管します。 お問い合わせ先の不動産会社が保管する個人情報の取り扱いについては、不動産会社に直接お問い合わせください。
東京都知事免許(1)第106849号 |
|---|
- 交通:
- 都営新宿線/岩本町駅 徒歩1分
- 東京都千代田区神田須田町2丁目6-20 マリアナ神田須田町3階
- TEL:
- 03-5296-9335
- 所属団体:
- (公社)東京都宅地建物取引業協会会員(公社)首都圏不動産公正取引協議会加盟
取引態様:仲介  - 00271035
|
- スマートフォンで
この不動産会社を見る

|
- 提携サイト等より掲載されている物件情報につきましては、不動産会社詳細情報にリンクされていないものがあります。
- 物件に関するお問合せは、物件詳細ページの「情報提供会社」に表示されている不動産会社へ直接お願いいたします。
- 間取図は、現況を優先させていただきます。
- 映像は物件の一部を撮影したものです。物件の契約にあたっての最終判断はご自身の判断に基づいて行ってください。
- 仲介手数料について

アットホームは物件情報の適正化に努めております。
内容に誤りがある場合にはこちらへご連絡ください。