愛知県豊橋市往完町字往還西(豊橋駅)の賃貸:物件詳細
交通 所在地 |
駅徒歩 |
賃料 管理費等 |
敷金/保証金 礼金 |
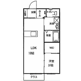
間取り 面積 |
物件種目 築年月 |
|
東海道新幹線/豊橋 [バス利用可] バス 24分 往完町 停歩4分
愛知県豊橋市往完町字往還西
|
19分
|
5.2万円
3,000円
|
2ヶ月 / なし
なし
|
1LDK
35.06m²
|
賃貸アパート
2009年1月(築17年5ヶ月)
|
保証人不要
|
|
間取図
|
外観
|
<
その他の画像
>
|
| 交通 | 東海道新幹線 豊橋駅 徒歩19分 [バス利用可] バス 24分 往完町 停歩4分 |
| 所在地 |
愛知県豊橋市往完町字往還西
|
| 物件種目 |
賃貸アパート |
| 賃料 |
5.2万円 |
管理費等 |
3,000円 |
| 敷金 / 保証金 |
2ヶ月 / なし |
礼金 |
なし |
| 敷引 |
- |
保証金償却 |
- |
| その他一時金 |
なし、鍵交換代等:13,200円~ |
保険等 |
要 |
| 維持費等 |
サーラすまい補償サービス料:950円/月 |
| 間取り |
1LDK |
専有面積 |
35.06m² |
| 築年月 |
2009年1月(築17年5ヶ月)
|
階建 / 階 |
2階建 / 1階 |
| 建物構造 |
軽量鉄骨造 |
総戸数 |
- |
| 主要採光面 |
南東 |
駐車場 |
有 3,000円/月 |
| バイク置き場 |
- |
駐輪場 |
- |
| 建物名・部屋番号 |
ボヌール・往完 1C |
ペット |
-
|
| アピールポイント |
・1Fはシャター付
・スーパー「クックマート」徒歩7分
・ファミリーマート徒歩7分
・郵便局徒歩3分 |
| リフォーム履歴 |
- |
| リノベーション履歴 |
- |
| 備考 |
賃貸保証等:加入要(エポスカード 【エポスカード】基本保証料:月額賃料等の60% 月次保証料:月額賃料等の1.5%更新料無し)
管理形態/管理員の勤務形態:-/不在
・1Fはシャター付
・スーパー「クックマート」徒歩7分
・ファミリーマート徒歩7分
・郵便局徒歩3分
※サーラすまい補償サービス料月額950円
※個人契約の場合、保証会社加入要
法人契約の場合、条件次第で保証会社加入不要
※1年未満で解約の場合、 違約金有(賃料1ヶ月分)
※契約時:鍵交換費用16,500円(税込)必要
|
| エネルギー消費性能 |
- |
| 断熱性能 |
- |
| 目安光熱費 |
- |
| バス・トイレ |
バス・トイレ別、浴室乾燥機、追焚機能、シャワー付洗面化粧台、シャワー、温水洗浄便座、トイレ |
| キッチン |
システムキッチン、2口コンロ、ガスコンロ可 |
| セキュリティー |
モニター付インターホン、シャッター雨戸 |
| 収納 |
ウォークインクローゼット、収納スペース、クローゼット |
| 設備・サービス |
室内洗濯機置場、洗濯機置場、全居室フローリング、プロパンガス、エアコン |
| TV・通信 |
インターネット対応 |
| その他 |
- |
| 契約期間 |
2年 |
現況 |
空家 |
| 条件等 |
- |
入居可能時期 |
即時 |
| 更新料 |
- |
物件番号 |
1170722613 |
| 情報公開日 |
2026年1月22日 |
次回更新予定日 |
2026年5月23日 |
| ケータイ用バーコード |
- スマートフォンでこの物件を見る
- スマートフォンからもこの物件をご覧になれます。
|
※「-」と表示されている項目については、情報提供会社にご確認ください。
| 周辺施設 |
ファミリーマート 豊橋東脇店 |
| 距離 |
556m |
写真を見る |
| 周辺施設 |
セブンイレブン 豊橋東脇店 |
| 距離 |
647m |
写真を見る |
| 周辺施設 |
ヤマナカ 汐田フランテ館 |
| 距離 |
1318m |
写真を見る |
| 周辺施設 |
豊橋往完郵便局 |
| 距離 |
202m |
写真を見る |
| 周辺施設 |
ココカラファイン 東脇店 |
| 距離 |
599m |
写真を見る |
| 周辺施設 |
MEGAドン・キホーテ豊橋店 |
| 距離 |
1877m |
写真を見る |
| 周辺施設 |
クスリのアオキ 東脇店 |
| 距離 |
679m |
写真を見る |
| 周辺施設 |
精文館書店 汐田橋店 |
| 距離 |
1342m |
写真を見る |
ここから簡単にお問い合わせをすることができます。
(SSLでの暗号化での送信を希望されるお客さまは
こちら
よりお問い合わせください)
お問い合わせを行う前に
「個人情報の取り扱いについて」を必ずお読みください。
「個人情報の取り扱いについて」に同意いただいた場合は「上記にご同意の上 確認画面へ進む」のボタンをクリックしてください。
個人情報の取り扱いについて
皆さまが送付された個人情報はアットホーム(株)のサーバを経由し、お問い合わせ先の不動産会社にメールまたはFAXにて転送されるためアットホーム(株)にも保管されます。アットホーム(株)で保管された個人情報の取り扱いについては、【こちら】をご覧ください。
また、本画面でご記入いただいた個人情報は、お問い合わせ先の不動産会社でも保管します。 お問い合わせ先の不動産会社が保管する個人情報の取り扱いについては、不動産会社に直接お問い合わせください。
国土交通大臣免許(15)第605号 |
|---|
- 交通:
- 東海道本線/豊橋駅 徒歩5分
- 愛知県豊橋市駅前大通1丁目35
- TEL:
- 0532-57-3410
- FAX:
- 0532-57-3411
- 所属団体:
- (公社)愛知県宅地建物取引業協会会員不動産公正取引協議会加盟
取引態様:仲介  - 40401445
|
- スマートフォンで
この不動産会社を見る

|
- 提携サイト等より掲載されている物件情報につきましては、不動産会社詳細情報にリンクされていないものがあります。
- 物件に関するお問合せは、物件詳細ページの「情報提供会社」に表示されている不動産会社へ直接お願いいたします。
- 間取図は、現況を優先させていただきます。
- 映像は物件の一部を撮影したものです。物件の契約にあたっての最終判断はご自身の判断に基づいて行ってください。
- 仲介手数料について

アットホームは物件情報の適正化に努めております。
内容に誤りがある場合にはこちらへご連絡ください。