福岡県福岡市博多区三筑2丁目(雑餉隈駅)の賃貸:物件詳細
交通 所在地 |
駅徒歩 |
賃料 管理費等 |
敷金/保証金 礼金 |
間取り 面積 |
物件種目 築年月 |
|
西鉄天神大牟田線/雑餉隈
福岡県福岡市博多区三筑2丁目
|
10分
|
12.7万円
8,000円
|
なし / なし
1ヶ月
|
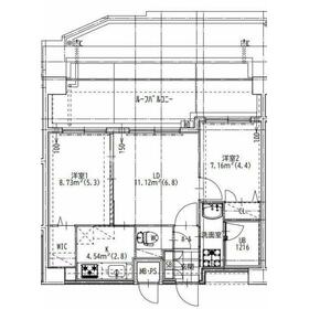
2LDK
44.03m²
|
賃貸マンション
2023年1月(築3年3ヶ月)
|
最上階、高齢者相談、二人入居可、24時間換気システム、IT重説対応物件
|
|
間取図
|
外観
|
<
その他の画像
>
|
|
|
| 交通 | 西鉄天神大牟田線 雑餉隈駅 徒歩10分 |
|---|
| その他の交通 | JR鹿児島本線 笹原駅 徒歩13分 JR鹿児島本線 南福岡駅 徒歩15分 |
| 所在地 |
福岡県福岡市博多区三筑2丁目
|
| 物件種目 |
賃貸マンション |
| 賃料 |
12.7万円 |
管理費等 |
8,000円 |
| 敷金 / 保証金 |
なし / なし |
礼金 |
1ヶ月 |
| 敷引 |
- |
保証金償却 |
- |
| その他一時金 |
室内清掃費用:71,500円 |
保険等 |
要 |
| 維持費等 |
町会費:500円/月 |
クレジットカード決済 |
初期費用可 |
| 間取り |
2LDK(LD6.8、洋5.3、洋4.4、K2.8) |
専有面積 |
44.03m² |
| 築年月 |
2023年1月(築3年3ヶ月)
|
階建 / 階 |
8階建 / 8階 |
| 建物構造 |
RC |
総戸数 |
- |
| 主要採光面 |
北東 |
駐車場 |
近有 18,000円/月 |
| バイク置き場 |
有 |
駐輪場 |
有 |
| 建物名・部屋番号 |
|
ペット |
-
|
| アピールポイント |
室内設備は洗面化粧台・浴室乾燥機など大変充実しております。共用部には敷地内ごみ置き場・バイク置場・エレベータ2基など様々な設備やサービスが揃っているので便利です。収納はウォークインクロゼット・シューズボックスなど豊富なので、衣類や履き物の整理がしやすく便利です。セキュリティ面は、オートロック・TVインターホンなど充実しているので、防犯対策もばっちりです。通風システムが整った、住環境の良い安心のマンションです。初期費用のカード決済ができます。交通のアクセスが良く毎日の通学に嬉しいマンションです。コチラの物件は2026年3月に入居可能予定の嬉しい物件になっています。こちらのマンションはシステムキッチン付きの物件です。空き部屋であれば、案内や入居で待たされることもありません。犯罪への抑止力やセキュリティの強化のために防犯カメラが付いています。 |
| リフォーム履歴 |
- |
| リノベーション履歴 |
- |
| 備考 |
賃貸保証等:加入要(初回50%、更新時12000円/年)
管理形態/管理員の勤務形態:-/-
IT重説対応物件、外壁コンクリート
物件のお問い合わせはSumoSumoまで♪♪
収納はウォークインクロゼット・シューズボックスなど豊富なので、衣類や履き物の整理がしやすく便利です。室内設備は洗面化粧台・浴室乾燥機などが揃っており、とても充実しています。共用部には敷地内ごみ置き場・バイク置場・エレベータ2基など様々な設備やサービスが揃っているので便利です。セキュリティ面は、TVインターホン・オートロックなど充実しているので安心して生活できます。同時に料理ができるので忙しい朝でもサッと料理ができる、3口コンロの物件です。フローリングにはオシャレな洋風インテリアもピッタリです。駅から徒歩9分の位置にある物件なので、アクセスも良好です。犯罪防止効果が期待できる防犯カメラ付き物件です。お車をお持ちの方にオススメの、近隣に駐車スペースがあるマンション。共用設備の充実している、楽しく生活できるマンションです。周辺環境も良好で、魅力的な住環境のある、2023年築の物件です。短期解約違約金:1年未満賃料・共益費の1ヶ月
|
| エネルギー消費性能 |
- |
| 断熱性能 |
- |
| 目安光熱費 |
- |
| バス・トイレ |
バス・トイレ別、浴室暖房、浴室乾燥機、追焚機能、シャワー付洗面化粧台、洗面所独立、洗面所、洗面台、シャワー、温水洗浄便座、トイレ |
| キッチン |
システムキッチン、独立型キッチン、3口以上コンロ、ガスコンロ可、グリル |
| セキュリティー |
モニター付オートロック、オートロック、モニター付インターホン、防犯カメラ |
| 収納 |
ウォークインクローゼット、収納スペース、クローゼット、シューズボックス |
| 設備・サービス |
室内洗濯機置場、洗濯機置場、プロパンガス給湯、給湯、全居室フローリング、フローリング、プロパンガス、エアコン、冷房 |
| TV・通信 |
インターネット対応、CATVインターネット、ケーブルTV |
| その他 |
バイク置き場、エレベーター2基以上、ルーフバルコニー、バルコニー、駐輪場、エレベーター |
| 契約期間 |
2年 |
現況 |
空家 |
| 条件等 |
- |
入居可能時期 |
2026年3月31日予定 |
| 更新料 |
- |
物件番号 |
1170730822 |
| 情報公開日 |
2026年3月13日 |
次回更新予定日 |
2026年3月28日 |
| ケータイ用バーコード |
- スマートフォンでこの物件を見る
- スマートフォンからもこの物件をご覧になれます。
|
※「-」と表示されている項目については、情報提供会社にご確認ください。
| 周辺施設 |
業務スーパー 南福岡店 |
| 距離 |
99m |
写真を見る |
| 周辺施設 |
セブンイレブン 博多三筑2丁目店 |
| 距離 |
154m |
写真を見る |
| 周辺施設 |
ドラッグストアコスモス 三筑店 |
| 距離 |
221m |
写真を見る |
| 周辺施設 |
The Big(ザ・ビッグ) 南福岡店 |
| 距離 |
367m |
写真を見る |
| 周辺施設 |
福岡麦野郵便局 |
| 距離 |
634m |
写真を見る |
| 周辺施設 |
エアウィーヴ ホームプラザナフコ 博多店 |
| 距離 |
799m |
写真を見る |
ここから簡単にお問い合わせをすることができます。
(SSLでの暗号化での送信を希望されるお客さまは
こちら
よりお問い合わせください)
お問い合わせを行う前に
「個人情報の取り扱いについて」を必ずお読みください。
「個人情報の取り扱いについて」に同意いただいた場合は「上記にご同意の上 確認画面へ進む」のボタンをクリックしてください。
個人情報の取り扱いについて
皆さまが送付された個人情報はアットホーム(株)のサーバを経由し、お問い合わせ先の不動産会社にメールまたはFAXにて転送されるためアットホーム(株)にも保管されます。アットホーム(株)で保管された個人情報の取り扱いについては、【こちら】をご覧ください。
また、本画面でご記入いただいた個人情報は、お問い合わせ先の不動産会社でも保管します。 お問い合わせ先の不動産会社が保管する個人情報の取り扱いについては、不動産会社に直接お問い合わせください。
国土交通大臣免許(2)第9550号 |
|---|
- 交通:
- JR鹿児島本線/博多駅 徒歩5分
- 福岡県福岡市博多区博多駅前2丁目13-13 シャンソンビル博多4F
- TEL:
- 092-600-0801
- 所属団体:
- (公社)全日本不動産協会会員(公社)近畿地区不動産公正取引協議会加盟
取引態様:仲介  - 80507507
|
- スマートフォンで
この不動産会社を見る

|
- 提携サイト等より掲載されている物件情報につきましては、不動産会社詳細情報にリンクされていないものがあります。
- 物件に関するお問合せは、物件詳細ページの「情報提供会社」に表示されている不動産会社へ直接お願いいたします。
- 間取図は、現況を優先させていただきます。
- 映像は物件の一部を撮影したものです。物件の契約にあたっての最終判断はご自身の判断に基づいて行ってください。
- 仲介手数料について

アットホームは物件情報の適正化に努めております。
内容に誤りがある場合にはこちらへご連絡ください。