神奈川県横浜市鶴見区生麦3丁目(生麦駅)の賃貸:物件詳細
交通 所在地 |
駅徒歩 |
賃料 管理費等 |
敷金/保証金 礼金 |
間取り 面積 |
物件種目 築年月 |
|
京急本線/生麦
神奈川県横浜市鶴見区生麦3丁目
|
3分
|
7.1万円
15,000円
|
なし / なし
1ヶ月
|
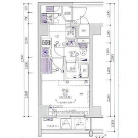
1K
21.31m²
|
賃貸マンション
2016年9月(築9年3ヶ月)
|
ペット相談、分譲タイプ、角部屋、最上階、IT重説対応物件
|
|
間取図
|
外観
|
その他の画像
|
| 交通 | 京急本線 生麦駅 徒歩3分 |
|---|
| その他の交通 | 京急本線 花月総持寺駅 徒歩8分 JR鶴見線 国道駅 徒歩13分 |
| 所在地 |
神奈川県横浜市鶴見区生麦3丁目
|
| 物件種目 |
賃貸マンション |
| 賃料 |
7.1万円 |
管理費等 |
15,000円 |
| 敷金 / 保証金 |
なし / なし |
礼金 |
1ヶ月 |
| 敷引 |
- |
保証金償却 |
- |
| その他一時金 |
契約事務手数料:11,000円 |
保険等 |
要 2年 15,000円 |
| 維持費等 |
24時間サポート:1,000円/月 |
クレジットカード決済 |
初期費用可 |
| 間取り |
1K |
専有面積 |
21.31m² |
| 築年月 |
2016年9月(築9年3ヶ月)
|
階建 / 階 |
6階建 / 6階 |
| 建物構造 |
RC |
総戸数 |
- |
| 主要採光面 |
|
駐車場 |
無 |
| バイク置き場 |
- |
駐輪場 |
有 |
| 建物名・部屋番号 |
ルクシェール横濱生麦 601 |
ペット |
相談 |
| アピールポイント |
数多い不動産会社の中から当社を選んでいただいたお客様に、安心して暮らせる住まいを責任を持ってお探しします。
お客様の立場になってアドバイスさせていただき、満足のいくお部屋が見つかるまでお手伝いします。
人気物件の為お電話のお問い合わせがスムーズです☆
横浜市・川崎市エリアのワンルームからファミリータイプまで幅広く対応しておりますので、お気軽にお問い合わせください。 |
| リフォーム履歴 |
- |
| リノベーション履歴 |
- |
| 備考 |
賃貸保証等:加入要(初回保証料50%、月額800円)
管理形態/管理員の勤務形態:-/-
IT重説対応物件
ペット飼育時:敷金1カ月追加(償却)/短期解約違約金有/室内クリーニング代:38,500円/エアコン清掃代:16,500円
|
| エネルギー消費性能 |
- |
| 断熱性能 |
- |
| 目安光熱費 |
- |
| バス・トイレ |
バス・トイレ別、浴室乾燥機、洗面台、シャワー、温水洗浄便座、トイレ |
| キッチン |
2口コンロ、ガスコンロ可 |
| セキュリティー |
オートロック、モニター付インターホン |
| 収納 |
クローゼット、シューズボックス |
| 設備・サービス |
室内洗濯機置場、給湯、フローリング、都市ガス、エアコン |
| TV・通信 |
- |
| その他 |
宅配BOX、バルコニー、駐輪場、エレベーター |
| 契約期間 |
2年 |
現況 |
空家 |
| 条件等 |
- |
入居可能時期 |
即時 |
| 更新料 |
新賃料 1ヶ月 |
物件番号 |
1170883311 |
| 情報公開日 |
2025年9月12日 |
次回更新予定日 |
2025年11月10日 |
| ケータイ用バーコード |
- スマートフォンでこの物件を見る
- スマートフォンからもこの物件をご覧になれます。
|
※「-」と表示されている項目については、情報提供会社にご確認ください。
| 周辺施設 |
生麦駅(京急 本線) |
| 距離 |
240m |
写真を見る |
ここから簡単にお問い合わせをすることができます。
(SSLでの暗号化での送信を希望されるお客さまは
こちら
よりお問い合わせください)
お問い合わせを行う前に
「個人情報の取り扱いについて」を必ずお読みください。
「個人情報の取り扱いについて」に同意いただいた場合は「上記にご同意の上 確認画面へ進む」のボタンをクリックしてください。
個人情報の取り扱いについて
皆さまが送付された個人情報はアットホーム(株)のサーバを経由し、お問い合わせ先の不動産会社にメールまたはFAXにて転送されるためアットホーム(株)にも保管されます。アットホーム(株)で保管された個人情報の取り扱いについては、【こちら】をご覧ください。
また、本画面でご記入いただいた個人情報は、お問い合わせ先の不動産会社でも保管します。 お問い合わせ先の不動産会社が保管する個人情報の取り扱いについては、不動産会社に直接お問い合わせください。
国土交通大臣免許(2)第9662号 |
|---|
- 交通:
- 京急本線/京急鶴見駅 徒歩3分
- 神奈川県横浜市鶴見区鶴見中央4丁目5-3 木曽屋第二ビル2F
- TEL:
- 045-642-5786
- FAX:
- 045-642-4386
- 所属団体:
- (公社)神奈川県宅地建物取引業協会会員(公社)首都圏不動産公正取引協議会加盟
取引態様:仲介  - 00265675
|
- スマートフォンで
この不動産会社を見る

|
- 提携サイト等より掲載されている物件情報につきましては、不動産会社詳細情報にリンクされていないものがあります。
- 物件に関するお問合せは、物件詳細ページの「情報提供会社」に表示されている不動産会社へ直接お願いいたします。
- 間取図は、現況を優先させていただきます。
- 映像は物件の一部を撮影したものです。物件の契約にあたっての最終判断はご自身の判断に基づいて行ってください。
- 仲介手数料について

アットホームは物件情報の適正化に努めております。
内容に誤りがある場合にはこちらへご連絡ください。