兵庫県神戸市灘区篠原北町1丁目(六甲道駅)の賃貸:物件詳細
交通 所在地 |
駅徒歩 |
賃料 管理費等 |
敷金/保証金 礼金 |
間取り 面積 |
物件種目 築年月 |
|
JR東海道本線/六甲道
兵庫県神戸市灘区篠原北町1丁目
|
15分
|
23万円
18,000円
|
2ヶ月 / なし
1ヶ月
|
3SLDK
89.57m²
|
賃貸マンション
2018年11月(築7年5ヶ月)
|
ペット相談、分譲タイプ、南向き、二人入居可、閑静な住宅街、IT重説対応物件
|
|
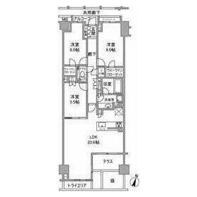
間取図
ファミリーさん向けの間取りですね。
|
外観
建物外観を気になさる方へ、見た目の良い物件です
|
<
その他の画像
>
|
| 交通 | JR東海道本線 六甲道駅 徒歩15分 |
|---|
| その他の交通 | 阪急神戸線 六甲駅 徒歩6分 阪神本線 新在家駅 徒歩21分 |
| 所在地 |
兵庫県神戸市灘区篠原北町1丁目
|
| 物件種目 |
賃貸マンション |
| 賃料 |
23万円 |
管理費等 |
18,000円 |
| 敷金 / 保証金 |
2ヶ月 / なし |
礼金 |
1ヶ月 |
| 敷引 |
- |
保証金償却 |
- |
| その他一時金 |
駐車場登録料 1台(利用時のみ) 契約時:11,000円、借家人賠償保険 24ヵ月 契約時:25,000円、除菌施工料(契約時のみ) 契約時:19,800円 |
保険等 |
要 2年 25,000円 |
| 維持費等 |
リロサポ:1,500円/月 |
| 間取り |
3SLDK(LDK20.6、S5、洋5.5、洋6、洋8) |
専有面積 |
89.57m² |
| 築年月 |
2018年11月(築7年5ヶ月)
|
階建 / 階 |
4階建 / 1階 |
| 建物構造 |
RC |
総戸数 |
- |
| 主要採光面 |
南 |
駐車場 |
近有 20,000円/月 |
| バイク置き場 |
- |
駐輪場 |
- |
| 建物名・部屋番号 |
プラウド六甲篠原北町 |
ペット |
相談 |
| アピールポイント |
エントランスと玄関の2つのロックで守られているので安全面に優れているオートロック機能があります。室内設備は洗面化粧台・浴室乾燥機・食器洗乾燥機など豊富に揃っており、過ごしやすいお部屋になっております。収納はウォークインクロゼット・シューズボックスなど豊富なので、広々と空間を利用することも可能です。不在時でも荷物を受け取ることができるため、時間調整の手間が省ける宅配ボックスが付いております。お料理好きにはたまらない、システムキッチン付きの物件です。こだわり条件として好評が高い全居室フローリング物件です。多くの方にご好評をいただいている、清潔感のある賃貸物件です。暑い日でも寒い日でも、エアコンのある物件なら安心です。この物件は、駅まで徒歩15分に立地しています。こちらの物件は駐車場が月額20000円でご利用いただけます。ペットと一緒に住むことができるか事前にご相談いただける、ペット相談可の物件です。 |
| リフォーム履歴 |
- |
| リノベーション履歴 |
- |
| 備考 |
賃貸保証等:加入要(リロ家賃サービス 保証会社 要:初回 賃料総額100%+月額 賃料総額1%(最低1,000円))
管理形態/管理員の勤務形態:-/-
IT重説対応物件
室内設備はエアコン・システムキッチン・床暖房などが揃っているので、快適に過ごしやすいお部屋になります。常に新鮮な外気が入ってくるので快適な暮らしを送れます。駅から徒歩15分のところにあるマンションはいかがでしょうか。閑静な住宅地にあるマンションです。しっかりとした造りが自慢の築7年のマンション。パーキングの料金は月額20000円です。こちらのマンションから出て100mに駐車場あり。造りとデザインに関して、自信をもって情報を提供できるマンションです。
室内設備は洗面所独立・浴室乾燥機・食器洗乾燥機など充実した設備を備え付けています。共用部には宅配ボックスが付いているため、非対面で荷物を受け取れます。部外者の侵入を抑止するオートロックがついた、安心できる物件です。収納はウォークインクロゼット・シューズボックスなど豊富なので、衣類や履き物の整理がしやすく便利です。こちらの物件から100mのところに駐車場あり。アレルギーになりやすい方にも快適な全居室フローリングです。89.57㎡ある専有面積で暮らせます。システムキッチンはシンクやコンロ、作業台などが一体化しているので、掃除がしやすい構造にな
|
| エネルギー消費性能 |
- |
| 断熱性能 |
- |
| 目安光熱費 |
- |
| バス・トイレ |
バス・トイレ別、浴室乾燥機、追焚機能、シャワー付洗面化粧台、洗面所独立、洗面所、シャワールーム、シャワー、温水洗浄便座、トイレ |
| キッチン |
カウンターキッチン、システムキッチン、食器洗浄乾燥機、ディスポーザー、3口以上コンロ、ガスコンロ可 |
| セキュリティー |
オートロック |
| 収納 |
ウォークインクローゼット、収納スペース、クローゼット、シューズボックス |
| 設備・サービス |
床暖房、室内洗濯機置場、洗濯機置場、都市ガス給湯、給湯、全居室フローリング、フローリング、都市ガス、エアコン、暖房 |
| TV・通信 |
ケーブルTV、CS、BS端子 |
| その他 |
宅配BOX、専用庭、エレベーター |
| 契約期間 |
2年 |
現況 |
居住中 |
| 条件等 |
- |
入居可能時期 |
相談 |
| 更新料 |
- |
物件番号 |
1171154522 |
| 情報公開日 |
2026年3月14日 |
次回更新予定日 |
2026年3月28日 |
| ケータイ用バーコード |
- スマートフォンでこの物件を見る
- スマートフォンからもこの物件をご覧になれます。
|
※「-」と表示されている項目については、情報提供会社にご確認ください。
ここから簡単にお問い合わせをすることができます。
(SSLでの暗号化での送信を希望されるお客さまは
こちら
よりお問い合わせください)
お問い合わせを行う前に
「個人情報の取り扱いについて」を必ずお読みください。
「個人情報の取り扱いについて」に同意いただいた場合は「上記にご同意の上 確認画面へ進む」のボタンをクリックしてください。
個人情報の取り扱いについて
皆さまが送付された個人情報はアットホーム(株)のサーバを経由し、お問い合わせ先の不動産会社にメールまたはFAXにて転送されるためアットホーム(株)にも保管されます。アットホーム(株)で保管された個人情報の取り扱いについては、【こちら】をご覧ください。
また、本画面でご記入いただいた個人情報は、お問い合わせ先の不動産会社でも保管します。 お問い合わせ先の不動産会社が保管する個人情報の取り扱いについては、不動産会社に直接お問い合わせください。
国土交通大臣免許(1)第11032号 |
|---|
- 交通:
- JR東海道本線/三ノ宮駅 徒歩5分
- 兵庫県神戸市中央区二宮町4丁目7-7 101号
- TEL:
- 078-855-7936
- FAX:
- 078-855-7937
- 所属団体:
- (公社)全日本不動産協会会員(公社)近畿地区不動産公正取引協議会加盟
取引態様:仲介  - 50106463
|
- スマートフォンで
この不動産会社を見る

|
- 提携サイト等より掲載されている物件情報につきましては、不動産会社詳細情報にリンクされていないものがあります。
- 物件に関するお問合せは、物件詳細ページの「情報提供会社」に表示されている不動産会社へ直接お願いいたします。
- 間取図は、現況を優先させていただきます。
- 映像は物件の一部を撮影したものです。物件の契約にあたっての最終判断はご自身の判断に基づいて行ってください。
- 仲介手数料について

アットホームは物件情報の適正化に努めております。
内容に誤りがある場合にはこちらへご連絡ください。