東京都品川区東品川3丁目(天王洲アイル駅)の賃貸:物件詳細
交通 所在地 |
駅徒歩 |
賃料 管理費等 |
敷金/保証金 礼金 |
間取り 面積 |
物件種目 築年月 |
りんかい線/天王洲アイル
東京都品川区東品川3丁目
|
7分
|
27.9万円
20,000円
|
1ヶ月 / なし
なし
|
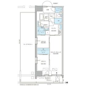
2LDK
56.10m²
|
賃貸マンション
2025年3月
|
ペット相談、楽器相談、フリーレント、角部屋、24時間換気システム、IT重説対応物件
|
間取図
|
外観
|
<
その他の画像
>
|
交通 | りんかい線 天王洲アイル駅 徒歩7分 |
---|
その他の交通 | 東京モノレール 天王洲アイル駅 徒歩10分 JR山手線 品川駅 徒歩28分 |
所在地 |
東京都品川区東品川3丁目
|
物件種目 |
賃貸マンション |
賃料 |
27.9万円 |
管理費等 |
20,000円 |
敷金 / 保証金 |
1ヶ月 / なし |
礼金 |
なし |
敷引 |
- |
保証金償却 |
- |
その他一時金 |
なし |
保険等 |
要 |
維持費等 |
口座振替事務手数料:110円/月 |
クレジットカード決済 |
初期費用可 |
間取り |
2LDK(洋室5.5畳/洋室3.4畳/LDK13畳) |
専有面積 |
56.10m² |
築年月 |
2025年3月
|
階建 / 階 |
14階建 / 12階 |
建物構造 |
RC |
総戸数 |
- |
主要採光面 |
|
駐車場 |
- |
バイク置き場 |
有 |
駐輪場 |
有 |
建物名・部屋番号 |
パークアクシス品川天王洲アイル |
ペット |
相談 |
アピールポイント |
通常清掃費用:104907円/再契約手数料:新賃料1ヶ月分/駐輪場:月額330円(初回ステッカー4400円)/城南第二小学校学区域/駐車場:要確認/東京の高級賃貸や高級不動産の仲介・管理・売買をお探しの方は、高級物件専門のプライムコーポレーションへお気軽にご相談下さい。分譲賃貸マンション、戸建、テラスハウス、タワーマンション、デザイナーズ物件などの豊富なファミリー物件情報を取り揃えております。海外転勤・国内転勤・条件交渉等お任せ下さい。オンライン内見・オンライン契約対応可能です。 |
リフォーム履歴 |
- |
リノベーション履歴 |
- |
備考 |
賃貸保証等:加入要(初回保証委託料(最低20,000円):月額賃料等の50%、 2年目以降:9,600円/年)
管理形態/管理員の勤務形態:-/-
フリーレント:2ヶ月
IT重説対応物件
|
エネルギー消費性能 |
- |
断熱性能 |
- |
目安光熱費 |
- |
バス・トイレ |
バス・トイレ別、浴室乾燥機、追焚機能 |
キッチン |
システムキッチン |
セキュリティー |
オートロック |
収納 |
全居室収納、ウォークインクローゼット、収納スペース、シューズインクローゼット、シューズボックス |
設備・サービス |
室内洗濯機置場、都市ガス、エアコン |
TV・通信 |
ケーブルTV、CS、BS端子 |
その他 |
宅配BOX、バイク置き場、ルーフバルコニー、バルコニー、駐輪場、エレベーター |
契約期間 |
2年 |
現況 |
完成済 |
条件等 |
定期借家 |
入居可能時期 |
即時 |
更新料 |
- |
物件番号 |
1171239411 |
情報公開日 |
2025年9月13日 |
次回更新予定日 |
2025年10月28日 |
ケータイ用バーコード |
- スマートフォンでこの物件を見る
- スマートフォンからもこの物件をご覧になれます。
|
※「-」と表示されている項目については、情報提供会社にご確認ください。
周辺施設 |
品川区立城南第二小学校 |
距離 |
595m |
写真を見る |
周辺施設 |
品川区立東海中学校 |
距離 |
408m |
写真を見る |
周辺施設 |
まいばすけっと 東品川3丁目店 |
距離 |
507m |
写真を見る |
周辺施設 |
イオンスタイル品川シーサイド |
距離 |
728m |
写真を見る |
周辺施設 |
セブンイレブン 東品川3丁目店 |
距離 |
360m |
写真を見る |
周辺施設 |
東品川海上公園 |
距離 |
348m |
写真を見る |
ここから簡単にお問い合わせをすることができます。
(SSLでの暗号化での送信を希望されるお客さまは
こちら
よりお問い合わせください)
お問い合わせを行う前に
「個人情報の取り扱いについて」を必ずお読みください。
「個人情報の取り扱いについて」に同意いただいた場合は「上記にご同意の上 確認画面へ進む」のボタンをクリックしてください。
個人情報の取り扱いについて
皆さまが送付された個人情報はアットホーム(株)のサーバを経由し、お問い合わせ先の不動産会社にメールまたはFAXにて転送されるためアットホーム(株)にも保管されます。アットホーム(株)で保管された個人情報の取り扱いについては、【こちら】をご覧ください。
また、本画面でご記入いただいた個人情報は、お問い合わせ先の不動産会社でも保管します。 お問い合わせ先の不動産会社が保管する個人情報の取り扱いについては、不動産会社に直接お問い合わせください。
東京都知事免許(4)第86964号 |
---|
- 交通:
- JR山手線/目黒駅 徒歩2分
- 東京都品川区上大崎3丁目3-1 オバタビル6F
- TEL:
- 03-5789-7070
- FAX:
- 03-5789-7071
- 所属団体:
- (公社)東京都宅地建物取引業協会会員
取引態様:仲介  - 00161914
|
- スマートフォンで
この不動産会社を見る

|
- 提携サイト等より掲載されている物件情報につきましては、不動産会社詳細情報にリンクされていないものがあります。
- 物件に関するお問合せは、物件詳細ページの「情報提供会社」に表示されている不動産会社へ直接お願いいたします。
- 間取図は、現況を優先させていただきます。
- 映像は物件の一部を撮影したものです。物件の契約にあたっての最終判断はご自身の判断に基づいて行ってください。
- 仲介手数料について

アットホームは物件情報の適正化に努めております。
内容に誤りがある場合にはこちらへご連絡ください。