東京都中野区上高田2丁目(中野駅)の賃貸:物件詳細
交通 所在地 |
駅徒歩 |
賃料 管理費等 |
敷金/保証金 礼金 |
間取り 面積 |
物件種目 築年月 |
|
東京メトロ東西線/中野
東京都中野区上高田2丁目
|
11分
|
17.4万円
10,000円
|
1ヶ月 / なし
なし
|
1LDK
41.10m²
|
賃貸マンション
2007年6月(築18年5ヶ月)
|
常時ゴミ出し可能、二人入居可、3面採光、2面採光、24時間換気システム、閑静な住宅街、IT重説対応物件、保証人不要
|
|
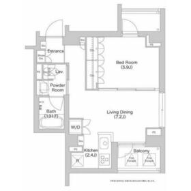
間取図
|
外観
★外観★
|
<
その他の画像
>
|
| 交通 | 東京メトロ東西線 中野駅 徒歩11分 |
|---|
| その他の交通 | 西武新宿線 新井薬師前駅 徒歩11分 西武新宿線 沼袋駅 徒歩16分 |
| 所在地 |
東京都中野区上高田2丁目
|
| 物件種目 |
賃貸マンション |
| 賃料 |
17.4万円 |
管理費等 |
10,000円 |
| 敷金 / 保証金 |
1ヶ月 / なし |
礼金 |
なし |
| 敷引 |
- |
保証金償却 |
- |
| その他一時金 |
室内清掃費用:39,600円、エアコン清掃費:16,500円、鍵交換代等:33,000円~ |
保険等 |
要 1年 8,200円 |
| 維持費等 |
- |
クレジットカード決済 |
その他可 クレジット可能条件等:- |
| 間取り |
1LDK(LDK9.6帖 洋室5.9帖) |
専有面積 |
41.10m² |
| 築年月 |
2007年6月(築18年5ヶ月)
|
階建 / 階 |
地上6階地下1階建 / 3階 |
| 建物構造 |
RC |
総戸数 |
35戸 |
| 主要採光面 |
南東 |
駐車場 |
無 |
| バイク置き場 |
- |
駐輪場 |
- |
| 建物名・部屋番号 |
コンフォリア中野 304 |
ペット |
-
|
| アピールポイント |
他社様の物件もお気軽にご相談ください。当店ならオンラインで見学・接客可能です! |
| リフォーム履歴 |
- |
| リノベーション履歴 |
- |
| 備考 |
賃貸保証等:加入要(50%/初回保証料総賃料50% 月額1%)
管理形態/管理員の勤務形態:-/巡回
IT重説対応物件、管理人巡回
ご紹介できるお部屋の情報量に自信あり!クレジットカード決済が可能なお部屋もお取り扱いあります!お家賃の減額や契約の開始時期など全力で交渉致します!お部屋探しはタウンハウジングへ!まずはお気軽にお電話下さい!安心してお部屋をお探しできるよう親切・丁寧にご紹介する事を心掛けております★※1年未満の解約は違約金1か月
|
| エネルギー消費性能 |
- |
| 断熱性能 |
- |
| 目安光熱費 |
- |
| バス・トイレ |
バス・トイレ別、浴室暖房、浴室乾燥機、追焚機能、シャワー付洗面化粧台、洗面所独立、洗面所、洗面台、シャワー、温水洗浄便座、トイレ |
| キッチン |
カウンターキッチン、システムキッチン、3口以上コンロ、ガスコンロ付 |
| セキュリティー |
オートロック、モニター付インターホン、防犯カメラ、火災警報器(報知機) |
| 収納 |
全居室収納、収納スペース、クローゼット、シューズボックス |
| 設備・サービス |
全居室エアコン、エアコン2台以上、室内洗濯機置場、都市ガス給湯、給湯、全居室フローリング、フローリング、都市ガス、エアコン、照明器具 |
| TV・通信 |
インターネット対応、インターネット使用料無料、光ファイバー、ケーブルTV、CS、BS端子 |
| その他 |
宅配BOX、二面バルコニー、バルコニー、エレベーター |
| 契約期間 |
2年 |
現況 |
居住中 |
| 条件等 |
- |
入居可能時期 |
2025年10月下旬予定 |
| 仲介手数料 |
1.1ヶ月 |
|
|
| 更新料 |
新賃料 1ヶ月 |
物件番号 |
1171385712 |
| 情報公開日 |
2025年10月15日 |
次回更新予定日 |
2025年10月29日 |
| ケータイ用バーコード |
- スマートフォンでこの物件を見る
- スマートフォンからもこの物件をご覧になれます。
|
※「-」と表示されている項目については、情報提供会社にご確認ください。
| 周辺施設 |
サンドラッグ |
| 距離 |
632m |
写真を見る |
| 周辺施設 |
セブンイレブン |
| 距離 |
42m |
写真を見る |
ここから簡単にお問い合わせをすることができます。
(SSLでの暗号化での送信を希望されるお客さまは
こちら
よりお問い合わせください)
お問い合わせを行う前に
「個人情報の取り扱いについて」を必ずお読みください。
「個人情報の取り扱いについて」に同意いただいた場合は「上記にご同意の上 確認画面へ進む」のボタンをクリックしてください。
個人情報の取り扱いについて
皆さまが送付された個人情報はアットホーム(株)のサーバを経由し、お問い合わせ先の不動産会社にメールまたはFAXにて転送されるためアットホーム(株)にも保管されます。アットホーム(株)で保管された個人情報の取り扱いについては、【こちら】をご覧ください。
また、本画面でご記入いただいた個人情報は、お問い合わせ先の不動産会社でも保管します。 お問い合わせ先の不動産会社が保管する個人情報の取り扱いについては、不動産会社に直接お問い合わせください。
国土交通大臣免許(1)第9926号 |
|---|
- 交通:
- 西武新宿線/上石神井駅 徒歩1分
- 東京都練馬区上石神井2丁目25-3 カトービル3F
- TEL:
- 03-3920-5005
- FAX:
- 03-3920-5006
- 所属団体:
- 所属団体未加入会員
取引態様:仲介  - 00267269
|
- スマートフォンで
この不動産会社を見る

|
- 提携サイト等より掲載されている物件情報につきましては、不動産会社詳細情報にリンクされていないものがあります。
- 物件に関するお問合せは、物件詳細ページの「情報提供会社」に表示されている不動産会社へ直接お願いいたします。
- 間取図は、現況を優先させていただきます。
- 映像は物件の一部を撮影したものです。物件の契約にあたっての最終判断はご自身の判断に基づいて行ってください。
- 仲介手数料について

アットホームは物件情報の適正化に努めております。
内容に誤りがある場合にはこちらへご連絡ください。