東京都豊島区長崎6丁目(東長崎駅)の賃貸:物件詳細
交通 所在地 |
駅徒歩 |
賃料 管理費等 |
敷金/保証金 礼金 |
間取り 面積 |
物件種目 築年月 |
|
西武池袋線/東長崎
東京都豊島区長崎6丁目
|
9分
|
6万円
5,000円
|
なし / なし
なし
|
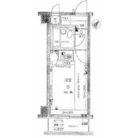
ワンルーム
17.08m²
|
賃貸マンション
1992年10月(築33年5ヶ月)
|
IT重説対応物件、保証人不要
|
|
間取図
|
外観
|
その他の画像
|
| 交通 | 西武池袋線 東長崎駅 徒歩9分 |
|---|
| その他の交通 | 東京メトロ有楽町線 千川駅 徒歩9分 東京メトロ有楽町線 小竹向原駅 徒歩14分 |
| 所在地 |
東京都豊島区長崎6丁目
|
| 物件種目 |
賃貸マンション |
| 賃料 |
6万円 |
管理費等 |
5,000円 |
| 敷金 / 保証金 |
なし / なし |
礼金 |
なし |
| 敷引 |
- |
保証金償却 |
- |
| その他一時金 |
24時間安心サポート(2年):16,500円、預かりクリーニング代:55,000円、鍵交換代等:44,000円~ |
保険等 |
要 |
| 維持費等 |
- |
クレジットカード決済 |
初期費用可 |
| 間取り |
ワンルーム |
専有面積 |
17.08m² |
| 築年月 |
1992年10月(築33年5ヶ月)
|
階建 / 階 |
6階建 / 3階 |
| 建物構造 |
RC |
総戸数 |
- |
| 主要採光面 |
南東 |
駐車場 |
- |
| バイク置き場 |
無 |
駐輪場 |
無 |
| 建物名・部屋番号 |
ライオンズマンション東長崎第3 309 |
ペット |
-
|
| アピールポイント |
セキュリティ面は、オートロック・TVインターホンなどを備え付けているので安心して暮らせます。室内設備はエアコン・洗面台などが揃っており、とても充実しています。ついつい靴がたまってしまう方にお勧めの、シューズボックス付きの物件です。新しい日々を送るにふさわしい、きれいな室内です。物件は東南向きなので陽が差し込みやすいです。初期費用削減に期待できる、敷金ゼロ円の物件です。南面バルコニー付きの物件で、用途に合わせて活用できます。駅徒歩9分に駅が立地する物件なので、電車を多く利用する方にとって便利です。駅が周辺に2つあるので行動範囲が広がります。 |
| リフォーム履歴 |
- |
| リノベーション履歴 |
- |
| 備考 |
賃貸保証等:加入要(初回保証料:総賃料の50% 月額保証料:総賃料の1%)
管理形態/管理員の勤務形態:-/-
IT重説対応物件
安心のオートロック付き!TVモニター付きインターホン!
退去時:エアコンクリーニング費用16,500円/台 1年未満の解約の場合、総賃料2ヶ月分・2年未満は総賃料の1か月分の違約金あり。解約予告2ヶ月前 更新事務手数料:5,500円
|
| エネルギー消費性能 |
- |
| 断熱性能 |
- |
| 目安光熱費 |
- |
| バス・トイレ |
洗面台、シャワー、トイレ |
| キッチン |
- |
| セキュリティー |
モニター付オートロック、オートロック、モニター付インターホン |
| 収納 |
収納スペース、シューズボックス |
| 設備・サービス |
室内洗濯機置場、洗濯機置場、給湯、エアコン |
| TV・通信 |
- |
| その他 |
バルコニー |
| 契約期間 |
2年 |
現況 |
空家 |
| 条件等 |
- |
入居可能時期 |
2026年2月中旬予定 |
| 仲介手数料 |
1.1ヶ月 |
|
|
| 更新料 |
- |
物件番号 |
1171813219 |
| 情報公開日 |
2026年1月25日 |
次回更新予定日 |
2026年2月8日 |
| ケータイ用バーコード |
- スマートフォンでこの物件を見る
- スマートフォンからもこの物件をご覧になれます。
|
※「-」と表示されている項目については、情報提供会社にご確認ください。
| 周辺施設 |
池袋マルイ |
| 距離 |
2515m |
写真を見る |
ここから簡単にお問い合わせをすることができます。
(SSLでの暗号化での送信を希望されるお客さまは
こちら
よりお問い合わせください)
お問い合わせを行う前に
「個人情報の取り扱いについて」を必ずお読みください。
「個人情報の取り扱いについて」に同意いただいた場合は「上記にご同意の上 確認画面へ進む」のボタンをクリックしてください。
個人情報の取り扱いについて
皆さまが送付された個人情報はアットホーム(株)のサーバを経由し、お問い合わせ先の不動産会社にメールまたはFAXにて転送されるためアットホーム(株)にも保管されます。アットホーム(株)で保管された個人情報の取り扱いについては、【こちら】をご覧ください。
また、本画面でご記入いただいた個人情報は、お問い合わせ先の不動産会社でも保管します。 お問い合わせ先の不動産会社が保管する個人情報の取り扱いについては、不動産会社に直接お問い合わせください。
国土交通大臣免許(4)第7400号 |
|---|
- 交通:
- JR埼京線/板橋駅
- 東京都北区滝野川6丁目84-8
- TEL:
- 03-3918-1115
- 所属団体:
- (公社)全日本不動産協会会員(公社)首都圏不動産公正取引協議会加盟
取引態様:仲介  - 00511925
|
- スマートフォンで
この不動産会社を見る

|
- 提携サイト等より掲載されている物件情報につきましては、不動産会社詳細情報にリンクされていないものがあります。
- 物件に関するお問合せは、物件詳細ページの「情報提供会社」に表示されている不動産会社へ直接お願いいたします。
- 間取図は、現況を優先させていただきます。
- 映像は物件の一部を撮影したものです。物件の契約にあたっての最終判断はご自身の判断に基づいて行ってください。
- 仲介手数料について

アットホームは物件情報の適正化に努めております。
内容に誤りがある場合にはこちらへご連絡ください。