東京都北区滝野川6丁目(西巣鴨駅)の賃貸:物件詳細
交通 所在地 |
駅徒歩 |
賃料 管理費等 |
敷金/保証金 礼金 |
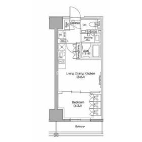
間取り 面積 |
物件種目 築年月 |
|
都営三田線/西巣鴨
東京都北区滝野川6丁目
|
2分
|
15.4万円
20,000円
|
1ヶ月 / なし
1ヶ月
|
1LDK
33.11m²
|
賃貸マンション
2023年2月(築3年)
|
ペット相談、楽器相談、二人入居可、24時間換気システム、保証人不要
|
|
間取図
|
外観
|
<
その他の画像
>
|
| 交通 | 都営三田線 西巣鴨駅 徒歩2分 |
|---|
| その他の交通 | JR埼京線 板橋駅 徒歩12分 都電荒川線 新庚申塚駅 徒歩7分 |
| 所在地 |
東京都北区滝野川6丁目
|
| 物件種目 |
賃貸マンション |
| 賃料 |
15.4万円 |
管理費等 |
20,000円 |
| 敷金 / 保証金 |
1ヶ月 / なし |
礼金 |
1ヶ月 |
| 敷引 |
- |
保証金償却 |
- |
| その他一時金 |
24時間サポート:16,500円、鍵交換代等:33,000円~ |
保険等 |
要 |
| 維持費等 |
- |
| 間取り |
1LDK(洋室4.3帖 LDK8.2帖) |
専有面積 |
33.11m² |
| 築年月 |
2023年2月(築3年)
|
階建 / 階 |
14階建 / 5階 |
| 建物構造 |
RC |
総戸数 |
- |
| 主要採光面 |
北東 |
駐車場 |
空無 |
| バイク置き場 |
有 6,050円/月 |
駐輪場 |
有 220円/月 |
| 建物名・部屋番号 |
ザ・パークハビオ滝野川 504 |
ペット |
相談 |
| アピールポイント |
「西巣鴨」駅徒歩2分の好立地 築浅 ペット飼育可 コワーキングスペース有 オートロック 宅配ボックス |
| リフォーム履歴 |
- |
| リノベーション履歴 |
- |
| 備考 |
賃貸保証等:加入要(初回保証料:総賃料50% 2年目以降10000円)
管理形態/管理員の勤務形態:-/-
室内クリーニング費・エアコン洗浄費:借主負担 解約予告2ヵ月前 ペット飼育時敷金1か月積み増し※小型犬・猫合計2匹迄 楽器相談可:詳細有
|
| エネルギー消費性能 |
- |
| 断熱性能 |
- |
| 目安光熱費 |
- |
| バス・トイレ |
バス・トイレ別、浴室乾燥機、オートバス、追焚機能、洗面所独立、洗面所、洗面台、シャワー、温水洗浄便座、トイレ |
| キッチン |
システムキッチン、2口コンロ、ガスコンロ付 |
| セキュリティー |
オートロック、モニター付インターホン、防犯カメラ、火災警報器(報知機) |
| 収納 |
収納スペース、クローゼット、シューズボックス |
| 設備・サービス |
室内洗濯機置場、給湯、全居室フローリング、フローリング、都市ガス、エアコン、暖房、冷房、照明器具 |
| TV・通信 |
インターネット対応、インターネット使用料無料、光ファイバー、CS、BS端子 |
| その他 |
宅配BOX、バイク置き場、バルコニー、駐輪場、エレベーター |
| 契約期間 |
2年 |
現況 |
居住中 |
| 条件等 |
- |
入居可能時期 |
2026年1月下旬予定 |
| 更新料 |
新賃料 1ヶ月 |
物件番号 |
1171825615 |
| 情報公開日 |
2025年12月22日 |
次回更新予定日 |
2026年1月19日 |
| ケータイ用バーコード |
- スマートフォンでこの物件を見る
- スマートフォンからもこの物件をご覧になれます。
|
※「-」と表示されている項目については、情報提供会社にご確認ください。
| 周辺施設 |
西巣鴨駅(都営地下鉄 三田線) |
| 距離 |
200m |
写真を見る |
| 周辺施設 |
スーパーみらべる西巣鴨店 |
| 距離 |
160m |
| 周辺施設 |
セブンイレブン西巣鴨駅前店 |
| 距離 |
170m |
| 周辺施設 |
社会福祉法人新栄会滝野川病院 |
| 距離 |
1030m |
ここから簡単にお問い合わせをすることができます。
(SSLでの暗号化での送信を希望されるお客さまは
こちら
よりお問い合わせください)
お問い合わせを行う前に
「個人情報の取り扱いについて」を必ずお読みください。
「個人情報の取り扱いについて」に同意いただいた場合は「上記にご同意の上 確認画面へ進む」のボタンをクリックしてください。
個人情報の取り扱いについて
皆さまが送付された個人情報はアットホーム(株)のサーバを経由し、お問い合わせ先の不動産会社にメールまたはFAXにて転送されるためアットホーム(株)にも保管されます。アットホーム(株)で保管された個人情報の取り扱いについては、【こちら】をご覧ください。
また、本画面でご記入いただいた個人情報は、お問い合わせ先の不動産会社でも保管します。 お問い合わせ先の不動産会社が保管する個人情報の取り扱いについては、不動産会社に直接お問い合わせください。
東京都知事免許(6)第76891号 |
|---|
- 交通:
- JR山手線/浜松町駅 徒歩2分
- 東京都港区芝大門1丁目16-3 芝大門116ビル1F
- TEL:
- 03-6228-4882
- FAX:
- 03-5408-8401
- 所属団体:
- (公社)全日本不動産協会会員(公社)首都圏不動産公正取引協議会加盟
取引態様:仲介  - 00275545
|
- スマートフォンで
この不動産会社を見る

|
- 提携サイト等より掲載されている物件情報につきましては、不動産会社詳細情報にリンクされていないものがあります。
- 物件に関するお問合せは、物件詳細ページの「情報提供会社」に表示されている不動産会社へ直接お願いいたします。
- 間取図は、現況を優先させていただきます。
- 映像は物件の一部を撮影したものです。物件の契約にあたっての最終判断はご自身の判断に基づいて行ってください。
- 仲介手数料について

アットホームは物件情報の適正化に努めております。
内容に誤りがある場合にはこちらへご連絡ください。