東京都文京区千駄木3丁目(西日暮里駅)の賃貸:物件詳細
交通 所在地 |
駅徒歩 |
賃料 管理費等 |
敷金/保証金 礼金 |
間取り 面積 |
物件種目 築年月 |
|
JR山手線/西日暮里
東京都文京区千駄木3丁目
|
5分
|
20万円
12,000円
|
なし / なし
なし
|
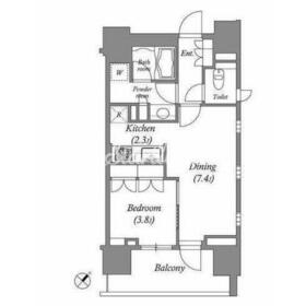
1LDK
37.44m²
|
賃貸マンション
2008年3月(築17年10ヶ月)
|
フリーレント、角部屋、二人入居可、2面採光、24時間換気システム、保証人不要
|
|
間取図
間取図
|
外観
|
<
その他の画像
>
|
| 交通 | JR山手線 西日暮里駅 徒歩5分 |
|---|
| その他の交通 | 東京メトロ千代田線 千駄木駅 徒歩7分 成田スカイアクセス 日暮里駅 徒歩14分 |
| 所在地 |
東京都文京区千駄木3丁目
|
| 物件種目 |
賃貸マンション |
| 賃料 |
20万円 |
管理費等 |
12,000円 |
| 敷金 / 保証金 |
なし / なし |
礼金 |
なし |
| 敷引 |
- |
保証金償却 |
- |
| その他一時金 |
室内清掃費用:55,000円、エアコン清掃費:15,000円 |
保険等 |
要 2年 22,000円 |
| 維持費等 |
- |
| 間取り |
1LDK(LD7.4帖 K2.3帖 洋室3.8帖) |
専有面積 |
37.44m² |
| 築年月 |
2008年3月(築17年10ヶ月)
|
階建 / 階 |
12階建 / 3階 |
| 建物構造 |
RC |
総戸数 |
- |
| 主要採光面 |
南東 |
駐車場 |
- |
| バイク置き場 |
- |
駐輪場 |
有 |
| 建物名・部屋番号 |
LaSante千駄木(ラサンテ千駄木) 305 |
ペット |
-
|
| アピールポイント |
インターネット無料 敷金礼金なし フリーレント1ヶ月 オートロック 防犯カメラ 宅配ボックス 収納 |
| リフォーム履歴 |
- |
| リノベーション履歴 |
- |
| 備考 |
賃貸保証等:加入要(初回保証料:総賃料の40% 更新料10000円/年 or 14000円/年)
管理形態/管理員の勤務形態:-/-
フリーレント:1ヶ月
短期解約違約金有り 駐輪場:要確認 解約予告2ヶ月前(日割)
|
| エネルギー消費性能 |
- |
| 断熱性能 |
- |
| 目安光熱費 |
- |
| バス・トイレ |
バス・トイレ別、浴室乾燥機、シャワー付洗面化粧台、洗面所独立、洗面所、洗面台、シャワー、トイレ |
| キッチン |
システムキッチン、独立型キッチン、2口コンロ、ガスコンロ付 |
| セキュリティー |
オートロック、モニター付インターホン、防犯カメラ、火災警報器(報知機) |
| 収納 |
収納スペース、クローゼット、シューズボックス |
| 設備・サービス |
室内洗濯機置場、給湯、全居室フローリング、フローリング、都市ガス、エアコン、暖房、冷房、照明器具 |
| TV・通信 |
インターネット対応、インターネット使用料無料、光ファイバー |
| その他 |
宅配BOX、バルコニー、駐輪場、エレベーター |
| 契約期間 |
2年 |
現況 |
空家 |
| 条件等 |
- |
入居可能時期 |
即時 |
| 更新料 |
新賃料 1ヶ月 |
物件番号 |
1171902515 |
| 情報公開日 |
2025年11月24日 |
次回更新予定日 |
2025年12月25日 |
| ケータイ用バーコード |
- スマートフォンでこの物件を見る
- スマートフォンからもこの物件をご覧になれます。
|
※「-」と表示されている項目については、情報提供会社にご確認ください。
| 周辺施設 |
西日暮里駅(JR東日本 山手線) |
| 距離 |
420m |
写真を見る |
| 周辺施設 |
まいばすけっと千駄木3丁目店 |
| 距離 |
10m |
写真を見る |
| 周辺施設 |
セブンイレブン台東谷中3丁目店 |
| 距離 |
80m |
| 周辺施設 |
都立駒込病院 |
| 距離 |
780m |
写真を見る |
| 周辺施設 |
荒川区立第一日暮里小学校 |
| 距離 |
360m |
写真を見る |
| 周辺施設 |
NASキッズユニバーシティ文京 |
| 距離 |
120m |
ここから簡単にお問い合わせをすることができます。
(SSLでの暗号化での送信を希望されるお客さまは
こちら
よりお問い合わせください)
お問い合わせを行う前に
「個人情報の取り扱いについて」を必ずお読みください。
「個人情報の取り扱いについて」に同意いただいた場合は「上記にご同意の上 確認画面へ進む」のボタンをクリックしてください。
個人情報の取り扱いについて
皆さまが送付された個人情報はアットホーム(株)のサーバを経由し、お問い合わせ先の不動産会社にメールまたはFAXにて転送されるためアットホーム(株)にも保管されます。アットホーム(株)で保管された個人情報の取り扱いについては、【こちら】をご覧ください。
また、本画面でご記入いただいた個人情報は、お問い合わせ先の不動産会社でも保管します。 お問い合わせ先の不動産会社が保管する個人情報の取り扱いについては、不動産会社に直接お問い合わせください。
東京都知事免許(6)第76891号 |
|---|
- 交通:
- JR総武線/御茶ノ水駅 徒歩1分
- 東京都千代田区神田駿河台2丁目2-2 キントービル5F
- TEL:
- 03-6228-4882
- FAX:
- 03-3294-9836
- 所属団体:
- (公社)全日本不動産協会会員(公社)首都圏不動産公正取引協議会加盟
取引態様:仲介  - 00275544
|
- スマートフォンで
この不動産会社を見る

|
- 提携サイト等より掲載されている物件情報につきましては、不動産会社詳細情報にリンクされていないものがあります。
- 物件に関するお問合せは、物件詳細ページの「情報提供会社」に表示されている不動産会社へ直接お願いいたします。
- 間取図は、現況を優先させていただきます。
- 映像は物件の一部を撮影したものです。物件の契約にあたっての最終判断はご自身の判断に基づいて行ってください。
- 仲介手数料について

アットホームは物件情報の適正化に努めております。
内容に誤りがある場合にはこちらへご連絡ください。