東京都中央区日本橋茅場町2丁目(茅場町駅)の賃貸:物件詳細
交通 所在地 |
駅徒歩 |
賃料 管理費等 |
敷金/保証金 礼金 |
間取り 面積 |
物件種目 築年月 |
|
東京メトロ日比谷線/茅場町
東京都中央区日本橋茅場町2丁目
|
3分
|
20.9万円
15,000円
|
1ヶ月 / なし
なし
|
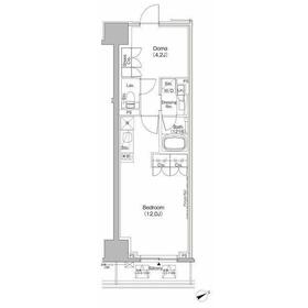
ワンルーム
37.77m²
|
賃貸マンション
2026年2月
|
ペット相談、楽器相談、常時ゴミ出し可能、二人入居可、SOHO向き、24時間換気システム、保証人不要
|
|
間取図
設備
|
外観
バルコニー
|
その他の画像
|
| 交通 | 東京メトロ日比谷線 茅場町駅 徒歩3分 |
|---|
| その他の交通 | 東京メトロ日比谷線 八丁堀駅 徒歩6分 都営浅草線 日本橋駅 徒歩6分 |
| 所在地 |
東京都中央区日本橋茅場町2丁目
|
| 物件種目 |
賃貸マンション |
| 賃料 |
20.9万円 |
管理費等 |
15,000円 |
| 敷金 / 保証金 |
1ヶ月 / なし |
礼金 |
なし |
| 敷引 |
- |
保証金償却 |
- |
| その他一時金 |
駆付けサポート24:16,500円 |
保険等 |
要 |
| 維持費等 |
- |
| 間取り |
ワンルーム(洋室12.0帖) |
専有面積 |
37.77m² |
| 築年月 |
2026年2月
|
階建 / 階 |
10階建 / 5階 |
| 建物構造 |
RC |
総戸数 |
- |
| 主要採光面 |
南東 |
駐車場 |
有 77,000円/月 |
| バイク置き場 |
- |
駐輪場 |
有 330円/月 |
| 建物名・部屋番号 |
ザ・パークハビオ日本橋茅場町 502 |
ペット |
小型犬可・ 猫可 |
| アピールポイント |
新築/礼金なし、フリーレント1ヶ月付き/インターネット無料/東京駅徒歩圏/複数駅・路線利用可能 |
| リフォーム履歴 |
- |
| リノベーション履歴 |
- |
| 備考 |
賃貸保証等:加入要(初回保証料:総賃料50%、継続保証料:年額10000円)
管理形態/管理員の勤務形態:-/-
1年未満解約時:賃料1ヶ月分の短期解約違約金あり/退去時室内清掃費用、エアコン洗浄費用:借主負担/ペット飼育時:敷金1ヶ月追加/SOHO相談可(登記不可、敷金1ヶ月追加)/楽器相談可(消音機能付限定)
|
| エネルギー消費性能 |
- |
| 断熱性能 |
- |
| 目安光熱費 |
- |
| バス・トイレ |
バス・トイレ別、浴室暖房、浴室乾燥機、オートバス、追焚機能、シャワー付洗面化粧台、洗面所独立、洗面所、洗面台、シャワー、温水洗浄便座、トイレ |
| キッチン |
システムキッチン、2口コンロ、ガスコンロ付、ガスコンロ可 |
| セキュリティー |
モニター付オートロック、オートロック、モニター付インターホン、ディンプルキー、ダブルロックドア、防犯カメラ、火災警報器(報知機) |
| 収納 |
全居室収納、収納スペース、クローゼット、シューズボックス |
| 設備・サービス |
全居室エアコン、室内洗濯機置場、給湯、全居室フローリング、フローリング、都市ガス、エアコン、暖房、冷房、照明器具 |
| TV・通信 |
インターネット対応、インターネット使用料無料、光ファイバー |
| その他 |
宅配BOX、バルコニー、駐輪場、エレベーター |
| 契約期間 |
2年 |
現況 |
未完成 |
| 条件等 |
定期借家 |
入居可能時期 |
2026年2月中旬予定 |
| 更新料 |
なし |
物件番号 |
1172044418 |
| 情報公開日 |
2025年12月6日 |
次回更新予定日 |
2025年12月20日 |
| ケータイ用バーコード |
- スマートフォンでこの物件を見る
- スマートフォンからもこの物件をご覧になれます。
|
※「-」と表示されている項目については、情報提供会社にご確認ください。
| 周辺施設 |
茅場町駅(東京メトロ 日比谷線) |
| 距離 |
170m |
写真を見る |
| 周辺施設 |
まいばすけっと茅場町3丁目店 |
| 距離 |
100m |
写真を見る |
| 周辺施設 |
セブンイレブン日本橋茅場町2丁目店 |
| 距離 |
170m |
写真を見る |
| 周辺施設 |
聖路加国際病院 |
| 距離 |
1600m |
写真を見る |
| 周辺施設 |
中央区立阪本小学校 |
| 距離 |
110m |
写真を見る |
ここから簡単にお問い合わせをすることができます。
(SSLでの暗号化での送信を希望されるお客さまは
こちら
よりお問い合わせください)
お問い合わせを行う前に
「個人情報の取り扱いについて」を必ずお読みください。
「個人情報の取り扱いについて」に同意いただいた場合は「上記にご同意の上 確認画面へ進む」のボタンをクリックしてください。
個人情報の取り扱いについて
皆さまが送付された個人情報はアットホーム(株)のサーバを経由し、お問い合わせ先の不動産会社にメールまたはFAXにて転送されるためアットホーム(株)にも保管されます。アットホーム(株)で保管された個人情報の取り扱いについては、【こちら】をご覧ください。
また、本画面でご記入いただいた個人情報は、お問い合わせ先の不動産会社でも保管します。 お問い合わせ先の不動産会社が保管する個人情報の取り扱いについては、不動産会社に直接お問い合わせください。
東京都知事免許(6)第76891号 |
|---|
- 交通:
- 東京メトロ日比谷線/築地駅 徒歩1分
- 東京都中央区築地3丁目4-7 銀鱗ビル3F
- TEL:
- 03-6228-4882
- FAX:
- 03-6226-0555
- 所属団体:
- (公社)全日本不動産協会会員(公社)首都圏不動産公正取引協議会加盟
取引態様:仲介  - 00104737
|
- スマートフォンで
この不動産会社を見る

|
- 提携サイト等より掲載されている物件情報につきましては、不動産会社詳細情報にリンクされていないものがあります。
- 物件に関するお問合せは、物件詳細ページの「情報提供会社」に表示されている不動産会社へ直接お願いいたします。
- 間取図は、現況を優先させていただきます。
- 映像は物件の一部を撮影したものです。物件の契約にあたっての最終判断はご自身の判断に基づいて行ってください。
- 仲介手数料について

アットホームは物件情報の適正化に努めております。
内容に誤りがある場合にはこちらへご連絡ください。