東京都町田市成瀬が丘2丁目(成瀬駅)の賃貸:物件詳細
交通 所在地 |
駅徒歩 |
賃料 管理費等 |
敷金/保証金 礼金 |
間取り 面積 |
物件種目 築年月 |
|
JR横浜線/成瀬
東京都町田市成瀬が丘2丁目
|
1分
|
7.4万円
3,000円
|
1ヶ月 / なし
1ヶ月
|
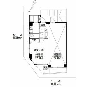
1K
27.04m²
|
賃貸マンション
2009年3月(築17年)
|
角部屋、閑静な住宅街、IT重説対応物件、保証人不要
|
|
間取図
|
外観
|
<
その他の画像
>
|
| 交通 | JR横浜線 成瀬駅 徒歩1分 |
|---|
| その他の交通 | 東急田園都市線 つくし野駅 徒歩23分 JR横浜線 長津田駅 徒歩30分 |
| 所在地 |
東京都町田市成瀬が丘2丁目
|
| 物件種目 |
賃貸マンション |
| 賃料 |
7.4万円 |
管理費等 |
3,000円 |
| 敷金 / 保証金 |
1ヶ月 / なし |
礼金 |
1ヶ月 |
| 敷引 |
- |
保証金償却 |
- |
| その他一時金 |
なし、鍵交換代等:22,000円~ |
保険等 |
要 2年 18,000円 |
| 維持費等 |
- |
| 間取り |
1K(洋室7.6) |
専有面積 |
27.04m² |
| 築年月 |
2009年3月(築17年)
|
階建 / 階 |
4階建 / 3階 |
| 建物構造 |
RC |
総戸数 |
6戸 |
| 主要採光面 |
北西 |
駐車場 |
無 |
| バイク置き場 |
- |
駐輪場 |
有 無料 |
| 建物名・部屋番号 |
成瀬スカイステージ 301 |
ペット |
-
|
| アピールポイント |
初期費用の分割決済相談可。
お問い合わせはお電話だとご案内もスムーズです。
弊社管理物件、掲載物件以外にもお客様のご要望、ご条件に合うほぼすべての物件をご提案、ご紹介させていただきます。また空き予定、未完成のお部屋でも同施工会社の類似物件の見学や周辺環境の確認などもお手伝いさせていただきます。
お気軽に~素敵なお部屋の最寄り駅~賃貸ステーションまでお問い合わせ下さいませ
|
| リフォーム履歴 |
- |
| リノベーション履歴 |
- |
| 備考 |
賃貸保証等:加入要(初回保証委託料50%・年間保証委託料10,000円)
管理形態/管理員の勤務形態:-/-
単身者限定、IT重説対応物件
◆お部屋探しは賃貸ステーションへ!お気軽にお問合せください◆
お気軽にご連絡ください★
|
| エネルギー消費性能 |
- |
| 断熱性能 |
- |
| 目安光熱費 |
- |
| バス・トイレ |
バス・トイレ別、浴室乾燥機、洗面所独立、洗面台、シャワー、温水洗浄便座、トイレ |
| キッチン |
- |
| セキュリティー |
モニター付インターホン、火災警報器(報知機) |
| 収納 |
収納スペース、クローゼット、シューズボックス |
| 設備・サービス |
室内洗濯機置場、都市ガス給湯、給湯、都市ガス、エアコン |
| TV・通信 |
- |
| その他 |
バルコニー、駐輪場 |
| 契約期間 |
2年 |
現況 |
空家 |
| 条件等 |
- |
入居可能時期 |
即時 |
| 更新料 |
新賃料 1ヶ月 |
物件番号 |
1172302222 |
| 情報公開日 |
2026年1月20日 |
次回更新予定日 |
2026年2月3日 |
| ケータイ用バーコード |
- スマートフォンでこの物件を見る
- スマートフォンからもこの物件をご覧になれます。
|
※「-」と表示されている項目については、情報提供会社にご確認ください。
| 周辺施設 |
成瀬ショッピングセンター |
| 距離 |
318m |
写真を見る |
| 周辺施設 |
ビッグヨーサン成瀬店 |
| 距離 |
145m |
写真を見る |
| 周辺施設 |
セブンイレブン町田成瀬駅南口店 |
| 距離 |
42m |
写真を見る |
| 周辺施設 |
くすりセイジョー成瀬南口店 |
| 距離 |
98m |
写真を見る |
ここから簡単にお問い合わせをすることができます。
(SSLでの暗号化での送信を希望されるお客さまは
こちら
よりお問い合わせください)
お問い合わせを行う前に
「個人情報の取り扱いについて」を必ずお読みください。
「個人情報の取り扱いについて」に同意いただいた場合は「上記にご同意の上 確認画面へ進む」のボタンをクリックしてください。
個人情報の取り扱いについて
皆さまが送付された個人情報はアットホーム(株)のサーバを経由し、お問い合わせ先の不動産会社にメールまたはFAXにて転送されるためアットホーム(株)にも保管されます。アットホーム(株)で保管された個人情報の取り扱いについては、【こちら】をご覧ください。
また、本画面でご記入いただいた個人情報は、お問い合わせ先の不動産会社でも保管します。 お問い合わせ先の不動産会社が保管する個人情報の取り扱いについては、不動産会社に直接お問い合わせください。
国土交通大臣免許(3)第8686号 |
|---|
- 交通:
- 小田急小田原線/鶴川駅 徒歩1分
- 東京都町田市能ヶ谷1丁目4-7 アル・ヴェール1階
- TEL:
- 042-708-0023
- FAX:
- 042-708-0024
- 所属団体:
- (公社)全日本不動産協会会員(公社)首都圏不動産公正取引協議会加盟
取引態様:仲介  - 00265730
|
- スマートフォンで
この不動産会社を見る

|
- 提携サイト等より掲載されている物件情報につきましては、不動産会社詳細情報にリンクされていないものがあります。
- 物件に関するお問合せは、物件詳細ページの「情報提供会社」に表示されている不動産会社へ直接お願いいたします。
- 間取図は、現況を優先させていただきます。
- 映像は物件の一部を撮影したものです。物件の契約にあたっての最終判断はご自身の判断に基づいて行ってください。
- 仲介手数料について

アットホームは物件情報の適正化に努めております。
内容に誤りがある場合にはこちらへご連絡ください。