東京都中野区弥生町2丁目(中野新橋駅)の賃貸:物件詳細
交通 所在地 |
駅徒歩 |
賃料 管理費等 |
敷金/保証金 礼金 |
間取り 面積 |
物件種目 築年月 |
|
東京メトロ丸ノ内方南支線/中野新橋
東京都中野区弥生町2丁目
|
1分
|
13万円
10,000円
|
1ヶ月 / なし
なし
|
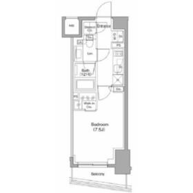
1K
26.27m²
|
賃貸マンション
2021年5月(築4年7ヶ月)
|
ペット相談、楽器相談、常時ゴミ出し可能、事務所使用可、24時間換気システム、IT重説対応物件、保証人不要
|
|
間取図
|
外観
|
<
その他の画像
>
|
| 交通 | 東京メトロ丸ノ内方南支線 中野新橋駅 徒歩1分 |
|---|
| その他の交通 | 東京メトロ丸ノ内方南支線 中野富士見町駅 徒歩10分 東京メトロ丸ノ内線 新中野駅 徒歩13分 |
| 所在地 |
東京都中野区弥生町2丁目
|
| 物件種目 |
賃貸マンション |
| 賃料 |
13万円 |
管理費等 |
10,000円 |
| 敷金 / 保証金 |
1ヶ月 / なし |
礼金 |
なし |
| 敷引 |
- |
保証金償却 |
- |
| その他一時金 |
なし、鍵交換代等:33,000円~ |
保険等 |
要 2年 18,000円 |
| 維持費等 |
- |
クレジットカード決済 |
その他可 クレジット可能条件等:- |
| 間取り |
1K(洋室7.5帖) |
専有面積 |
26.27m² |
| 築年月 |
2021年5月(築4年7ヶ月)
|
階建 / 階 |
14階建 / 5階 |
| 建物構造 |
RC |
総戸数 |
- |
| 主要採光面 |
東 |
駐車場 |
有 44,000円/月 |
| バイク置き場 |
- |
駐輪場 |
- |
| 建物名・部屋番号 |
ザ・パークハビオ中野新橋 505 |
ペット |
小型犬可・ 猫可 |
| アピールポイント |
杉並区・中野区・練馬区・武蔵野市・三鷹市周辺のエリアの情報が豊富にございます。ぜひお問い合わせをお待ちしております。 |
| リフォーム履歴 |
- |
| リノベーション履歴 |
- |
| 備考 |
賃貸保証等:加入要(賃貸保証料:0.50ヶ月 初回:月額賃料の50% 2年目以降1年毎に10,000円 の更新料)
管理形態/管理員の勤務形態:-/巡回
IT重説対応物件、管理人巡回
☆お部屋探しはタウンハウジングへ☆
|
| エネルギー消費性能 |
- |
| 断熱性能 |
- |
| 目安光熱費 |
- |
| バス・トイレ |
バス・トイレ別、浴室暖房、浴室乾燥機、追焚機能、洗面所独立、洗面所、洗面台、シャワー、温水洗浄便座 |
| キッチン |
システムキッチン、2口コンロ、ガスコンロ付 |
| セキュリティー |
モニター付オートロック、オートロック、モニター付インターホン、防犯カメラ |
| 収納 |
全居室収納、ウォークインクローゼット、収納スペース、クローゼット、シューズボックス |
| 設備・サービス |
全居室エアコン、室内洗濯機置場、給湯、全居室フローリング、フローリング、都市ガス、エアコン、照明器具 |
| TV・通信 |
インターネット対応、光ファイバー、CATVインターネット、ケーブルTV、BS端子 |
| その他 |
宅配BOX、バルコニー、エレベーター |
| 契約期間 |
2年 |
現況 |
空家 |
| 条件等 |
- |
入居可能時期 |
即時 |
| 仲介手数料 |
1.1ヶ月 |
|
|
| 更新料 |
新賃料 1ヶ月 |
物件番号 |
1172481512 |
| 情報公開日 |
2025年10月14日 |
次回更新予定日 |
2025年11月11日 |
| ケータイ用バーコード |
- スマートフォンでこの物件を見る
- スマートフォンからもこの物件をご覧になれます。
|
※「-」と表示されている項目については、情報提供会社にご確認ください。
| 周辺施設 |
MARUSHO Pico中野新橋店 |
| 距離 |
52m |
写真を見る |
| 周辺施設 |
マルエツ中野新橋店 |
| 距離 |
264m |
写真を見る |
| 周辺施設 |
ファミリーマート山屋中野新橋店 |
| 距離 |
87m |
写真を見る |
| 周辺施設 |
ローソン中野新橋店 |
| 距離 |
94m |
写真を見る |
| 周辺施設 |
薬ヒグチ中野新橋店 |
| 距離 |
30m |
写真を見る |
| 周辺施設 |
オリジン弁当中野坂上店 |
| 距離 |
916m |
写真を見る |
ここから簡単にお問い合わせをすることができます。
(SSLでの暗号化での送信を希望されるお客さまは
こちら
よりお問い合わせください)
お問い合わせを行う前に
「個人情報の取り扱いについて」を必ずお読みください。
「個人情報の取り扱いについて」に同意いただいた場合は「上記にご同意の上 確認画面へ進む」のボタンをクリックしてください。
個人情報の取り扱いについて
皆さまが送付された個人情報はアットホーム(株)のサーバを経由し、お問い合わせ先の不動産会社にメールまたはFAXにて転送されるためアットホーム(株)にも保管されます。アットホーム(株)で保管された個人情報の取り扱いについては、【こちら】をご覧ください。
また、本画面でご記入いただいた個人情報は、お問い合わせ先の不動産会社でも保管します。 お問い合わせ先の不動産会社が保管する個人情報の取り扱いについては、不動産会社に直接お問い合わせください。
国土交通大臣免許(1)第9926号 |
|---|
- 交通:
- JR中央線/吉祥寺駅 徒歩3分
- 東京都武蔵野市吉祥寺本町1丁目12-1 安藤ビルクワトロ 2F
- TEL:
- 0422-20-7800
- FAX:
- 0422-20-7810
取引態様:仲介  - 00313699
|
- スマートフォンで
この不動産会社を見る

|
- 提携サイト等より掲載されている物件情報につきましては、不動産会社詳細情報にリンクされていないものがあります。
- 物件に関するお問合せは、物件詳細ページの「情報提供会社」に表示されている不動産会社へ直接お願いいたします。
- 間取図は、現況を優先させていただきます。
- 映像は物件の一部を撮影したものです。物件の契約にあたっての最終判断はご自身の判断に基づいて行ってください。
- 仲介手数料について

アットホームは物件情報の適正化に努めております。
内容に誤りがある場合にはこちらへご連絡ください。