愛知県名古屋市西区新道1丁目(浅間町駅)の賃貸:物件詳細
交通 所在地 |
駅徒歩 |
賃料 管理費等 |
敷金/保証金 礼金 |
間取り 面積 |
物件種目 築年月 |
|
名古屋市鶴舞線/浅間町
愛知県名古屋市西区新道1丁目
|
3分
|
12.79万円
11,190円
|
なし / なし
13.9万円
|
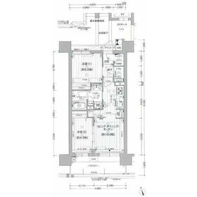
2LDK
45.48m²
|
賃貸マンション
2024年9月(築1年4ヶ月)
|
最上階、南向き
|
| 交通 | 名古屋市鶴舞線 浅間町駅 徒歩3分 |
| 所在地 |
愛知県名古屋市西区新道1丁目
|
| 物件種目 |
賃貸マンション |
| 賃料 |
12.79万円 |
管理費等 |
11,190円 |
| 敷金 / 保証金 |
なし / なし |
礼金 |
13.9万円 |
| 敷引 |
- |
保証金償却 |
- |
| その他一時金 |
カギ交換代:35,200円 |
保険等 |
要 |
| 維持費等 |
プレサポ24:990円/月 |
| 間取り |
2LDK(LDK10、洋5、洋4.3) |
専有面積 |
45.48m² |
| 築年月 |
2024年9月(築1年4ヶ月)
|
階建 / 階 |
15階建 / 15階 |
| 建物構造 |
RC |
総戸数 |
- |
| 主要採光面 |
南 |
駐車場 |
無 |
| バイク置き場 |
- |
駐輪場 |
- |
| 建物名・部屋番号 |
プレサンス ロジェ 名古屋浅間町ザ・レジデンス 1505 |
ペット |
-
|
| リフォーム履歴 |
- |
| リノベーション履歴 |
- |
| 備考 |
賃貸保証等:加入要(株式会社プレサンスギャランティ ギャランティ 初回50% 月1.5%・セーフティー 初回50% 年10,000円)
管理形態/管理員の勤務形態:-/-
バルコニー:8.82m²
共用部には宅配ボックスが付いているため、荷物の受け取りのために早く帰宅する必要がありません。
|
| エネルギー消費性能 |
- |
| 断熱性能 |
- |
| 目安光熱費 |
- |
| バス・トイレ |
浴室乾燥機、追焚機能、シャワー付洗面化粧台、温水洗浄便座、トイレ |
| キッチン |
3口以上コンロ |
| セキュリティー |
モニター付オートロック、オートロック、モニター付インターホン、防犯カメラ |
| 収納 |
収納スペース、シューズボックス |
| 設備・サービス |
床暖房、洗濯機置場、給湯、暖房 |
| TV・通信 |
インターネット使用料無料、ケーブルTV、BS端子 |
| その他 |
宅配BOX、エレベーター |
| 契約期間 |
1年 |
現況 |
空家 |
| 条件等 |
- |
入居可能時期 |
即時 |
| 更新料 |
11,000円 |
物件番号 |
1172488116 |
| 情報公開日 |
2025年11月16日 |
次回更新予定日 |
2025年12月31日 |
| ケータイ用バーコード |
- スマートフォンでこの物件を見る
- スマートフォンからもこの物件をご覧になれます。
|
※「-」と表示されている項目については、情報提供会社にご確認ください。
ここから簡単にお問い合わせをすることができます。
(SSLでの暗号化での送信を希望されるお客さまは
こちら
よりお問い合わせください)
お問い合わせを行う前に
「個人情報の取り扱いについて」を必ずお読みください。
「個人情報の取り扱いについて」に同意いただいた場合は「上記にご同意の上 確認画面へ進む」のボタンをクリックしてください。
個人情報の取り扱いについて
皆さまが送付された個人情報はアットホーム(株)のサーバを経由し、お問い合わせ先の不動産会社にメールまたはFAXにて転送されるためアットホーム(株)にも保管されます。アットホーム(株)で保管された個人情報の取り扱いについては、【こちら】をご覧ください。
また、本画面でご記入いただいた個人情報は、お問い合わせ先の不動産会社でも保管します。 お問い合わせ先の不動産会社が保管する個人情報の取り扱いについては、不動産会社に直接お問い合わせください。
愛知県知事免許(2)第24077号 |
|---|
- 交通:
- 名古屋市鶴舞線/浄心駅 徒歩1分
- 愛知県名古屋市西区浄心1丁目1-48 浄心ステーションビル南館1F
- TEL:
- 052-938-7601
- FAX:
- 052-938-7602
- 所属団体:
- (公社)全日本不動産協会会員東海不動産公正取引協議会加盟
取引態様:仲介  - 40408379
|
- スマートフォンで
この不動産会社を見る

|
- 提携サイト等より掲載されている物件情報につきましては、不動産会社詳細情報にリンクされていないものがあります。
- 物件に関するお問合せは、物件詳細ページの「情報提供会社」に表示されている不動産会社へ直接お願いいたします。
- 間取図は、現況を優先させていただきます。
- 映像は物件の一部を撮影したものです。物件の契約にあたっての最終判断はご自身の判断に基づいて行ってください。
- 仲介手数料について

アットホームは物件情報の適正化に努めております。
内容に誤りがある場合にはこちらへご連絡ください。